Бизнес
Доставката се поема от: лично предаване
Състояние: ново
Описание
Конструкция за Двуетажно Кафене, Заведение, Бар, Ресторант, Нощен Клуб. Конструкции за Заведения, Ресторанти, Барове, Нощни клубове, Кафенета.
СОБСТВЕНО КРЕДИТИРАНЕ за халета и сглобяеми къщи за фирми и физически лица за срок до 15 години, БЕЗ НУЖДА ОТ ДОКАЗВАНЕ НА ДОХОДИ !!!
Лизинг до 60 месеца за фирми.
Опция - сглобяване и монтаж на конструкцията 49 евро/м2
Цена при изпълнение груб строеж 349 евро/м2
Цена при изпълнение до ключ - до тапа - 449 евро/м2
Новите прмени в ЗУТ по чл.56, дават възможност конструкцията да се води и преместваема, с което ще спестите над 10-15 000 лева, както и много време и нерви. Нашият екип проектанти изработва и проекти за преместваеми конструкция.
Бартер - сглобяеми къщи, преместваеми къщи, хале, бунгала, магазини, търговска сграда, жилищна сграда, склад, или всякакъв вид конструкция или постройка, срещу ваш лек автомобил, строителна техника, товарни и лекотоварни автомобили, част от вашия имот, или всякакъв вид подемна техника.
Пример :
Вие притежавате лек автомобил, строителна техника, товарен или лекотоварен автомобил, или подемна техника на стойност 20 хил лева.
Наш специалист от офисите ни в Варна, София, или фабриката ни в с. Главиница, ще направи оценка на вашия автомобил, и вие заплащате със същия за вашата нова къща, бунгало, хале, магазин, склад, или всякакъв конструкция от която имате нужда.
Описание на етапите за които сме дали цени, можете да видите по-долу:
Етап Пакет Груб строеж ,
Описание :
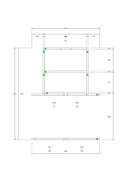
Конструктивен монтажен план
Етап Пакет “ Груб строеж ”
1. Фундамент - опция, след готов проект
2. Външни стени
- Стенни конструкции от стоманени поцинковани носещи елементи 140мм
- Изолация, положена между металната конструкция 140 мм. минерална вата
- Вътрешна облицовка от магнезий или други
3. Вътрешни преградни стени
- Стенни конструкции от метални носещи поцинковани елементи 140мм
- Двустранна облицовка от магнезий или други
- Изолация, положена между металната конструкция 140 мм. минерална вата
4. Таван и покрив
- конструкция от метални поцинковани носещи елементи 140мм
- Изолация, положена между металната поцинкована конструкция 140 мм. минерална вата
- Таванна облицовка магнезий или други
- Покритие с плоскости магнезий или други
5. Водоотвеждаща система на покрива
- PVC - опция
8. Вътрешна електрическа инсталация
Заготовка за Ел инсталация - гофрирани тръби, прекарани в конструкцията
- Ел. табло – оборудвано с предпазители - опция
9. Дограма
- PVC - бяла двоен стъклопакет 24 мм – опция
10. Входни врати
- Монтаж на врата - каса, первази, брава (до 200 лв. за бр.) – опция
11. Интериорни врати
- Монтаж на MDF- врати, каса, первази, брава (до 100 лв. за бр.) – опция
Етап Пакет – До ключ – До Тапа ,
Описание :
Конструктивен монтажен план
Етап Пакет “ Базов ” – До Тапа
1. Фундамент - опция , след готов проект
2. Външни стени
- Екстериорна боя
- Стенни конструкции от стоманени поцинковани носещи елементи 140мм
- Изолация, положена между металната конструкция - 140 мм. минерална вата
- Вътрешна облицовка от магнезий или други
- Интериорна боя
3. Вътрешни преградни стени
- Стенни конструкции от метални носещи поцинковани елементи 140мм
- Двустранна облицовка от магнезий или други
- Изолация, положена между металната конструкция - 140 мм. минерална вата
- Интериорна боя
4. Таван и покрив
- конструкция от метални поцинковани носещи елементи 140мм
- Изолация, положена между металната поцинкована конструкция- 140 мм. минерална вата
- Таванна облицовка от магнезий или други
- Покритие на покрива с плоскости от магнезий или други
- Битумен Воалит Light 3.5 кг. с посипка – червена или сива
5. Водоотвеждаща система на покрива
- PVC тръби
6. Вътрешна водопроводна инсталация
- Вгражда се в подови и стенни конструкции и се изпълнява от полипропиленови тръби (до тапа)
7. Вътрешна канализационна инсталация
- Изпълнява се от PVC тръби (до тапа)
8. Вътрешна електрическа инсталация
- CBT или ПВ-А1 / H07V-U Кабели – изтеглят се в гофрирани тръби, прекарани в конструкцията (до тапа)
- Монтаж на разклонителни кутии - опция
- Монтаж на конзолни кутии - опция
- Монтаж на ключове и контакти - опция
- Ел. табло – оборудвано с предпазители - опция
9. Дограма
- PVC - двоен стъклопакет 24 мм.
За всяка спалня х 1бр Прозорец 120см х 100см , За хол стандартно 2 бр прозорец 120см х 100см. Баня - 60см х 40см. Останалата дограма по примерните проекти се доплаща.
10. Входни врати
- Монтаж на врата - каса, первази, брава (до 200 лв. за бр.)
11. Интериорни врати
- Монтаж на MDF- врати, каса, первази, брава (до 100 лв. за бр.)
12. Вътрешни подови настилки
- Полагане на PVC настилка в санитарните помещения
- Монтаж на ламиниран паркет в останалите помещения
13. Вътрешни покрития на стени и тавани
- Полагане на PVC ламперия по стени в санитарни помещения
- Шпакловка по стени и тавани /на снадките на гипсокартона
- Интериорна боя – бяла по стени и тавани
14. Обзавеждане на санитарно помещение
- Монтаж на мивка със смесителна батерия - опция
- Монтаж на моноблок - опция
- Монтаж на душ корито - опция
15. Външни подови настилки и парапети
- Тераси - дървено покритие - опция
- Парапети от дървени греди – опция
Bull Homes ПРЕДЛАГА ЗА ВСИЧКИ СВОИ КЛИЕНТИ ПЛАЩАНЕ С ЕСКРОУ СМЕТКА, КОЕТО ВИ ГАРАНТИРА на 100%. ПО ТОЗИ НАЧИН СЕ СКЛЮЧВА ДОГОВОР МЕЖДУ НАС, ВАС, И БАНКА, КОЯТО НИ ПРЕВЕЖДА ПАРИТЕ ПО СЪОТВЕТНИЯ ЕТАП, ЕДВА СЛЕД КАТО СЪЩИЯ БЪДЕ ИЗПЪЛНЕН, с изключение на авансовото плащане от 10%.
НИЕ СМЕ ЕДНА ОТ МАЛКОТО ФИРМИ, КОЯТО ПРЕДЛАГА УСЛОВИЯ ГАРАНТИРАЩИ НА 100% КЛИЕНТИТЕ СИ.
Забележка :
Цените са без включено проектиране, което струва 30 евро/м2, и без изграждане на фундамент, за което можем да изготвим оферта, след готов конструктивен проект и гедезическа снимка на терена.
Предлагаме и опция узаконяване на проекта по всички нужни инстанции, което струва допълнителни 10 евро/м2 с всички включени такси, като ваш ангажимент може да остане единствено внасяне на готовия узаконен проект в Общината, за разрешително за строеж.
Цените са без ДД , и без транспорт
Минимална квадратура за поръчка 50м2
За повече информация не се колебайте да се свържете с нас на посочения телефон
В цените за опциите са включени крепежни елементи : анкери, нитове за сглобяване на профилите в вид на конструкции, болтове за халетата , и самонарезни винтове за сглобяване на стените в вид на постройки.
В цената не е включена услуга с автокран, или всякакъв друг вид подемна техника, ако има нужда от такава за монтажа. Цените са без калкулирана производствена фира. При монтаж, се заплащат допълнително командировъчни и транспортн
Офис гр. Варна
Търсим партньори в цялата страна, на добра комисионна, които ще получат от нас пълно съдействие и конкурентни цени!
Фабрика и офис
4409, с. Главиница
Индустриална зона / Главиница
+35*********83
Офис гр. Варна, 9002
бул. Цар Освободител 76Г, ет.9
( Сградата на Проектантска, или Здравна Каса )
+35************59
Офис гр. София, 1700
Ж.К. Студентски Град
ул. Проф. Атанас Иширков 13, ет. 3
+35************43
www.bullhomes.eu
СОБСТВЕНО КРЕДИТИРАНЕ за халета и сглобяеми къщи за фирми и физически лица за срок до 15 години, БЕЗ НУЖДА ОТ ДОКАЗВАНЕ НА ДОХОДИ !!!
Лизинг до 60 месеца за фирми.
Опция - сглобяване и монтаж на конструкцията 49 евро/м2
Цена при изпълнение груб строеж 349 евро/м2
Цена при изпълнение до ключ - до тапа - 449 евро/м2
Новите прмени в ЗУТ по чл.56, дават възможност конструкцията да се води и преместваема, с което ще спестите над 10-15 000 лева, както и много време и нерви. Нашият екип проектанти изработва и проекти за преместваеми конструкция.
Бартер - сглобяеми къщи, преместваеми къщи, хале, бунгала, магазини, търговска сграда, жилищна сграда, склад, или всякакъв вид конструкция или постройка, срещу ваш лек автомобил, строителна техника, товарни и лекотоварни автомобили, част от вашия имот, или всякакъв вид подемна техника.
Пример :
Вие притежавате лек автомобил, строителна техника, товарен или лекотоварен автомобил, или подемна техника на стойност 20 хил лева.
Наш специалист от офисите ни в Варна, София, или фабриката ни в с. Главиница, ще направи оценка на вашия автомобил, и вие заплащате със същия за вашата нова къща, бунгало, хале, магазин, склад, или всякакъв конструкция от която имате нужда.
Описание на етапите за които сме дали цени, можете да видите по-долу:
Етап Пакет Груб строеж ,
Описание :
Конструктивен монтажен план
Етап Пакет “ Груб строеж ”
1. Фундамент - опция, след готов проект
2. Външни стени
- Стенни конструкции от стоманени поцинковани носещи елементи 140мм
- Изолация, положена между металната конструкция 140 мм. минерална вата
- Вътрешна облицовка от магнезий или други
3. Вътрешни преградни стени
- Стенни конструкции от метални носещи поцинковани елементи 140мм
- Двустранна облицовка от магнезий или други
- Изолация, положена между металната конструкция 140 мм. минерална вата
4. Таван и покрив
- конструкция от метални поцинковани носещи елементи 140мм
- Изолация, положена между металната поцинкована конструкция 140 мм. минерална вата
- Таванна облицовка магнезий или други
- Покритие с плоскости магнезий или други
5. Водоотвеждаща система на покрива
- PVC - опция
8. Вътрешна електрическа инсталация
Заготовка за Ел инсталация - гофрирани тръби, прекарани в конструкцията
- Ел. табло – оборудвано с предпазители - опция
9. Дограма
- PVC - бяла двоен стъклопакет 24 мм – опция
10. Входни врати
- Монтаж на врата - каса, первази, брава (до 200 лв. за бр.) – опция
11. Интериорни врати
- Монтаж на MDF- врати, каса, первази, брава (до 100 лв. за бр.) – опция
Етап Пакет – До ключ – До Тапа ,
Описание :
Конструктивен монтажен план
Етап Пакет “ Базов ” – До Тапа
1. Фундамент - опция , след готов проект
2. Външни стени
- Екстериорна боя
- Стенни конструкции от стоманени поцинковани носещи елементи 140мм
- Изолация, положена между металната конструкция - 140 мм. минерална вата
- Вътрешна облицовка от магнезий или други
- Интериорна боя
3. Вътрешни преградни стени
- Стенни конструкции от метални носещи поцинковани елементи 140мм
- Двустранна облицовка от магнезий или други
- Изолация, положена между металната конструкция - 140 мм. минерална вата
- Интериорна боя
4. Таван и покрив
- конструкция от метални поцинковани носещи елементи 140мм
- Изолация, положена между металната поцинкована конструкция- 140 мм. минерална вата
- Таванна облицовка от магнезий или други
- Покритие на покрива с плоскости от магнезий или други
- Битумен Воалит Light 3.5 кг. с посипка – червена или сива
5. Водоотвеждаща система на покрива
- PVC тръби
6. Вътрешна водопроводна инсталация
- Вгражда се в подови и стенни конструкции и се изпълнява от полипропиленови тръби (до тапа)
7. Вътрешна канализационна инсталация
- Изпълнява се от PVC тръби (до тапа)
8. Вътрешна електрическа инсталация
- CBT или ПВ-А1 / H07V-U Кабели – изтеглят се в гофрирани тръби, прекарани в конструкцията (до тапа)
- Монтаж на разклонителни кутии - опция
- Монтаж на конзолни кутии - опция
- Монтаж на ключове и контакти - опция
- Ел. табло – оборудвано с предпазители - опция
9. Дограма
- PVC - двоен стъклопакет 24 мм.
За всяка спалня х 1бр Прозорец 120см х 100см , За хол стандартно 2 бр прозорец 120см х 100см. Баня - 60см х 40см. Останалата дограма по примерните проекти се доплаща.
10. Входни врати
- Монтаж на врата - каса, первази, брава (до 200 лв. за бр.)
11. Интериорни врати
- Монтаж на MDF- врати, каса, первази, брава (до 100 лв. за бр.)
12. Вътрешни подови настилки
- Полагане на PVC настилка в санитарните помещения
- Монтаж на ламиниран паркет в останалите помещения
13. Вътрешни покрития на стени и тавани
- Полагане на PVC ламперия по стени в санитарни помещения
- Шпакловка по стени и тавани /на снадките на гипсокартона
- Интериорна боя – бяла по стени и тавани
14. Обзавеждане на санитарно помещение
- Монтаж на мивка със смесителна батерия - опция
- Монтаж на моноблок - опция
- Монтаж на душ корито - опция
15. Външни подови настилки и парапети
- Тераси - дървено покритие - опция
- Парапети от дървени греди – опция
Bull Homes ПРЕДЛАГА ЗА ВСИЧКИ СВОИ КЛИЕНТИ ПЛАЩАНЕ С ЕСКРОУ СМЕТКА, КОЕТО ВИ ГАРАНТИРА на 100%. ПО ТОЗИ НАЧИН СЕ СКЛЮЧВА ДОГОВОР МЕЖДУ НАС, ВАС, И БАНКА, КОЯТО НИ ПРЕВЕЖДА ПАРИТЕ ПО СЪОТВЕТНИЯ ЕТАП, ЕДВА СЛЕД КАТО СЪЩИЯ БЪДЕ ИЗПЪЛНЕН, с изключение на авансовото плащане от 10%.
НИЕ СМЕ ЕДНА ОТ МАЛКОТО ФИРМИ, КОЯТО ПРЕДЛАГА УСЛОВИЯ ГАРАНТИРАЩИ НА 100% КЛИЕНТИТЕ СИ.
Забележка :
Цените са без включено проектиране, което струва 30 евро/м2, и без изграждане на фундамент, за което можем да изготвим оферта, след готов конструктивен проект и гедезическа снимка на терена.
Предлагаме и опция узаконяване на проекта по всички нужни инстанции, което струва допълнителни 10 евро/м2 с всички включени такси, като ваш ангажимент може да остане единствено внасяне на готовия узаконен проект в Общината, за разрешително за строеж.
Цените са без ДД , и без транспорт
Минимална квадратура за поръчка 50м2
За повече информация не се колебайте да се свържете с нас на посочения телефон
В цените за опциите са включени крепежни елементи : анкери, нитове за сглобяване на профилите в вид на конструкции, болтове за халетата , и самонарезни винтове за сглобяване на стените в вид на постройки.
В цената не е включена услуга с автокран, или всякакъв друг вид подемна техника, ако има нужда от такава за монтажа. Цените са без калкулирана производствена фира. При монтаж, се заплащат допълнително командировъчни и транспортн
Офис гр. Варна
Търсим партньори в цялата страна, на добра комисионна, които ще получат от нас пълно съдействие и конкурентни цени!
Фабрика и офис
4409, с. Главиница
Индустриална зона / Главиница
+35*********83
Офис гр. Варна, 9002
бул. Цар Освободител 76Г, ет.9
( Сградата на Проектантска, или Здравна Каса )
+35************59
Офис гр. София, 1700
Ж.К. Студентски Град
ул. Проф. Атанас Иширков 13, ет. 3
+35************43
www.bullhomes.eu
ID: 129980891
Контакт с продавача
xxx xxx xxx

