Бизнес
Цена на кв.м: 1600
Брой етажи на сградата: 1
Квадратура: 100 кв.м
Квадратура на двора: 809 кв.м
Година на строителство: 2026 г.
Строителство: Друго
Отопление: Електричество
Състояние на сградата: В строеж
Особености: ипотека, канализация, паркинг, санирана, видеонаблюдение
Описание
ЛОТОС ИМОТИ предлага ексклузивно Дървена сглобяема къща в строеж - МОДЕРЕН и ЕНЕРГИЙНО ЕФЕКТИВЕН дом
- Конструкция - дървена, сглобяема(панелна), устойчива, екологична и с отлична топлоизолация.
-Покрив двускатен с хидроизолация и покритие от керемиди.
-Дограмата е многокамерна PVC, цвят атрацит, осигуряваща максимален комфорт и енергийна ефективност.
-Фасада минерална мазилка с драскана структура и каменна облицовка.
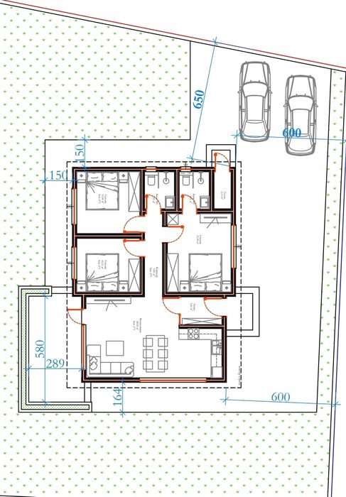
- Разпределение:
Всекидневна с кухня и трапезария - 28,93 m2
Коридор - 5,41 m2 + антре - 3.61 m2
Спалня 1 - 10,11 m2
Спалня 2 - 11,66 m2
Спалня 3 - 15,18 m2
Баня и WC - 2 броя по 3,35 m2
Склад - 2,11 m2
-Предимства:
-Съвременна дървена сглобяема конструкция - устойчива, екологична и топлоизолираща.
-Възможност за довършване по индивидуален проект
-Качествени материали и модерна визия
-Подходяща за целогодишно живеене или ваканционен имот
-Тиха и спокойна локация, с удобен достъп
Озеленяване и благоустрояване:
Имотът ще бъде красиво озеленен с вечно зелени живи плетове от Prunus laurocerasus (лавровишня), Thuja Smaragd и декоративни широколистни дървета Robinia pseudoacacia. Растителността е подбрана за целогодишен декоративен ефект, лесна поддръжка и естествена уединеност.
Ще се използва качествен контейнерен посадъчен материал, осигуряващ бързо прихващане и завършен естетичен вид още при откриването на обекта.
- Условия на плащане:
30% при подписване на предварителен договор
30% при Акт 14
40% при финализиране на сделката и снабдяване на сградата с Акт 16
- Възможно е банково финансиране при следните условия:
70% банково финансиране
30% самоучастие от страна на купувача
Очакван срок за пълно завършване: март 2026 г.
ЛОТОС ИМОТИ е сертифициран необвързан кредитен посредник към CREDITLAND (регистриран в БНБ под № BCI0009) и СЪДЕЙСТВА БЕЗПЛАТНО при избора и кандидатстването за ипотечен кредит!
За повече информация и огледи: Обадете се на посочения телефон!
- Конструкция - дървена, сглобяема(панелна), устойчива, екологична и с отлична топлоизолация.
-Покрив двускатен с хидроизолация и покритие от керемиди.
-Дограмата е многокамерна PVC, цвят атрацит, осигуряваща максимален комфорт и енергийна ефективност.
-Фасада минерална мазилка с драскана структура и каменна облицовка.
- Разпределение:
Всекидневна с кухня и трапезария - 28,93 m2
Коридор - 5,41 m2 + антре - 3.61 m2
Спалня 1 - 10,11 m2
Спалня 2 - 11,66 m2
Спалня 3 - 15,18 m2
Баня и WC - 2 броя по 3,35 m2
Склад - 2,11 m2
-Предимства:
-Съвременна дървена сглобяема конструкция - устойчива, екологична и топлоизолираща.
-Възможност за довършване по индивидуален проект
-Качествени материали и модерна визия
-Подходяща за целогодишно живеене или ваканционен имот
-Тиха и спокойна локация, с удобен достъп
Озеленяване и благоустрояване:
Имотът ще бъде красиво озеленен с вечно зелени живи плетове от Prunus laurocerasus (лавровишня), Thuja Smaragd и декоративни широколистни дървета Robinia pseudoacacia. Растителността е подбрана за целогодишен декоративен ефект, лесна поддръжка и естествена уединеност.
Ще се използва качествен контейнерен посадъчен материал, осигуряващ бързо прихващане и завършен естетичен вид още при откриването на обекта.
- Условия на плащане:
30% при подписване на предварителен договор
30% при Акт 14
40% при финализиране на сделката и снабдяване на сградата с Акт 16
- Възможно е банково финансиране при следните условия:
70% банково финансиране
30% самоучастие от страна на купувача
Очакван срок за пълно завършване: март 2026 г.
ЛОТОС ИМОТИ е сертифициран необвързан кредитен посредник към CREDITLAND (регистриран в БНБ под № BCI0009) и СЪДЕЙСТВА БЕЗПЛАТНО при избора и кандидатстването за ипотечен кредит!
За повече информация и огледи: Обадете се на посочения телефон!
ID: 146177756
Контакт с продавача
xxx xxx xxx
