Бизнес
Цена на кв.м: 2499
Брой етажи на сградата: 2
Квадратура: 550 кв.м
Квадратура на двора: 503 кв.м
Година на строителство: 2026 г.
Строителство: Тухла
Отопление: Газ
Състояние на сградата: В строеж
Особености: гараж, газификация, канализация, паркинг, видеонаблюдение
Описание
Компания `ЕКС` представя на Вашето внимание къща в град Банкя.
МЕСТОПОЛОЖЕНИЕ: Намира се само на 17 км от центъра на София, в зона с чист въздух и изобилие от минерални извори. Къщата е разположена в затворен комплекс с 24/7 контролиран достъп от жива охрана и видеонаблюдение, което гарантира спокойствие и безопасност.
СТРОИТЕЛСТВО: Тухлена къща от 2025 г.
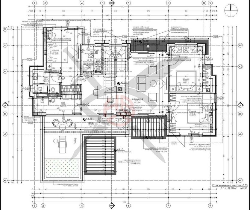
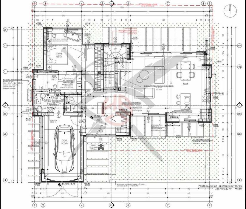
РАЗПРЕДЕЛЕНИЕ: Къщата разполага с площ от 187 кв.м. разпределена в :
Подземно ниво: СПА зона, фитнес, винарна и баня. Има възможност за персонализиране според вашите предпочитания.
Първи етаж - входно антре, просторна всекидневна с кухня и трапезария, допълнена от уютна камина идеално място за семейни събирания, родителската спалня със собствена баня осигурява личен комфорт, гараж и две паркоместа, техническото помещение на къщата и тоалетна.
Втори етаж - три спални, една от които със собствена баня, гардеробна, гладачно и перално, между помещенията се намира и вторият хол на
къщата и голямата тераса с градина предлага неповторими гледки и възможност за приятни вечери на открито.
ДВОР: 503 кв.м.
ОСОБЕНОСТИ: Покривна тераса (120 кв.м.) - това усвоено пространство може да се
превърне в луксозна тераса с джакузи с панорамна гледка или зимна градина с изглед към околните хълмове.
Заповядайте да Ви го покажем. Използвайки нашите услуги Вие ще превърнете закупуването на новия си дом в едно приятно изживяване, ще получите персонален консултант, съдействие при кандидатстване за кредит от всички банки в България, интериорни дизайнери и екип, който да се погрижи за нужните документи по Вашата сделка. На Ваше разположение сме всеки ден, от понеделник до неделя от 09:00 до 20:00ч. Възползвайте се от безплатна консултация в наш офис, където ще ви спестим време и ще ви запознаем с всички актуални имоти в България, отговарящи на Вашето търсене. Свържете се с нас на 08*********90 или на 08*********57 и цитирайте кода към имота: 99623
МЕСТОПОЛОЖЕНИЕ: Намира се само на 17 км от центъра на София, в зона с чист въздух и изобилие от минерални извори. Къщата е разположена в затворен комплекс с 24/7 контролиран достъп от жива охрана и видеонаблюдение, което гарантира спокойствие и безопасност.
СТРОИТЕЛСТВО: Тухлена къща от 2025 г.
РАЗПРЕДЕЛЕНИЕ: Къщата разполага с площ от 187 кв.м. разпределена в :
Подземно ниво: СПА зона, фитнес, винарна и баня. Има възможност за персонализиране според вашите предпочитания.
Първи етаж - входно антре, просторна всекидневна с кухня и трапезария, допълнена от уютна камина идеално място за семейни събирания, родителската спалня със собствена баня осигурява личен комфорт, гараж и две паркоместа, техническото помещение на къщата и тоалетна.
Втори етаж - три спални, една от които със собствена баня, гардеробна, гладачно и перално, между помещенията се намира и вторият хол на
къщата и голямата тераса с градина предлага неповторими гледки и възможност за приятни вечери на открито.
ДВОР: 503 кв.м.
ОСОБЕНОСТИ: Покривна тераса (120 кв.м.) - това усвоено пространство може да се
превърне в луксозна тераса с джакузи с панорамна гледка или зимна градина с изглед към околните хълмове.
Заповядайте да Ви го покажем. Използвайки нашите услуги Вие ще превърнете закупуването на новия си дом в едно приятно изживяване, ще получите персонален консултант, съдействие при кандидатстване за кредит от всички банки в България, интериорни дизайнери и екип, който да се погрижи за нужните документи по Вашата сделка. На Ваше разположение сме всеки ден, от понеделник до неделя от 09:00 до 20:00ч. Възползвайте се от безплатна консултация в наш офис, където ще ви спестим време и ще ви запознаем с всички актуални имоти в България, отговарящи на Вашето търсене. Свържете се с нас на 08*********90 или на 08*********57 и цитирайте кода към имота: 99623
ID: 147205763
Контакт с продавача
xxx xxx xxx
