Бизнес
Цена на кв.м: 1356.10
Брой етажи на сградата: 2
Квадратура: 205 кв.м
Квадратура на двора: 600 кв.м
Година на строителство: 2025 г.
Строителство: Тухла
Отопление: Електричество
Състояние на сградата: В строеж
Описание
Компания `Х` представя на Вашето внимание къща невероятна нова къща в Бенковски.
МЕСТОПОЛОЖЕНИЕ: В непосредствена близост до Пловдив-само 10км, Бенковски е Вашето мечтано място, където да свиете семейно гнездо-невероятна семейна къща с двор на минути от големият град.
Уединение, чист въздух и благоприятна среда за отглеждането на деца- и това ако не е синоним на синоним на 'успях живота'...
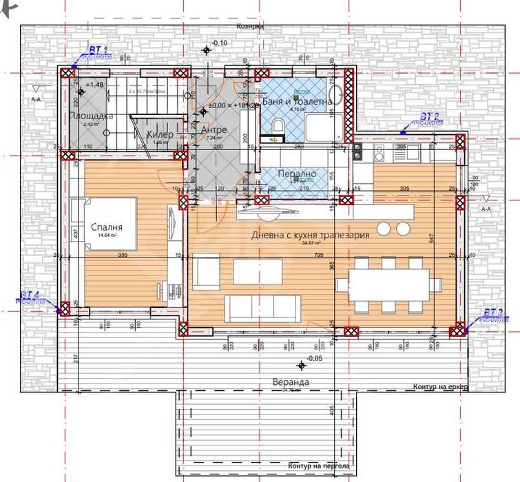
РАЗПРЕДЕЛЕНИЕ: Разполага с площ от 205кв.м., разгърнати в два етажа по следният начин:
Етаж 1: Входно антре, дневна с кухня и трапезария, спалня, баня и тоалетна, перално помещение, килер, невероятна веранда, площадка.
Етаж 2: Коридор, три спални с тераси, две бани с тоалетни, площадка.
Къщата разполага с невероятен двор-600кв.м.
СРОК НА ИЗПЪЛНЕНИЕ: Към май 2025г, строежът е вече стартирал, акт 14 очакваме през септември, а краен срок за изпълнение на проекта с акт 16 е краят на 2025г.
Заповядайте да Ви го покажем. Използвайки нашите услуги Вие ще получите персонален консултант, съдействие при кандидатстване за кредит от всички банки в България и екип, който да се погрижи за нужните документи по Вашата сделка. На Ваше разположение сме всеки ден, от понеделник до неделя от 09:00 до 20:00ч. Възползвайте се от безплатна консултация в наш офис, където ще ви спестим време и ще ви запознаем с всички актуални имоти в България, отговарящи на Вашето търсене. Свържете се с нас на 08*********90 или на 08*********90 и цитирайте кода към имота: 1123-32523
МЕСТОПОЛОЖЕНИЕ: В непосредствена близост до Пловдив-само 10км, Бенковски е Вашето мечтано място, където да свиете семейно гнездо-невероятна семейна къща с двор на минути от големият град.
Уединение, чист въздух и благоприятна среда за отглеждането на деца- и това ако не е синоним на синоним на 'успях живота'...
РАЗПРЕДЕЛЕНИЕ: Разполага с площ от 205кв.м., разгърнати в два етажа по следният начин:
Етаж 1: Входно антре, дневна с кухня и трапезария, спалня, баня и тоалетна, перално помещение, килер, невероятна веранда, площадка.
Етаж 2: Коридор, три спални с тераси, две бани с тоалетни, площадка.
Къщата разполага с невероятен двор-600кв.м.
СРОК НА ИЗПЪЛНЕНИЕ: Към май 2025г, строежът е вече стартирал, акт 14 очакваме през септември, а краен срок за изпълнение на проекта с акт 16 е краят на 2025г.
Заповядайте да Ви го покажем. Използвайки нашите услуги Вие ще получите персонален консултант, съдействие при кандидатстване за кредит от всички банки в България и екип, който да се погрижи за нужните документи по Вашата сделка. На Ваше разположение сме всеки ден, от понеделник до неделя от 09:00 до 20:00ч. Възползвайте се от безплатна консултация в наш офис, където ще ви спестим време и ще ви запознаем с всички актуални имоти в България, отговарящи на Вашето търсене. Свържете се с нас на 08*********90 или на 08*********90 и цитирайте кода към имота: 1123-32523
ID: 144166347
Контакт с продавача
xxx xxx xxx
