Бизнес
Цена на кв.м: 377.15
Брой етажи на сградата: 2
Квадратура: 477 кв.м
Квадратура на двора: 1266 кв.м
Година на строителство: 2025 г.
Строителство: Тухла
Отопление: Електричество
Състояние на сградата: В строеж
Описание
Имотът е на името на фирма и цената е с включено ДДС, което може да бъде възстановено.
Характеристики на имота:
РЗП: 477 м² ново строителство
Парцел: 1266 м²
Локация: с. Горица, община Бяла
Пълна проектна документация
Акт 14, като цената е към тази степен на завършеност
Регистрация като обект за селски туризъм – почивна база с прилежащ търговски обект
Съгласуван проект за изграждане на покривна, фотоволтаична електрическа централа с мощност 4,6 kW
Възможност за довършване на СМР по желание на инвеститора
Комплексът се състои от обособена хотелска част, отделна сграда за персонал и обслужващи помещения.
Сградата е завършена на груб строеж – железобетонна конструкция /колони и плочи/, стени от тухлена зидария, скатен покрив с керемиди.
Парцелът е с голямо лице към основния път за плаж Кара дере.
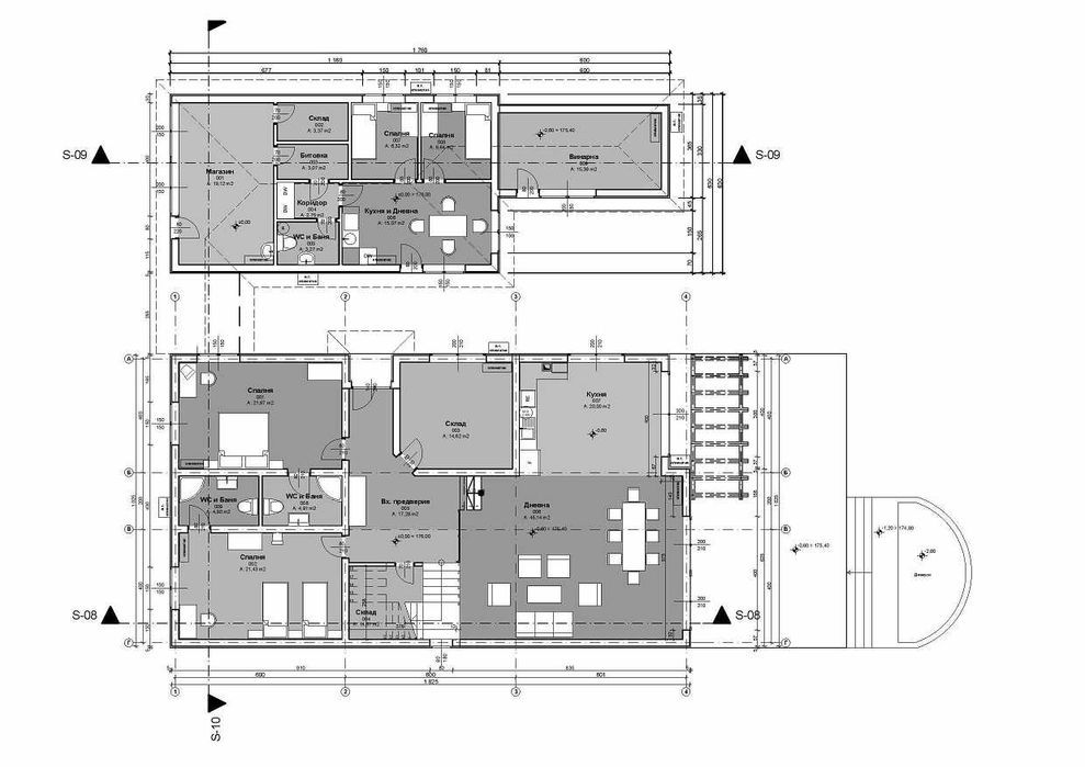
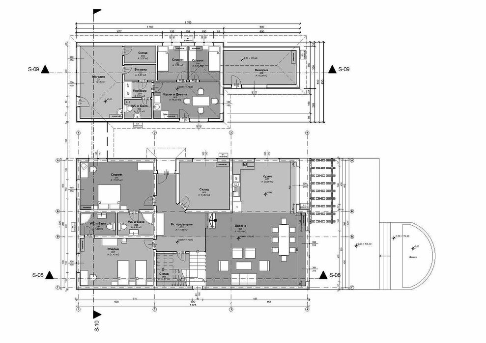
Разпределение хотелска част 385 м²:
Първи етаж: 2 бр. спални помещения, всяко със собствена баня и тоалетна. Голяма дневна част 45 м², голяма кухненска част 16 м², проектирани заедно да формират голяма, обща зала, 1 бр. помещение за спортни уреди, 1 бр. помещение за сауна, голямо централно предверие за удобство на посетителите.
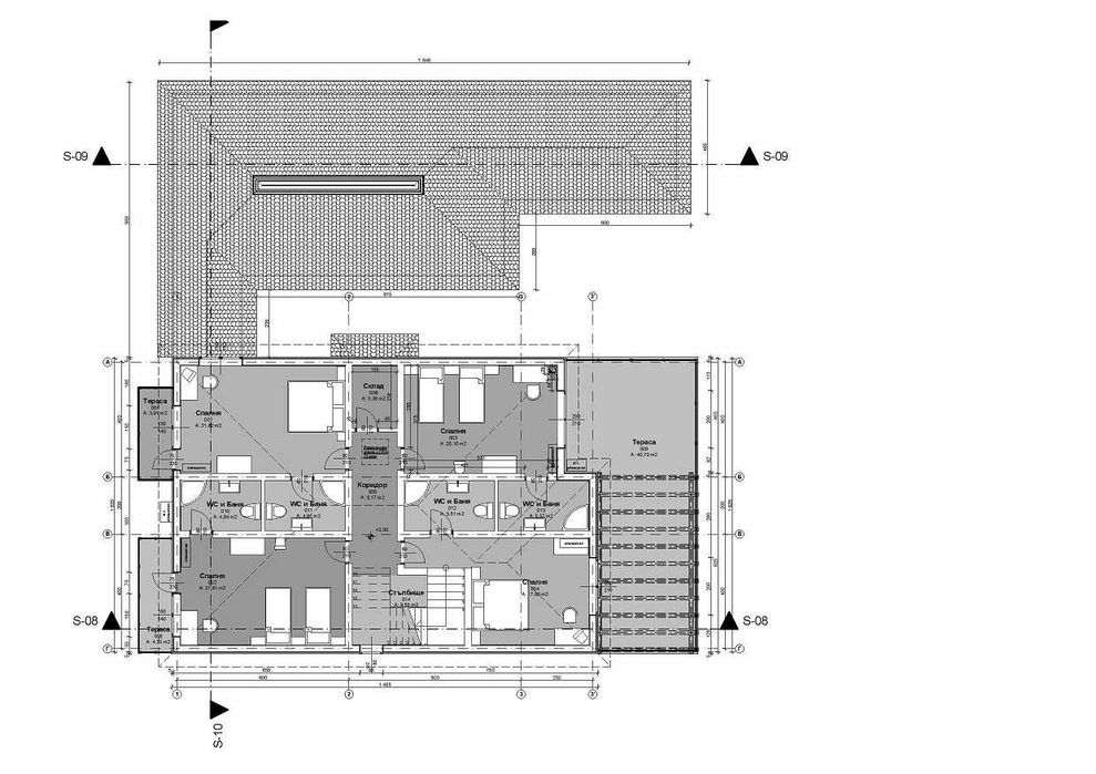
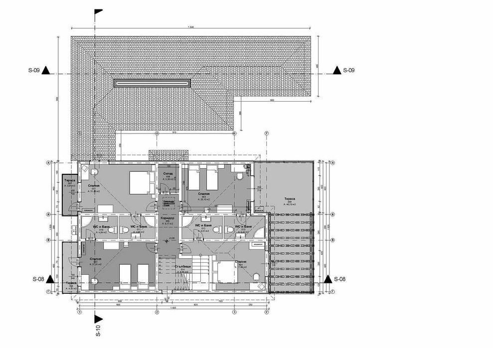
Втори етаж: 4 бр. спални помещения, всяко със собствена баня и тоалетна, сервизно помещение за склад и централно отопление, голяма, панорамна тераса 40 м² с южен изглед към гора и море.
Разпределение сграда за персонал и сервизни помещения 92 м²:
2 бр. спални помещения, дневна с кухненски бокс, баня и тоалетна, сервизно помещение за перални и сушилни.
Помещение 20 м² с широка витрина към пътя, предназначено за търговски обект, помещение за битовка, помещение за склад.
Помещение 15 м² за складиране и продажба на вино (винарна).
Характеристики на имота:
РЗП: 477 м² ново строителство
Парцел: 1266 м²
Локация: с. Горица, община Бяла
Пълна проектна документация
Акт 14, като цената е към тази степен на завършеност
Регистрация като обект за селски туризъм – почивна база с прилежащ търговски обект
Съгласуван проект за изграждане на покривна, фотоволтаична електрическа централа с мощност 4,6 kW
Възможност за довършване на СМР по желание на инвеститора
Комплексът се състои от обособена хотелска част, отделна сграда за персонал и обслужващи помещения.
Сградата е завършена на груб строеж – железобетонна конструкция /колони и плочи/, стени от тухлена зидария, скатен покрив с керемиди.
Парцелът е с голямо лице към основния път за плаж Кара дере.
Разпределение хотелска част 385 м²:
Първи етаж: 2 бр. спални помещения, всяко със собствена баня и тоалетна. Голяма дневна част 45 м², голяма кухненска част 16 м², проектирани заедно да формират голяма, обща зала, 1 бр. помещение за спортни уреди, 1 бр. помещение за сауна, голямо централно предверие за удобство на посетителите.
Втори етаж: 4 бр. спални помещения, всяко със собствена баня и тоалетна, сервизно помещение за склад и централно отопление, голяма, панорамна тераса 40 м² с южен изглед към гора и море.
Разпределение сграда за персонал и сервизни помещения 92 м²:
2 бр. спални помещения, дневна с кухненски бокс, баня и тоалетна, сервизно помещение за перални и сушилни.
Помещение 20 м² с широка витрина към пътя, предназначено за търговски обект, помещение за битовка, помещение за склад.
Помещение 15 м² за складиране и продажба на вино (винарна).
ID: 145416328
Контакт с продавача
xxx xxx xxx
Добавена 23 декември 2025 г.
Къща за гости с магазин в с. Горица
351853.82 лв. / 179900 €
Потребител
Локация
с. Горица
Област Варна