Бизнес
Цена на кв.м: 1101.45
Брой етажи на сградата: 2
Квадратура: 345 кв.м
Квадратура на двора: 550 кв.м
Година на строителство: 2022 г.
Строителство: Тухла
Отопление: Електричество
Състояние на сградата: Завършена
Описание
www.maximmo.bg Реф. № 4134
Нова, модерна, слънчева къща в предпочитаната м-ст Боровец-юг Възможност за разсрочено плащане и довършителни работи по вкуса на клиента. Подходяща и за банково кредитиране.
Сградата е масивна, монолитна с носещ стоманобетонен скелет, (греди и колони) и преградни зидове. Къща се предлага завършена по БДС, с положено подово отопление и ПОДАРЪК-ТЕРМОПОМПА.
РЗП - 345м2
Дворът е равен - 550м2, а имотът е ограден с дизайнерска ограда, която кореспондира отлично с модерната визия на къщата.
На 100м. от главен асфалтов път, магазин и автобусна спирка. Целогодишно живеещи съседи.
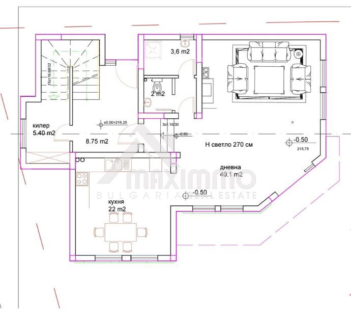
Първи етаж:
Застроената площ на етажа е 107кв.м. Височина на таван 3.30м
На това ниво е заложено да има антре и килер(сервизно помещение за термопомпа), комбиниран санитарен възел и просторна дневна с трапезария 40м2, както и функционално отделена кухненска част. Разпределението дава възможност да устроите пространството според Вашите нужди и предпочитания.
Втори етаж:
На етажа са проектирани три спални с внушителни размери и общ санитарен възел за етажа, както и
самостоятелен такъв към родителската спалня.
От двете спални се предвижда излаз към самостоятелни тераси.
Покривна тераса- "Черешката на тортата", на която има изведени комуникации, за да направите Вашия оазис според Вашето въображение и желание. Възможност за джакузи, барбекю зона, място за релакс, на място с неповторима атмосфера допълвана от гледка гора/море.
Предимства на имота:
Отстои на 3 km южно от квартал Аспарухово и практически се слива с квартал Галата, което дава възможност, дори на семействата с динамично ежедневие, да достигат до всяка точка в града за минимално време.
Тишина, спокойствие, комфорт, съчетани с отлична големина и обем на помещенията.
Ние разполагаме с офис на територията на гр. Варна и можем да организираме оглед в удобно за Вас време.
Компанията ни изготвя всички необходими документи за сделка и извършва обстойна юридическа проверка на имота.
За запитвания, съдействие и консултация се свържете с нас и цитирайте кода на офертата.
Вашият личен консултант: Йорданка Зафирова 08******66
Нова, модерна, слънчева къща в предпочитаната м-ст Боровец-юг Възможност за разсрочено плащане и довършителни работи по вкуса на клиента. Подходяща и за банково кредитиране.
Сградата е масивна, монолитна с носещ стоманобетонен скелет, (греди и колони) и преградни зидове. Къща се предлага завършена по БДС, с положено подово отопление и ПОДАРЪК-ТЕРМОПОМПА.
РЗП - 345м2
Дворът е равен - 550м2, а имотът е ограден с дизайнерска ограда, която кореспондира отлично с модерната визия на къщата.
На 100м. от главен асфалтов път, магазин и автобусна спирка. Целогодишно живеещи съседи.
Първи етаж:
Застроената площ на етажа е 107кв.м. Височина на таван 3.30м
На това ниво е заложено да има антре и килер(сервизно помещение за термопомпа), комбиниран санитарен възел и просторна дневна с трапезария 40м2, както и функционално отделена кухненска част. Разпределението дава възможност да устроите пространството според Вашите нужди и предпочитания.
Втори етаж:
На етажа са проектирани три спални с внушителни размери и общ санитарен възел за етажа, както и
самостоятелен такъв към родителската спалня.
От двете спални се предвижда излаз към самостоятелни тераси.
Покривна тераса- "Черешката на тортата", на която има изведени комуникации, за да направите Вашия оазис според Вашето въображение и желание. Възможност за джакузи, барбекю зона, място за релакс, на място с неповторима атмосфера допълвана от гледка гора/море.
Предимства на имота:
Отстои на 3 km южно от квартал Аспарухово и практически се слива с квартал Галата, което дава възможност, дори на семействата с динамично ежедневие, да достигат до всяка точка в града за минимално време.
Тишина, спокойствие, комфорт, съчетани с отлична големина и обем на помещенията.
Ние разполагаме с офис на територията на гр. Варна и можем да организираме оглед в удобно за Вас време.
Компанията ни изготвя всички необходими документи за сделка и извършва обстойна юридическа проверка на имота.
За запитвания, съдействие и консултация се свържете с нас и цитирайте кода на офертата.
Вашият личен консултант: Йорданка Зафирова 08******66
ID: 135920560
Контакт с продавача
xxx xxx xxx
Добавена 23 септември 2025 г.
Къща в Варна-м-т Боровец - юг площ 345 цена 380000
380000 €
Потребител
Локация
гр. Варна, м-т Боровец - юг
Област Варна
За този потребител