Бизнес
Цена на кв.м: 2178.46
Брой етажи на сградата: 2
Квадратура: 260 кв.м
Квадратура на двора: 253 кв.м
Година на строителство: 2025 г.
Строителство: Тухла
Отопление: Локално
Състояние на сградата: Завършена
Описание
Номер в агенцията - 54363
Агенция Абела предлага за продажба модерна редова къща на три нива, разположена в живописната и тиха местност Косанин Дол, само на няколко минути от София.
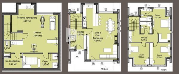
Характеристики: - РЗП: 260.80 кв.м - Двор: 252.70 кв.м Етажи: 3 Степен на завършеност: Пред Акт 16
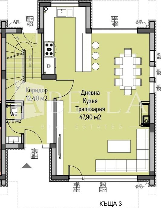
Разпределение: - Сутерен: кът за работа, кът за спане, гардеробна и техническо помещение, което ще обслужва термопомпата. - 1-ви етаж: Слънчева и просторна дневна ( 47м2) и кухненски кът, както и възмможност за поставяне на голяма маса за хранене.На този етаж има и малка тоалетна. - 2-ри етаж: 3 спални, една от които е основна спалня – със собствен санитарен възел и гардеробна, и две допълнителни спални, които ползват общ санитарен възел.
Предимства: - съвременно строителство с висококачествени материали - възможност за индивидуално довършване по вкус - собствен двор и място за паркиране - спокойна и зелена локация с чист въздух - бърз достъп до центъра на София и Околовръстен път
Локация: Местност Косанин Дол предлага перфектния баланс между природа и градски комфорт — чист въздух, красива гледка и удобна комуникация с града.
За това и други наши предложения посетете сайта ни: https://abella.bg/
Агенция Абела предлага за продажба модерна редова къща на три нива, разположена в живописната и тиха местност Косанин Дол, само на няколко минути от София.
Характеристики: - РЗП: 260.80 кв.м - Двор: 252.70 кв.м Етажи: 3 Степен на завършеност: Пред Акт 16
Разпределение: - Сутерен: кът за работа, кът за спане, гардеробна и техническо помещение, което ще обслужва термопомпата. - 1-ви етаж: Слънчева и просторна дневна ( 47м2) и кухненски кът, както и възмможност за поставяне на голяма маса за хранене.На този етаж има и малка тоалетна. - 2-ри етаж: 3 спални, една от които е основна спалня – със собствен санитарен възел и гардеробна, и две допълнителни спални, които ползват общ санитарен възел.
Предимства: - съвременно строителство с висококачествени материали - възможност за индивидуално довършване по вкус - собствен двор и място за паркиране - спокойна и зелена локация с чист въздух - бърз достъп до центъра на София и Околовръстен път
Локация: Местност Косанин Дол предлага перфектния баланс между природа и градски комфорт — чист въздух, красива гледка и удобна комуникация с града.
За това и други наши предложения посетете сайта ни: https://abella.bg/
ID: 145676086
Контакт с продавача
xxx xxx xxx
