Бизнес
Цена на кв.м: 1538.04
Брой етажи на сградата: 1
Квадратура: 184 кв.м
Квадратура на двора: 450 кв.м
Година на строителство: 2025 г.
Строителство: Тухла
Отопление: Електричество
Състояние на сградата: Завършена
Описание
РРеф. 012401
Намалена Цена до АКТ 16
Агенция за недвижими имоти BAS Properties предлага за продажба нова еднофамилна къща с двор, разположена във вилната зона на с. Равно поле близо до София и на 1 км от Голф клуб Св. София . Имотът е част от новостроящ се комплекс с изцяло нова инфраструктура и отлични транспортни връзки с АМ Тракия и бул. Ботевградско шосе . Вече с АКТ 15.
Основни параметри:
- РЗП: 184 кв.м.
- Парцел: 450 кв.м.
- Строителство: Тухла, 2025 г.
- Етап: С Акт 15
- Отопление: Газ и електричество
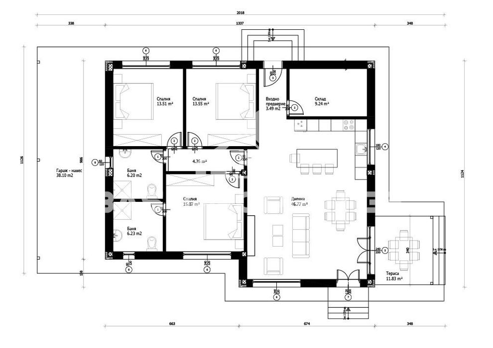
Разпределение:
- Входно антре
- Просторна всекидневна с кухня и трапезария, с излаз към покрита веранда
- Родителска спалня. със собствена баня с WC
- Две спални
- Основна баня с WC
- Техническо помещение
- Навес-гараж
Предимства и характеристики:
Къщата е на един етаж, изградена с материали от висок клас:
- Тухлен зид 37 см + 16 см EPS топлоизолация
- Покривна изолация 30 см вата
- Дограма Deceuninck, 6-камерна, троен стъклопакет
- Външни ролетни щори
Изградена инфраструктура в комплекса: централен газопровод, пречиствателна станция, сондажна вода, оптичен интернет, трифазен ток 15 kW, канализация.
Имотът се продава на замазка , боядисан и с поставени ел. ключове и контакти. Районът е изцяло с нови къщи, тих, зелен и подходящ за семейно живеене.
За допълнителна информация и оглед свържете се с нас!
Предлагаме напълно безплатно съдействие при жилищно кредитиране от банка.
Намалена Цена до АКТ 16
Агенция за недвижими имоти BAS Properties предлага за продажба нова еднофамилна къща с двор, разположена във вилната зона на с. Равно поле близо до София и на 1 км от Голф клуб Св. София . Имотът е част от новостроящ се комплекс с изцяло нова инфраструктура и отлични транспортни връзки с АМ Тракия и бул. Ботевградско шосе . Вече с АКТ 15.
Основни параметри:
- РЗП: 184 кв.м.
- Парцел: 450 кв.м.
- Строителство: Тухла, 2025 г.
- Етап: С Акт 15
- Отопление: Газ и електричество
Разпределение:
- Входно антре
- Просторна всекидневна с кухня и трапезария, с излаз към покрита веранда
- Родителска спалня. със собствена баня с WC
- Две спални
- Основна баня с WC
- Техническо помещение
- Навес-гараж
Предимства и характеристики:
Къщата е на един етаж, изградена с материали от висок клас:
- Тухлен зид 37 см + 16 см EPS топлоизолация
- Покривна изолация 30 см вата
- Дограма Deceuninck, 6-камерна, троен стъклопакет
- Външни ролетни щори
Изградена инфраструктура в комплекса: централен газопровод, пречиствателна станция, сондажна вода, оптичен интернет, трифазен ток 15 kW, канализация.
Имотът се продава на замазка , боядисан и с поставени ел. ключове и контакти. Районът е изцяло с нови къщи, тих, зелен и подходящ за семейно живеене.
За допълнителна информация и оглед свържете се с нас!
Предлагаме напълно безплатно съдействие при жилищно кредитиране от банка.
ID: 146155110
Контакт с продавача
xxx xxx xxx

