Бизнес
Цена на кв.м: 1030.93
Брой етажи на сградата: 3
Квадратура: 291 кв.м
Квадратура на двора: 248 кв.м
Година на строителство: 2026 г.
Строителство: Тухла
Отопление: Електричество
Състояние на сградата: В строеж
Особености: гараж
Описание
Компания X представя на Вашето внимание къща в с.Първенец.
МЕСТОПОЛОЖЕНИЕ:.Комплекс Фотиния се състои от 12 еднофамилни двуетажни къщи на калкан от два типа, Тип А и Тип Б, всяка на парцел от 350 м2. В допълнение, има 4 самостоятелни къщи Тип А и Тип Б, всяка на парцел от 700 м2. Комплексът е с контролиран достъп, разположен в началото на Първенец на 15-20 мин от Пловдив и на около 200 м от главния път Пловдив-Първенец, с прекрасна гледка към Родопите. Всички сгради са с централен водопровод и канализация и са изпълнени с материали от водещи световни производители. В непосредствена близост са разположени супермаркет, ресторанти, търговски обекти, детски градини, училище.
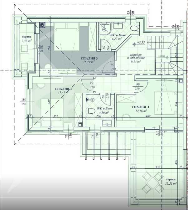
РАЗПРЕДЕЛЕНИЕ: Къщата разполага с площ от 291кв.м.Първи етаж- Дневна с трапезария,кухня, килер, баня с тоалетна, веранда.Втори етаж-Спалня със самостаятелна баня и тоалетна, дрешник, две сплани, баня и тоалетна, две тераси.Дворно място за ползване 248кв.м , гараж - 20,56кв.м.
СЪСТОЯНИЕ: В строеж.
Заповядайте да Ви го покажем. Използвайки нашите услуги Вие ще превърнете закупуването на новия си дом в едно приятно изживяване, ще получите персонален консултант, съдействие при кандидатстване за кредит от всички банки в България, интериорни дизайнери и екип, който да се погрижи за нужните документи по Вашата сделка. На Ваше разположение сме всеки ден, от понеделник до неделя от 09:00 до 20:00ч. Възползвайте се от безплатна консултация в наш офис, където ще ви спестим време и ще ви запознаем с всички актуални имоти в България, отговарящи на Вашето търсене. Свържете се с нас нужен Вие само кодът на имотът:788-23563
МЕСТОПОЛОЖЕНИЕ:.Комплекс Фотиния се състои от 12 еднофамилни двуетажни къщи на калкан от два типа, Тип А и Тип Б, всяка на парцел от 350 м2. В допълнение, има 4 самостоятелни къщи Тип А и Тип Б, всяка на парцел от 700 м2. Комплексът е с контролиран достъп, разположен в началото на Първенец на 15-20 мин от Пловдив и на около 200 м от главния път Пловдив-Първенец, с прекрасна гледка към Родопите. Всички сгради са с централен водопровод и канализация и са изпълнени с материали от водещи световни производители. В непосредствена близост са разположени супермаркет, ресторанти, търговски обекти, детски градини, училище.
РАЗПРЕДЕЛЕНИЕ: Къщата разполага с площ от 291кв.м.Първи етаж- Дневна с трапезария,кухня, килер, баня с тоалетна, веранда.Втори етаж-Спалня със самостаятелна баня и тоалетна, дрешник, две сплани, баня и тоалетна, две тераси.Дворно място за ползване 248кв.м , гараж - 20,56кв.м.
СЪСТОЯНИЕ: В строеж.
Заповядайте да Ви го покажем. Използвайки нашите услуги Вие ще превърнете закупуването на новия си дом в едно приятно изживяване, ще получите персонален консултант, съдействие при кандидатстване за кредит от всички банки в България, интериорни дизайнери и екип, който да се погрижи за нужните документи по Вашата сделка. На Ваше разположение сме всеки ден, от понеделник до неделя от 09:00 до 20:00ч. Възползвайте се от безплатна консултация в наш офис, където ще ви спестим време и ще ви запознаем с всички актуални имоти в България, отговарящи на Вашето търсене. Свържете се с нас нужен Вие само кодът на имотът:788-23563
ID: 140951039
Контакт с продавача
xxx xxx xxx
