Бизнес
Цена на кв.м: 2025.64
Брой етажи на сградата: 3
Квадратура: 390 кв.м
Квадратура на двора: 410 кв.м
Година на строителство: 2024 г.
Строителство: Тухла
Отопление: Локално
Състояние на сградата: Завършена
Описание
ХОУМ ЛАЙТ предлага на Вашето внимание уникална възможност за инвестиция!
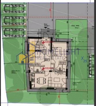
Тази триетажна къща се намира в кв. Малинова долина, в близост до Бизнес парк, бул. Околовръстен път и м-т Камбаните. Имотът предлага възможност за еднофамилно или многофамилно ползване, като също така може да бъде разширен с четвърти покривен етаж.
Къщата е на АКТ 15, като се очаква АКТ16 - 2024г.
Идеалната му локация осигурява бърз и лесен достъп до големи вериги магазини, училища. детски градини, бизнес парк, околовръстен път и центъра на града.
Първите два етажа са направени като идентични - тристайни самостоятелни апартаменти. Като на първия етаж могат да бъдат избити 2 стени и стаите да се превърнат в огромен хол с всекидневна и кухня или пък например офис, стая за забавления, домашно кино или други. Има възможност за 7 спални и 7 бани с тоалетни.
На последния етаж може да излезнете на огромната тераса и да се насладите на невероятна гледка към Витоша и гр. София. Гледката е 360-градусова, а имотът се намира на изключително спокойна улица, създаваща планинско уединение и бягство от големия град.
Имотът е изложен на юг и на запад, осигурявайки обилно слънчево осветление през целия ден.
Отоплението на имота може да бъде на ГАЗ и ТОК, което ще ви предостави комфорт в студените месеци.
В двора има възможност за 4 паркоместа.
За повече информация и огледи, този номер ще Ви е необходим – 3030.
Тази триетажна къща се намира в кв. Малинова долина, в близост до Бизнес парк, бул. Околовръстен път и м-т Камбаните. Имотът предлага възможност за еднофамилно или многофамилно ползване, като също така може да бъде разширен с четвърти покривен етаж.
Къщата е на АКТ 15, като се очаква АКТ16 - 2024г.
Идеалната му локация осигурява бърз и лесен достъп до големи вериги магазини, училища. детски градини, бизнес парк, околовръстен път и центъра на града.
Първите два етажа са направени като идентични - тристайни самостоятелни апартаменти. Като на първия етаж могат да бъдат избити 2 стени и стаите да се превърнат в огромен хол с всекидневна и кухня или пък например офис, стая за забавления, домашно кино или други. Има възможност за 7 спални и 7 бани с тоалетни.
На последния етаж може да излезнете на огромната тераса и да се насладите на невероятна гледка към Витоша и гр. София. Гледката е 360-градусова, а имотът се намира на изключително спокойна улица, създаваща планинско уединение и бягство от големия град.
Имотът е изложен на юг и на запад, осигурявайки обилно слънчево осветление през целия ден.
Отоплението на имота може да бъде на ГАЗ и ТОК, което ще ви предостави комфорт в студените месеци.
В двора има възможност за 4 паркоместа.
За повече информация и огледи, този номер ще Ви е необходим – 3030.
ID: 141320195
Контакт с продавача
xxx xxx xxx

