Бизнес
Цена на кв.м: 1084.44
Брой етажи на сградата: 2
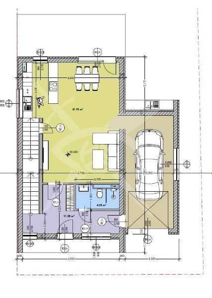
Квадратура: 225 кв.м
Квадратура на двора: 500 кв.м
Година на строителство: 2014 г.
Строителство: Тухла
Отопление: Електричество
Състояние на сградата: Завършена
Описание
Компания Х представя на Вашето внимание къща кв. Долно Езерово, гр. Бургас
МЕСТОПОЛОЖЕНИЕ: Долно Езерово е квартал на град Бургас, разположен в западната част на града, на брега на Бургаското езеро (Вая). Намира се на около 10 км от центъра на Бургас, в близост до индустриалната зона и основни транспортни връзки.
РАЗПРЕДЕЛЕНИЕ: Разполага с площ 225 кв.м., площ на двора 500 кв.м.
Заповядайте да Ви го покажем. Използвайки нашите услуги Вие ще превърнете закупуването на новия си дом в едно приятно изживяване, ще получите персонален консултант, съдействие при кандидатстване за кредит от всички банки в България, интериорни дизайнери и екип, който да се погрижи за нужните документи по Вашата сделка. На Ваше разположение сме всеки ден, от понеделник до неделя от 09:00 до 20:00ч. Възползвайте се от безплатна консултация в наш офис, където ще ви спестим време и ще ви запознаем с всички актуални имоти в България, отговарящи на Вашето търсене. Свържете се с нас на 08******90 или на 08******83 и цитирайте кода към имота: 88256
МЕСТОПОЛОЖЕНИЕ: Долно Езерово е квартал на град Бургас, разположен в западната част на града, на брега на Бургаското езеро (Вая). Намира се на около 10 км от центъра на Бургас, в близост до индустриалната зона и основни транспортни връзки.
РАЗПРЕДЕЛЕНИЕ: Разполага с площ 225 кв.м., площ на двора 500 кв.м.
Заповядайте да Ви го покажем. Използвайки нашите услуги Вие ще превърнете закупуването на новия си дом в едно приятно изживяване, ще получите персонален консултант, съдействие при кандидатстване за кредит от всички банки в България, интериорни дизайнери и екип, който да се погрижи за нужните документи по Вашата сделка. На Ваше разположение сме всеки ден, от понеделник до неделя от 09:00 до 20:00ч. Възползвайте се от безплатна консултация в наш офис, където ще ви спестим време и ще ви запознаем с всички актуални имоти в България, отговарящи на Вашето търсене. Свържете се с нас на 08******90 или на 08******83 и цитирайте кода към имота: 88256
ID: 145478981
Контакт с продавача
xxx xxx xxx