Бизнес
Цена на кв.м: 1351.35
Брой етажи на сградата: 1
Квадратура: 222 кв.м
Квадратура на двора: 1 кв.м
Година на строителство: 2025 г.
Строителство: Тухла
Отопление: Електричество
Състояние на сградата: Завършена
Описание
Компания `Х` представя на Вашето внимание къща в Храбрино!
МЕСТОПОЛОЖЕНИЕ: Село Храбрино се намира в полите на Родопите, само на около 15 км от Пловдив, и е отличен избор за покупка на къща в природосъобразна и спокойна среда. Местоположението му съчетава красива природа, чист въздух и невероятни гледки, което го прави предпочитано място както за постоянно живеене, така и за ваканционен дом. Къщите в Храбрино често разполагат с просторни дворове и добър потенциал за реновиране или изграждане на ново строителство. Селото има основни удобства, а близостта до Пловдив осигурява бърз достъп до всички градски услуги. Инвестицията в имот в Храбрино е разумен избор за хора, търсещи тишина, природа и уют на кратко разстояние от града.
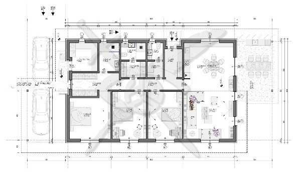
РАЗПРЕДЕЛЕНИЕ:Разполага с площ от 222 кв.м. разгърната в следното функционално разпределение:дневна,кухненски бокс с трапезария,три спални,склад,гардеробна,перално помещение,3 санитарни възела.
СЪСТОЯНИЕ:Имота се предлага необзаведен!Предоставя възможност на бъдещите собственици да изградят новия си дом с личен вкус и стил!
Заповядайте да Ви го покажем. Използвайки нашите услуги Вие ще превърнете закупуването на новия си дом в едно приятно изживяване, ще получите персонален консултант, съдействие при кандидатстване за кредит от всички банки в България, интериорни дизайнери и екип, който да се погрижи за нужните документи по Вашата сделка. На Ваше разположение сме всеки ден, от понеделник до неделя от 09:00 до 20:00ч. Възползвайте се от безплатна консултация в наш офис, където ще ви спестим време и ще ви запознаем с всички актуални имоти в България, отговарящи на Вашето търсене. Свържете се с нас на 08******90 или на 08******90 и цитирайте кода към имота: 71295
МЕСТОПОЛОЖЕНИЕ: Село Храбрино се намира в полите на Родопите, само на около 15 км от Пловдив, и е отличен избор за покупка на къща в природосъобразна и спокойна среда. Местоположението му съчетава красива природа, чист въздух и невероятни гледки, което го прави предпочитано място както за постоянно живеене, така и за ваканционен дом. Къщите в Храбрино често разполагат с просторни дворове и добър потенциал за реновиране или изграждане на ново строителство. Селото има основни удобства, а близостта до Пловдив осигурява бърз достъп до всички градски услуги. Инвестицията в имот в Храбрино е разумен избор за хора, търсещи тишина, природа и уют на кратко разстояние от града.
РАЗПРЕДЕЛЕНИЕ:Разполага с площ от 222 кв.м. разгърната в следното функционално разпределение:дневна,кухненски бокс с трапезария,три спални,склад,гардеробна,перално помещение,3 санитарни възела.
СЪСТОЯНИЕ:Имота се предлага необзаведен!Предоставя възможност на бъдещите собственици да изградят новия си дом с личен вкус и стил!
Заповядайте да Ви го покажем. Използвайки нашите услуги Вие ще превърнете закупуването на новия си дом в едно приятно изживяване, ще получите персонален консултант, съдействие при кандидатстване за кредит от всички банки в България, интериорни дизайнери и екип, който да се погрижи за нужните документи по Вашата сделка. На Ваше разположение сме всеки ден, от понеделник до неделя от 09:00 до 20:00ч. Възползвайте се от безплатна консултация в наш офис, където ще ви спестим време и ще ви запознаем с всички актуални имоти в България, отговарящи на Вашето търсене. Свържете се с нас на 08******90 или на 08******90 и цитирайте кода към имота: 71295
ID: 145758167
Контакт с продавача
xxx xxx xxx