Бизнес
Цена на кв.м: 1193.18
Брой етажи на сградата: 1
Квадратура: 176 кв.м
Квадратура на двора: 750 кв.м
Година на строителство: 2026 г.
Строителство: Друго
Отопление: Електричество
Състояние на сградата: Завършена
Описание
Монс Пропъртис има удоволствието да Ви представи за продажба модерна къща с голям двор и елегантен дизайн в гр. Севлиево, м. Крушевски баир
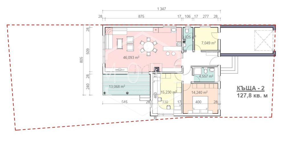
Къщата е на един етаж с обща площ от 176 м2, а площта на парцела е 750 м2 - просторен двор с възможност за изграждане на детски кът, барбекю или басейн.
Разпределенито е следното: три спални, една от които с дрешник, всекидневна с кухненски бокс, две бани с тоалетни, голяма веранда с южно изложение и гараж.
Проектът се изпълнява с най- висок клас материали: керамичен покрив с вентилационна система, висококачествени хидро и топлоизолация, най- висок клас дограма, модерна фасада с архитектурни акценти.
Къщата съчетава модерна архитектура и функционално семейно пространство – идеален избор за млади семейства, които ценят качеството на живот.
Има възможнос за обособяване на домашен офис или гостна стая.
Отличен имот както за лично ползване, така и като инвестиция, проектиран с фокус върху енергийната ефективност, функционалността и комфорта на съвременното семейство.
Конструкция - естествена, екологична и енергийно ефективна.
Степен на завършеност - акт 14.
Очакван акт 16 - юни 2026г.
Степен на издаване - по БДС, на шпакловка и замазка.
Гаранционни срокове за конструкция, инсталации, хидро и топлоизолации.
Възможност за довършителни работи и завършване "до ключ".
За локацията:
Тиха и зелена среда с усещане за уединение и сигурност.
гр. Севлиево, м. Крушевски баир – в близост до Лозарска среща, предпочитана тиха и зелена зона, подходяща за целогодишно живеене.
Локацията предлага спокойствие, дискретност и природа, съчетани с бърз и удобен достъп до града.
Възможност за разсрочено плащане.
Код на оферта: 0246
Ние от Монс Пропъртис можем да Ви съдействаме със следните услуги:
-Безплатно посредничество при кредитиране от всички банки.
-Юридически услуги
Modern house with a large yard and elegant design in Sevlievo, Krushevski Baiir area.
Mons Properties is pleased to present for sale a modern house with a large yard and elegant design in the town of Sevlievo, Krushevski Baiir. The house is on one floor with a total area of 176 m2, and the plot area is 750 m2 - a spacious yard with the possibility of building a children's playground.
The layout is as follows: three bedrooms, one of which has a walk-in closet, a living room with a kitchenette, two bathrooms with toilets, a large veranda with a south-facing terrace.
The layout is as follows: three bedrooms, one of which has a walk-in closet, a living room with a kitchenette, two bathrooms with toilets, a large south-facing veranda, and a garage.
The project is being implemented with the highest quality materials: ceramic roof with ventilation system, high-quality hydro and thermal insulation, top-class joinery, modern facade with architectural accents.
The house combines modern architecture and functional family space - an ideal choice for young families who value quality of life.
There is the possibility of creating a home office or guest room. An excellent property for both personal use and as an investment, designed with a focus on energy efficiency, functionality, and the comfort of the modern family.
Construction - natural, environmentally friendly, and energy efficient. Degree of completion - Act 14. Expected Act 16 - June 2026. Degree of issuance - according to BDS, on plaster and putty.
Warranty periods for construction, installations, hydro and thermal insulation. Possibility for finishing works and turnkey completion. About the location: Quiet and green environment with a sense of privacy and security.
Sevlievo, Krushevski Baiir - close to Lozarska Sreshta, a preferred quiet and green area, suitable for year-round living. The location offers tranquility, discretion, and nature, combined with quick and convenient access to the city.
Possibility of deferred payment. Offer code: 0246 We at Mons Properties can assist you with the following services: -Free mediation for loans from all banks. -Legal services
Къщата е на един етаж с обща площ от 176 м2, а площта на парцела е 750 м2 - просторен двор с възможност за изграждане на детски кът, барбекю или басейн.
Разпределенито е следното: три спални, една от които с дрешник, всекидневна с кухненски бокс, две бани с тоалетни, голяма веранда с южно изложение и гараж.
Проектът се изпълнява с най- висок клас материали: керамичен покрив с вентилационна система, висококачествени хидро и топлоизолация, най- висок клас дограма, модерна фасада с архитектурни акценти.
Къщата съчетава модерна архитектура и функционално семейно пространство – идеален избор за млади семейства, които ценят качеството на живот.
Има възможнос за обособяване на домашен офис или гостна стая.
Отличен имот както за лично ползване, така и като инвестиция, проектиран с фокус върху енергийната ефективност, функционалността и комфорта на съвременното семейство.
Конструкция - естествена, екологична и енергийно ефективна.
Степен на завършеност - акт 14.
Очакван акт 16 - юни 2026г.
Степен на издаване - по БДС, на шпакловка и замазка.
Гаранционни срокове за конструкция, инсталации, хидро и топлоизолации.
Възможност за довършителни работи и завършване "до ключ".
За локацията:
Тиха и зелена среда с усещане за уединение и сигурност.
гр. Севлиево, м. Крушевски баир – в близост до Лозарска среща, предпочитана тиха и зелена зона, подходяща за целогодишно живеене.
Локацията предлага спокойствие, дискретност и природа, съчетани с бърз и удобен достъп до града.
Възможност за разсрочено плащане.
Код на оферта: 0246
Ние от Монс Пропъртис можем да Ви съдействаме със следните услуги:
-Безплатно посредничество при кредитиране от всички банки.
-Юридически услуги
Modern house with a large yard and elegant design in Sevlievo, Krushevski Baiir area.
Mons Properties is pleased to present for sale a modern house with a large yard and elegant design in the town of Sevlievo, Krushevski Baiir. The house is on one floor with a total area of 176 m2, and the plot area is 750 m2 - a spacious yard with the possibility of building a children's playground.
The layout is as follows: three bedrooms, one of which has a walk-in closet, a living room with a kitchenette, two bathrooms with toilets, a large veranda with a south-facing terrace.
The layout is as follows: three bedrooms, one of which has a walk-in closet, a living room with a kitchenette, two bathrooms with toilets, a large south-facing veranda, and a garage.
The project is being implemented with the highest quality materials: ceramic roof with ventilation system, high-quality hydro and thermal insulation, top-class joinery, modern facade with architectural accents.
The house combines modern architecture and functional family space - an ideal choice for young families who value quality of life.
There is the possibility of creating a home office or guest room. An excellent property for both personal use and as an investment, designed with a focus on energy efficiency, functionality, and the comfort of the modern family.
Construction - natural, environmentally friendly, and energy efficient. Degree of completion - Act 14. Expected Act 16 - June 2026. Degree of issuance - according to BDS, on plaster and putty.
Warranty periods for construction, installations, hydro and thermal insulation. Possibility for finishing works and turnkey completion. About the location: Quiet and green environment with a sense of privacy and security.
Sevlievo, Krushevski Baiir - close to Lozarska Sreshta, a preferred quiet and green area, suitable for year-round living. The location offers tranquility, discretion, and nature, combined with quick and convenient access to the city.
Possibility of deferred payment. Offer code: 0246 We at Mons Properties can assist you with the following services: -Free mediation for loans from all banks. -Legal services
ID: 146835560
Контакт с продавача
xxx xxx xxx
