Бизнес
Цена на кв.м: 1193
Брой етажи на сградата: 1
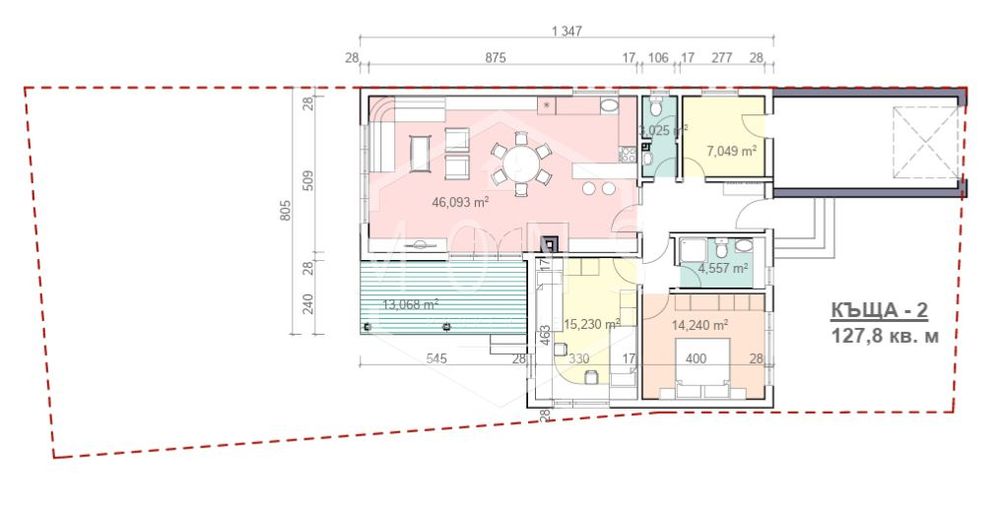
Квадратура: 100 кв.м
Квадратура на двора: 750 кв.м
Година на строителство: 2026 г.
Строителство: Друго
Отопление: Електричество
Състояние на сградата: Завършена
Описание
ЛУКСОЗЕН ПРОЕКТ ЗА КЪЩА
ДОМ, СЪЗДАДЕН ПО ВАШ ИЗБОР ГР. СЕВЛИЕВО
Mons Properties предлага ексклузивна възможност за изграждане на Вашият дом на проектно ниво, създаден специално за клиенти, които търсят индивидуалност, качество и дългосрочна стойност, а не готово стандартно решение.
Това е дом, проектиран изцяло според Вас.
Площ на парцел - 750 м2.
Площ на къщата - от 100 м2 до 200 м2, в зависимост от избрания от Вас проект.
Архитектура, съобразена с начина Ви на живот
Имотът се предлага на етап проект, като бъдещият собственик разполага с пълна свобода при проектирането, включително:
Избор на етажност – едноетажна или двуетажна къща
Брой спални и бани, спрямо нуждите на семейството
Индивидуално разпределение на помещенията
Възможност за гараж или паркоместа
Двор, веранда, тераси, басейн, зона за отдих
Избор на архитектурен стил – модерен, минималистичен или класически
Всеки проект се разработва индивидуално, с фокус върху функционалност, естетика и комфорт.
Качество, устойчивост и дългосрочна стойност
Проектът позволява изграждане на дом с:
Съвременно архитектурно проектиране
Висока енергийна ефективност
Отлична естествена осветеност
Качествени материали и системи, подбрани според желанията на клиента
Гаранционни срокове за конструкция, инсталации, хидро и топлоизолации.
Възможност за довършителни работи и завършване "до ключ".
Резултатът е елегантен, функционален и устойчив семеен дом, създаден да служи поколения напред.
За кого е подходящ този проект?
За клиенти, които търсят уникален дом, а не масово строителство
За семейства, планиращи дългосрочно бъдещето си
За хора с визия, които ценят всеки детайл
Подходящ и като инвестиция в парцел и индивидуално строителство
За локацията:
гр. Севлиево, м. Крушевски баир – в близост до Лозарска среща, предпочитана тиха и зелена зона, подходяща за целогодишно живеене.
Локацията предлага спокойствие, дискретност и природа, съчетани с бърз и удобен достъп до града.
Възможност за разсрочено плащане.
Код на оферта: 0247
Ние от Монс Пропъртис можем да Ви съдействаме със следните услуги:
-Безплатно посредничество при кредитиране от всички банки.
-Юридически услуги
Luxury custom-designed house project – build your home from scratch, Sevlievo
LUXURY HOUSE PROJECT, CREATED TO YOUR SPECIFICATIONS SEVLIEVO
This is a home designed entirely according to your preferences. Plot area – 750 m2.
Plot area - 750 m2. House area - from 100 m2 to 200 m2, depending on the project you choose.
Architecture tailored to your lifestyle The property is offered at the design stage, with the future owner having complete freedom in the design, including: Choice of number of floors - single-storey or multi-storey house Number of bedrooms and bathrooms, according to the needs of the family
Individual room layout Option for a garage or parking spaces Yard, veranda, terraces, swimming pool, recreation area Choice of architectural style – modern, minimalist, or classic Each project is developed individually, with a focus on functionality, aesthetics, and comfort.
Quality, sustainability, and long-term value The project allows for the construction of a home with: Contemporary architectural design High energy efficiency Excellent natural lighting High-quality materials and systems, selected according to the client's wishes
Warranty periods for construction, installations, hydro and thermal insulation. Possibility for finishing works and turnkey completion. The result is an elegant, functional and sustainable family home, created to serve generations to come.
Who is this project suitable for? For customers looking for a unique home, not mass construction For families planning their long-term future For people with vision who appreciate every detail Suitable as an investment in land and individual construction
About the location: Sevlievo, Krushevski Baiir area – close to Lozarska Sreshta, a preferred quiet and green area, suitable for year-round living. The location offers tranquility, privacy, and nature, combined with quick and convenient access to the city.
Possi
ДОМ, СЪЗДАДЕН ПО ВАШ ИЗБОР ГР. СЕВЛИЕВО
Mons Properties предлага ексклузивна възможност за изграждане на Вашият дом на проектно ниво, създаден специално за клиенти, които търсят индивидуалност, качество и дългосрочна стойност, а не готово стандартно решение.
Това е дом, проектиран изцяло според Вас.
Площ на парцел - 750 м2.
Площ на къщата - от 100 м2 до 200 м2, в зависимост от избрания от Вас проект.
Архитектура, съобразена с начина Ви на живот
Имотът се предлага на етап проект, като бъдещият собственик разполага с пълна свобода при проектирането, включително:
Избор на етажност – едноетажна или двуетажна къща
Брой спални и бани, спрямо нуждите на семейството
Индивидуално разпределение на помещенията
Възможност за гараж или паркоместа
Двор, веранда, тераси, басейн, зона за отдих
Избор на архитектурен стил – модерен, минималистичен или класически
Всеки проект се разработва индивидуално, с фокус върху функционалност, естетика и комфорт.
Качество, устойчивост и дългосрочна стойност
Проектът позволява изграждане на дом с:
Съвременно архитектурно проектиране
Висока енергийна ефективност
Отлична естествена осветеност
Качествени материали и системи, подбрани според желанията на клиента
Гаранционни срокове за конструкция, инсталации, хидро и топлоизолации.
Възможност за довършителни работи и завършване "до ключ".
Резултатът е елегантен, функционален и устойчив семеен дом, създаден да служи поколения напред.
За кого е подходящ този проект?
За клиенти, които търсят уникален дом, а не масово строителство
За семейства, планиращи дългосрочно бъдещето си
За хора с визия, които ценят всеки детайл
Подходящ и като инвестиция в парцел и индивидуално строителство
За локацията:
гр. Севлиево, м. Крушевски баир – в близост до Лозарска среща, предпочитана тиха и зелена зона, подходяща за целогодишно живеене.
Локацията предлага спокойствие, дискретност и природа, съчетани с бърз и удобен достъп до града.
Възможност за разсрочено плащане.
Код на оферта: 0247
Ние от Монс Пропъртис можем да Ви съдействаме със следните услуги:
-Безплатно посредничество при кредитиране от всички банки.
-Юридически услуги
Luxury custom-designed house project – build your home from scratch, Sevlievo
LUXURY HOUSE PROJECT, CREATED TO YOUR SPECIFICATIONS SEVLIEVO
This is a home designed entirely according to your preferences. Plot area – 750 m2.
Plot area - 750 m2. House area - from 100 m2 to 200 m2, depending on the project you choose.
Architecture tailored to your lifestyle The property is offered at the design stage, with the future owner having complete freedom in the design, including: Choice of number of floors - single-storey or multi-storey house Number of bedrooms and bathrooms, according to the needs of the family
Individual room layout Option for a garage or parking spaces Yard, veranda, terraces, swimming pool, recreation area Choice of architectural style – modern, minimalist, or classic Each project is developed individually, with a focus on functionality, aesthetics, and comfort.
Quality, sustainability, and long-term value The project allows for the construction of a home with: Contemporary architectural design High energy efficiency Excellent natural lighting High-quality materials and systems, selected according to the client's wishes
Warranty periods for construction, installations, hydro and thermal insulation. Possibility for finishing works and turnkey completion. The result is an elegant, functional and sustainable family home, created to serve generations to come.
Who is this project suitable for? For customers looking for a unique home, not mass construction For families planning their long-term future For people with vision who appreciate every detail Suitable as an investment in land and individual construction
About the location: Sevlievo, Krushevski Baiir area – close to Lozarska Sreshta, a preferred quiet and green area, suitable for year-round living. The location offers tranquility, privacy, and nature, combined with quick and convenient access to the city.
Possi
ID: 146835653
Контакт с продавача
xxx xxx xxx
