Бизнес
Цена на кв.м: 1400
Брой етажи на сградата: 2
Квадратура: 200 кв.м
Квадратура на двора: 300 кв.м
Година на строителство: 2026 г.
Строителство: Тухла
Отопление: Електричество
Състояние на сградата: В строеж
Особености: гараж, паркинг, лизинг, затворен комплекс
Описание
ОТКРИТА СТРОИТЕЛНА ПЛОЩАДКА!
Стартирано строителството!
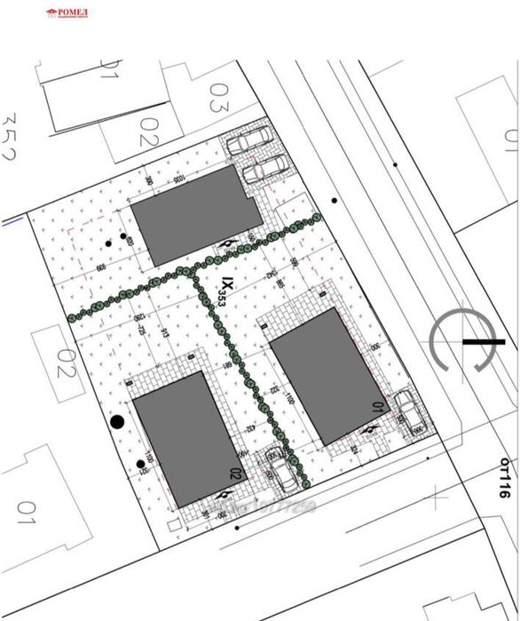
Предлагат се 3 двуетажни еднофамилни къщи в общ двор. Имотът се намира в централната част на с. Звездица - отлично местоположение, съчетаващо спокойствие и удобен достъп.
Проектът съчетава функционалност, модерна архитектура и качествено строителство.
Разпределение
ЧЖП: 183 кв.м
Първи етаж: 88.35 кв.м
Втори етаж: 94.10 кв.м
Предимства на имота
Обезпечено паркиране - гаражи и паркоместа
Качествени материали, отлична топло- и хидроизолация, модерна дограма
Възможност за индивидуални архитектурни решения при ранно включване в строителството
Идеален избор за хора, търсещи комфорт, функционалност и дом в тих, но добре развит район.
За повече информация пишете или ни звъннете на посочения телефон
Стартирано строителството!
Предлагат се 3 двуетажни еднофамилни къщи в общ двор. Имотът се намира в централната част на с. Звездица - отлично местоположение, съчетаващо спокойствие и удобен достъп.
Проектът съчетава функционалност, модерна архитектура и качествено строителство.
Разпределение
ЧЖП: 183 кв.м
Първи етаж: 88.35 кв.м
Втори етаж: 94.10 кв.м
Предимства на имота
Обезпечено паркиране - гаражи и паркоместа
Качествени материали, отлична топло- и хидроизолация, модерна дограма
Възможност за индивидуални архитектурни решения при ранно включване в строителството
Идеален избор за хора, търсещи комфорт, функционалност и дом в тих, но добре развит район.
За повече информация пишете или ни звъннете на посочения телефон
ID: 146405023
Контакт с продавача
xxx xxx xxx
Добавена 11 декември 2025 г.
Къща с Звездица гр.Варна
547632.40 лв. / 280000 €
Потребител
Локация
с. Звездица
Област Варна