Частна
Цена на кв.м: 1247.47
Брой етажи на сградата: 2
Квадратура: 198 кв.м
Квадратура на двора: 625 кв.м
Година на строителство: 2024 г.
Строителство: Тухла
Отопление: Термопомпа
Състояние на сградата: Завършена
Особености: санирана
Описание
Самостоятелна новопостроена къща село Приселци. Сградата е нанесена в кадастъра което е видно от снимките (АКТ 14, степен на завършеност и удостоверение от община Аврен). Това дава възможност за отпускане на ИПОТЕЧЕН КРЕДИТ от банка.
Къщата е с РЗП 198 м2, построена в самостоятелен парцел от 625 м2.
Къщата е със следното разпределение:
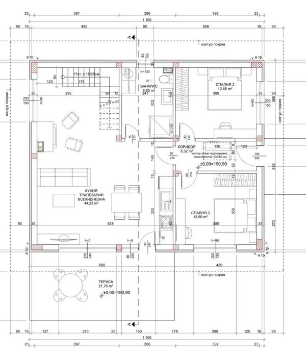
1 - ви етаж: входно антре, вътрешно стълбище към втория етаж, просторна дневна 44,23 м2 с френски прозорци и веранда от 20,54 м2. 2 еднакви спални 12.65 м2, коридор 5.32 м2 и санитарен възел баня и тоалетна 6.65 м2.
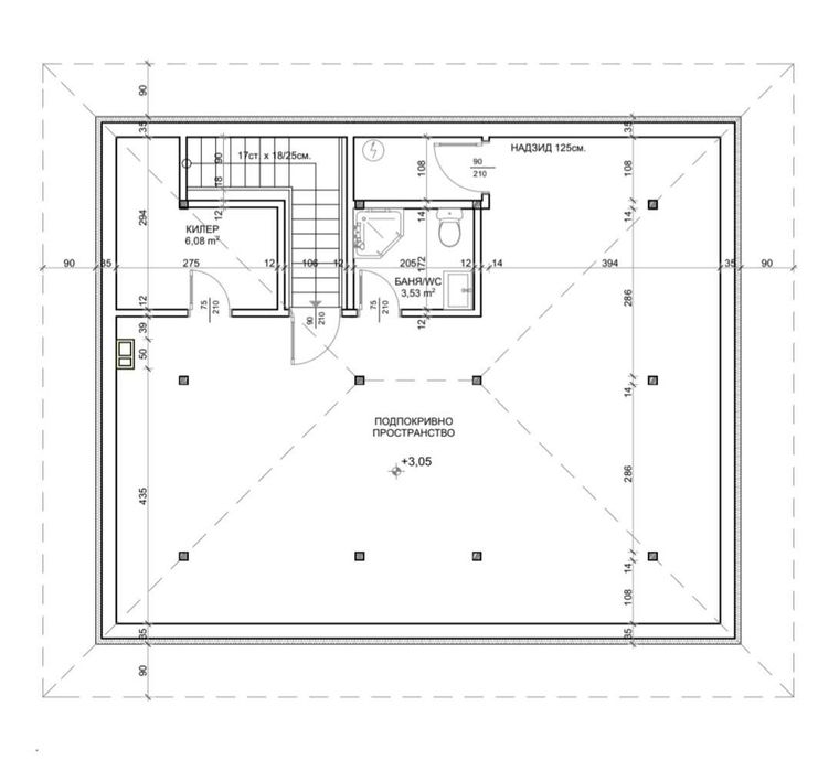
2 - ри етаж: общо пространство 73.25 м2 с възможност да се раздели на две спални плюс коридор, баня с тоалетна 3.53 м2, килер 6.08 м2 и сервизно помещение 2.38 м2.
Всички санитарни помещения и стълбище са с прозорци с естествена дневна светлина.
Всички помещения в сградата са ориентирани на ЮГ. Изградена е ВиК и ЕЛ мрежа окабелена е с ТВ кабели и кабел за ИНТЕРНЕТ. Отоплението на сградата е с ТЕРМОПОМПА, конвектори и лира в банята. Поставено е подово отопление със съответната изолация бойлер за двете бани захранвано от термопомпата.
Имотът се намира на 16 км от Катедрален храм 'Св. Успение Богородично' Варна, отлична локация, бърз и лесен достъп.
В село Приселци има начално училище, детска градина, супермаркети, лаборатория, аптека, бензиностанции, паркове, поща.
ЧАСТНО ЛИЦЕ - предоставям документи за проверка от ваш адвокат (напълно изрядни документи с партида на ток и вода).
За повече информация се обадете на тел. 08******61
Къщата е с РЗП 198 м2, построена в самостоятелен парцел от 625 м2.
Къщата е със следното разпределение:
1 - ви етаж: входно антре, вътрешно стълбище към втория етаж, просторна дневна 44,23 м2 с френски прозорци и веранда от 20,54 м2. 2 еднакви спални 12.65 м2, коридор 5.32 м2 и санитарен възел баня и тоалетна 6.65 м2.
2 - ри етаж: общо пространство 73.25 м2 с възможност да се раздели на две спални плюс коридор, баня с тоалетна 3.53 м2, килер 6.08 м2 и сервизно помещение 2.38 м2.
Всички санитарни помещения и стълбище са с прозорци с естествена дневна светлина.
Всички помещения в сградата са ориентирани на ЮГ. Изградена е ВиК и ЕЛ мрежа окабелена е с ТВ кабели и кабел за ИНТЕРНЕТ. Отоплението на сградата е с ТЕРМОПОМПА, конвектори и лира в банята. Поставено е подово отопление със съответната изолация бойлер за двете бани захранвано от термопомпата.
Имотът се намира на 16 км от Катедрален храм 'Св. Успение Богородично' Варна, отлична локация, бърз и лесен достъп.
В село Приселци има начално училище, детска градина, супермаркети, лаборатория, аптека, бензиностанции, паркове, поща.
ЧАСТНО ЛИЦЕ - предоставям документи за проверка от ваш адвокат (напълно изрядни документи с партида на ток и вода).
За повече информация се обадете на тел. 08******61
ID: 143501807
Контакт с продавача
xxx xxx xxx
Добавена 24 ноември 2025 г.
Къща с. Приселци
483090.01 лв. / 247000 €
По договаряне
Потребител
Локация
с. Приселци
Област Варна