Бизнес
Цена на кв.м: 2278.48
Брой етажи на сградата: 2
Квадратура: 158 кв.м
Квадратура на двора: 750 кв.м
Година на строителство: 2024 г.
Строителство: Тухла
Отопление: Електричество
Състояние на сградата: Завършена
Особености: паркинг, санирана
Описание
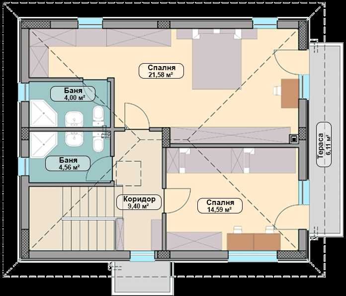
360000 евро с Акт 16, обзаведена. Реф. номер 24113663 А "Галя Консулт"продава нова двуетажна къща 158м2, земя 750м2, 2024г. Разпределение на ет.1: входно антре 6,25м2, всекидневна 33,39м2 с веранда, спалня - 12,53м2, баня с тоалет -4,46м2, килер -3,91м2, стълбище към етаж 2. Разпределение на ет.2: коридор 9,40м2, 2 спални - 21,58м2 със собствена баня и тоалетна, втора спалня 14,59м2, баня с тоалетна на етажа - 4,56м2, тераса - 6,11м. Паркомясто. Вашият мечтан и зелен дом сред природа, тишина и простор. Разположена в луксозен комплекс от 30 еднофамилни жилищни сгради, разположен в землището на с.Приселци, Община Аврен, Област Варна. Сградите са проектирани в модерен стил с интериорни и екстериорни решения, съчетали в себе си комфорта на жилищната среда в близост до природата, чистият морски въздух и уединеност. Село Приселци разполага с отлична пътна връзка до град Варна, начално и средно училище, детска градина, православен храм "Св.Дух", супермаркети, месарски магазин, сладкарница, ресторант, аптека, медицински център, пощенски клон, читалище с групи по интереси /фолклор, танци, йога и др./, условия за туризъм и спорт. Приселци е известно и със своите местни производители на плодове, зеленчуци, сирене, мляко и едни от най-вкусните череши в региона. Намира се на 15 км от центъра на град Варна /10 мин с кола/, на 6 км от к.к.Камчия и неговите невероятни плажове. Агенцията съдейства за отпускане на банков кредит при НАЙ-ДОБРИ условия за своите клиенти. За огледи и информация , моля цитирайте посоченият код на телефон : 0 8 9 9 8 9 2 8 4 6
ID: 146392187
Контакт с продавача
xxx xxx xxx
