Бизнес
Цена на кв.м: 1444.04
Брой етажи на сградата: 3
Квадратура: 277 кв.м
Квадратура на двора: 380 кв.м
Година на строителство: 2026 г.
Строителство: Тухла
Отопление: Електричество
Състояние на сградата: В строеж
Особености: паркинг, затворен комплекс
Описание
БЕЗ КОМИСИОНА ОТ КУПУВАЧА
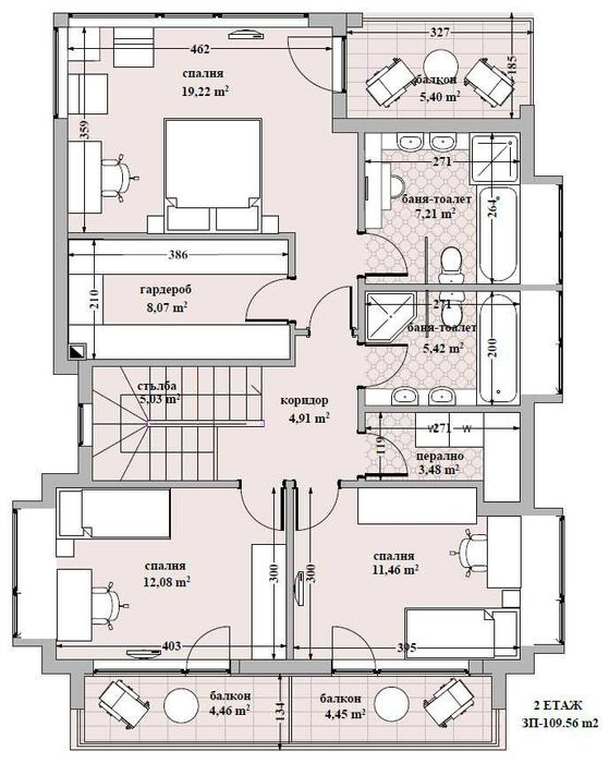
Това не е просто поредната къща, това е триетажна къща мечта с РЗП 277 м² и отделен апартамент на приземния етаж, с общо 2 големи дневни, 4 спални и два кабинета, които също могат да бъдат обособени като спални, с веранда, двор и прекрасна гледка към морето и града.
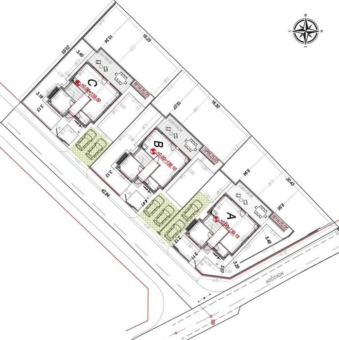
Имотът представлява комплекс от три идентични къщи с отделени с ограда дворове, всяка с по две паркоместа. Височина на таваните на втори и трети етаж - 340 см.
Интересно решение е самостоятелен етаж на първо ниво градина с отделен вход, подходящ за второ домакинство или допълнителни помещения (фитнес, домашно кино, механа и др.).
Монолитна стоманобетонна конструкция и тухлена зидария, подготовка за соларни панели, термопомпа, възможност за камина на два от етажите, подготовка за голям бойлер със серпентини за соларно захранване и термопомпа. Завършен екстериор, огради към улици и съседи, алеи и настилки. Прилежащият терен на всяка къща, с площ от 380 м² е разделен на две нива с подпорни стени, оформящи тераса – веранда на втория етаж и двор пред приземния. Потенциална възможност за отделяне на всеки дом в самостоятелен ПИ.
Разрешително за строеж от Август 2025 и откриване на строителна площадка Септември 2025.
Прикачената снимка е да даде идея каква гледка се открива от кота нула, като от последния трети етаж панорамата е още по-красива.
Това не е просто поредната къща, това е триетажна къща мечта с РЗП 277 м² и отделен апартамент на приземния етаж, с общо 2 големи дневни, 4 спални и два кабинета, които също могат да бъдат обособени като спални, с веранда, двор и прекрасна гледка към морето и града.
Имотът представлява комплекс от три идентични къщи с отделени с ограда дворове, всяка с по две паркоместа. Височина на таваните на втори и трети етаж - 340 см.
Интересно решение е самостоятелен етаж на първо ниво градина с отделен вход, подходящ за второ домакинство или допълнителни помещения (фитнес, домашно кино, механа и др.).
Монолитна стоманобетонна конструкция и тухлена зидария, подготовка за соларни панели, термопомпа, възможност за камина на два от етажите, подготовка за голям бойлер със серпентини за соларно захранване и термопомпа. Завършен екстериор, огради към улици и съседи, алеи и настилки. Прилежащият терен на всяка къща, с площ от 380 м² е разделен на две нива с подпорни стени, оформящи тераса – веранда на втория етаж и двор пред приземния. Потенциална възможност за отделяне на всеки дом в самостоятелен ПИ.
Разрешително за строеж от Август 2025 и откриване на строителна площадка Септември 2025.
Прикачената снимка е да даде идея каква гледка се открива от кота нула, като от последния трети етаж панорамата е още по-красива.
ID: 144994693
Контакт с продавача
xxx xxx xxx
Добавена 19 декември 2025 г.
Къща 277 м² с отделен апартамент, БЕЗ КОМИСИОНА
782330.04 лв. / 399999 €
Потребител
Локация
гр. Варна, м-т Зеленика
Област Варна