Частна
Описание
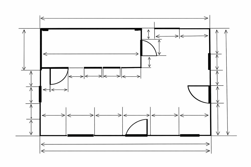
Визуално и пространствено структуриране на вашата идея/проект за ново строителство, реставрация, експозиция, концепция, реновация или възстановка, предназначено за комуникация с проектант, архитект, инвеститор и др. Възможно е и изработване на триизмерен пространствен прототип. Предпроектна визуализация и структуриране на идея
Услугата обхваща визуално и пространствено оформяне на идея за ново строителство, реновация, реконструкция или възстановка, независимо дали има съществуващ обект или само концепция.
Работя с описания, скици, референции, модели или устно зададена идея и я превръщам в ясна, визуално разбираема форма, подходяща за представяне пред архитект, проектант, инвеститор или институция.
В зависимост от нуждите, резултатът може да включва: - предпроектни чертежи и изгледи
- визуални схеми и дигитални изображения
- структурирана пространствена логика на обекта
При изрично желание и изработване на триизмерен пространствен прототип (макет),
Моята задача е вашата идея да бъде ясно формулирана и визуално оформена така че да може да използвате това което получавате като резултат за архитектурно проектиране, по-точна, ясна и удобна за вас комуникация п и п. едставянето на вашата идея, проект пред проектант, архитект, инвеститор и др, по-малко корекции и по-добър краен резултат за вас.
Услугата обхваща визуално и пространствено оформяне на идея за ново строителство, реновация, реконструкция или възстановка, независимо дали има съществуващ обект или само концепция.
Работя с описания, скици, референции, модели или устно зададена идея и я превръщам в ясна, визуално разбираема форма, подходяща за представяне пред архитект, проектант, инвеститор или институция.
В зависимост от нуждите, резултатът може да включва: - предпроектни чертежи и изгледи
- визуални схеми и дигитални изображения
- структурирана пространствена логика на обекта
При изрично желание и изработване на триизмерен пространствен прототип (макет),
Моята задача е вашата идея да бъде ясно формулирана и визуално оформена така че да може да използвате това което получавате като резултат за архитектурно проектиране, по-точна, ясна и удобна за вас комуникация п и п. едставянето на вашата идея, проект пред проектант, архитект, инвеститор и др, по-малко корекции и по-добър краен резултат за вас.
ID: 146831420
Контакт с продавача
xxx xxx xxx
Добавена 09 февруари 2026 г.
Изграждане на предпроектантски проекти
Потребител
Локация