Бизнес
Цена на кв.м: 1465.75
Тип апартамент: 2 - стаен
Квадратура: 73 кв.м
Година на строителство: 2028 г.
Строителство: Тухла
Етаж: 1-ви
Брой етажи на сградата: 4
Последен етаж
Отопление: Електричество
Обзавеждане: Необзаведен
Състояние на сградата: В строеж
Преход: Без преход
Описание
Компания „X“ представя на Вашето внимание тристаен апартамент в Беломорски.
МЕСТОПОЛОЖЕНИЕ: Беломорски е квартал на Пловдив, разположен в южната част на града. Той е един от по-новите и бързоразвиващи се жилищни райони, предлагащ комбинация от съвременна инфраструктура и удобства в близост до природата. Кварталът е добре свързан с останалата част на града чрез автобусни линии и основни пътища. В Беломорски се изграждат много нови жилищни комплекси и модерни сгради, които предлагат удобства. Жилищата в района са разнообразни, като се предлагат както апартаменти, така и къщи.
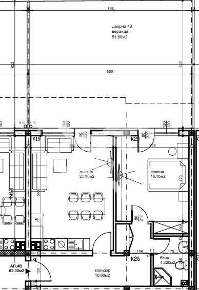
СТРОИТЕЛСТВО: Апартаментът се намира на 1-ви етаж, в четириетажна сграда ново строителство.
РАЗПРЕДЕЛЕНИЕ: Жилището разполага с площ от 73 кв.м. разпределена по следния начин: входно антре,коридор, дневна с трапезария и кухненски бокс, спалня, баня с тоалетна, склад и дворна веранда 51,60 кв.м
Заповядайте да Ви го покажем. Използвайки нашите услуги Вие ще превърнете закупуването на новия си дом в едно приятно изживяване, ще получите персонален консултант, съдействие при кандидатстване за кредит от всички банки в България, интериорни дизайнери и екип, който да се погрижи за нужните документи по Вашата сделка. На Ваше разположение сме всеки ден, от понеделник до неделя от 09:00 до 20:00ч. Възползвайте се от безплатна консултация в наш офис, където ще ви спестим време и ще ви запознаем с всички актуални имоти в България, отговарящи на Вашето търсене. Свържете се с нас на 08******90 или на 08******90 и цитирайте кода към имота: 1155-33652
МЕСТОПОЛОЖЕНИЕ: Беломорски е квартал на Пловдив, разположен в южната част на града. Той е един от по-новите и бързоразвиващи се жилищни райони, предлагащ комбинация от съвременна инфраструктура и удобства в близост до природата. Кварталът е добре свързан с останалата част на града чрез автобусни линии и основни пътища. В Беломорски се изграждат много нови жилищни комплекси и модерни сгради, които предлагат удобства. Жилищата в района са разнообразни, като се предлагат както апартаменти, така и къщи.
СТРОИТЕЛСТВО: Апартаментът се намира на 1-ви етаж, в четириетажна сграда ново строителство.
РАЗПРЕДЕЛЕНИЕ: Жилището разполага с площ от 73 кв.м. разпределена по следния начин: входно антре,коридор, дневна с трапезария и кухненски бокс, спалня, баня с тоалетна, склад и дворна веранда 51,60 кв.м
Заповядайте да Ви го покажем. Използвайки нашите услуги Вие ще превърнете закупуването на новия си дом в едно приятно изживяване, ще получите персонален консултант, съдействие при кандидатстване за кредит от всички банки в България, интериорни дизайнери и екип, който да се погрижи за нужните документи по Вашата сделка. На Ваше разположение сме всеки ден, от понеделник до неделя от 09:00 до 20:00ч. Възползвайте се от безплатна консултация в наш офис, където ще ви спестим време и ще ви запознаем с всички актуални имоти в България, отговарящи на Вашето търсене. Свържете се с нас на 08******90 или на 08******90 и цитирайте кода към имота: 1155-33652
ID: 144436749
Контакт с продавача
xxx xxx xxx
