Бизнес
Цена на кв.м: 1342.28
Брой етажи на сградата: 2
Квадратура: 149 кв.м
Квадратура на двора: 200 кв.м
Година на строителство: 2025 г.
Строителство: Тухла
Отопление: Електричество
Състояние на сградата: В строеж
Особености: канализация, затворен комплекс
Описание
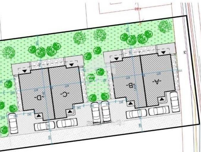
ЕРА Имоти Хасково предлага уникалната възможност да станете собственици на една от четирите нови къщи, разположени в стилен и модерен затворен комплекс в сърцето на красивия квартал ,,Младежки хълм,,. Тези изключителни двуетажни къщи, оформени две по две на калкан, предлагат идеалната комбинация от комфорт, естетика и съвременен стил.
Всяка една от къщите е с РЗП от 149 кв.м. и двор с площ от 200 кв.м.
На първия етаж ще бъдете посрещнати от входно антре, което води до просторен и светъл хол, който създава уютна атмосфера, кухненски кът, с изобилие от естествена светлина,което е перфектното място за приготвяне на вкусни блюда и споделяне на незабравими мигове, на този етаж има санитарен възел и килер.
С вътрешни стълби ще достигнете до втория етаж, където ще откриете три просторни спални, проектирани с внимание към детайла за максимален комфорт и уединение. Двете от спалните предлагат балкон с панорамни гледки към околната природа, а допълнителните два санитарни възела ще осигурят достатъчно пространство за всички членове на семейството.
Новите къщи в „Младежки хълм“ са изградени с внимание към детайла и със строги съвременни стандарти за качество на строителството. Проектът е реализиран от опитен строителен екип, съчетаващ иновации и традиционни методи, с цел осигуряване на надеждност и дълготрайност на всеки дом.
При строителството на къщите са използвани само висококачествени материали, които гарантират не само устойчивост, но и отлична енергийна ефективност. Термоизолационни системи, което осигурява оптимална температура в дома през всяко време на годината.
Къщите разполагат с модерен архитектурен дизайн, който включва просторни помещения с много естествена светлина. Голяма част от фасадите са изработени с красиви декоративни елементи, които придават елегантност и стил. Прозорците са с висококачествена PVC дограма, която предлага отлична звукоизолация и енергийна ефективност.
Дворът е проектиран така, че да осигури достатъчно пространство за паркиране на коли, което е особено удобно за семейства с повече от едно превозно средство.Пространството позволява на децата да играят на воля, докато вие можете да се насладите на спокойствието на собствения си зелен кът.
Не пропускайте възможността да притежавате Вашия мечтан дом в един от най-желаните райони на Хасково! Заповядайте на оглед и се уверете сами в качеството и красотата на тези нови къщи!
ЕРА Е РЕГИСТРИРАН КЪМ БНБ КРЕДИТЕН ПОСРЕДНИК И КАТО ТАКЪВ ОФИЦИАЛНО ПРЕДОСТАВЯ ВСИЧКИ ВИДОВЕ КРЕДИТИ КЪМ ВСИЧКИ БАНКИ.
Оферта №6800615
Всяка една от къщите е с РЗП от 149 кв.м. и двор с площ от 200 кв.м.
На първия етаж ще бъдете посрещнати от входно антре, което води до просторен и светъл хол, който създава уютна атмосфера, кухненски кът, с изобилие от естествена светлина,което е перфектното място за приготвяне на вкусни блюда и споделяне на незабравими мигове, на този етаж има санитарен възел и килер.
С вътрешни стълби ще достигнете до втория етаж, където ще откриете три просторни спални, проектирани с внимание към детайла за максимален комфорт и уединение. Двете от спалните предлагат балкон с панорамни гледки към околната природа, а допълнителните два санитарни възела ще осигурят достатъчно пространство за всички членове на семейството.
Новите къщи в „Младежки хълм“ са изградени с внимание към детайла и със строги съвременни стандарти за качество на строителството. Проектът е реализиран от опитен строителен екип, съчетаващ иновации и традиционни методи, с цел осигуряване на надеждност и дълготрайност на всеки дом.
При строителството на къщите са използвани само висококачествени материали, които гарантират не само устойчивост, но и отлична енергийна ефективност. Термоизолационни системи, което осигурява оптимална температура в дома през всяко време на годината.
Къщите разполагат с модерен архитектурен дизайн, който включва просторни помещения с много естествена светлина. Голяма част от фасадите са изработени с красиви декоративни елементи, които придават елегантност и стил. Прозорците са с висококачествена PVC дограма, която предлага отлична звукоизолация и енергийна ефективност.
Дворът е проектиран така, че да осигури достатъчно пространство за паркиране на коли, което е особено удобно за семейства с повече от едно превозно средство.Пространството позволява на децата да играят на воля, докато вие можете да се насладите на спокойствието на собствения си зелен кът.
Не пропускайте възможността да притежавате Вашия мечтан дом в един от най-желаните райони на Хасково! Заповядайте на оглед и се уверете сами в качеството и красотата на тези нови къщи!
ЕРА Е РЕГИСТРИРАН КЪМ БНБ КРЕДИТЕН ПОСРЕДНИК И КАТО ТАКЪВ ОФИЦИАЛНО ПРЕДОСТАВЯ ВСИЧКИ ВИДОВЕ КРЕДИТИ КЪМ ВСИЧКИ БАНКИ.
Оферта №6800615
ID: 144295680
Контакт с продавача
xxx xxx xxx

