Бизнес
Цена на кв.м: 1268.12
Тип апартамент: 3 - стаен
Квадратура: 138 кв.м
Година на строителство: 2001 г.
Строителство: Тухла
Етаж: Партер
Брой етажи на сградата: 8
Последен етаж
Отопление: Газ
Обзавеждане: Полуобзаведен
Състояние на сградата: Завършена
Преход: Без преход
Особености: паркинг, саниран, видеонаблюдение
Описание
- 5000 евро отстъпка от посочената цена при сделка или сключване на предварителен договор за продажба с капаро до края на 2025г. или подарък 20м2 магазин на морето. Предложението е валидно САМО до края на 2025г.
От собственик. БЕЗ посредник, агенции, комисионни или тежести.
Снимките отразяват реалното състояние на имота който се продава с наличното обзавеждане . Възможна е замяна за самостоятелна къща , за две по-малки жилища с ПОДОБНА обща квадратура и степен на завършеност като продавания имот или едно с по-малка квадратура + доплащане. Моля без нелепи предложения за замяна.
Огледи се правят само след предварителна лична среща. Прехвърляне при нотариус по избор или чрез брокер на купувача. Налични видеоклипове с подробности за имота за допълнителна предварителна информация.
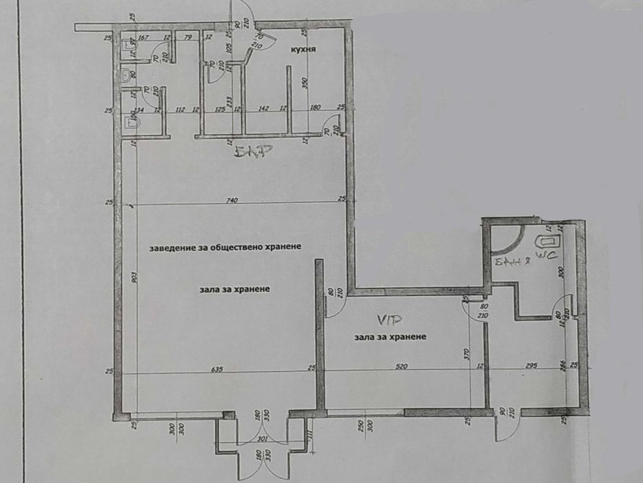
Продавам напълно реновирано просторно, слънчево, южно тристайно жилище с възможност за разделяне и обособяване на още 3 стаи в паркова зона с обща площ от 138 кв. м изцяло на партер /без сутерен/ с прозорци към градина и изградена тента за летните дни в отлично състояние. Имотът е след основен ремонт в който никога не е пушено или готвено и представлява следното:
Вход през остъклено преддверие 3 кв.м с двойни врати откъм градина към стилна дневна/хол от около 60 кв.м, който може да бъде разделен и изградени при нужда още поне 2 стаи с изграден бар плот с двойна мивка. От дневната има подход към малък склад с две тоалетни от около 10 кв.м както и друг вход към просторна кухня от 17 кв.м със самостоятелен вход/изход навън към паркинг. Трети подход от залата води до голяма напълно обзаведена спалня от 20 кв.м а от нея към втора спалня с още един санитарен възел и баня с душ кабина с обща площ около 20 кв.м.
Всяко от трите помещения дневна, спалня 1 и спалня 2 имат самостоятелни входове откъм градината, а кухнята независим вход откъм паркинга на кооперацията. Всички помещения са шумоизолирани с 5 снтиметрова изолация и осигуряват тишина и спокойствие.
В имота има изградена ГАЗОВА инсталация, ВЕНТИЛАЦИЯ и КЛИМАТИЗАЦИЯ, чиито системи са вградени в окачения таван както и окабеляването за интернет и охранителната система.
КУХНЯТА има 8 мивки, климатик, бойлер, изводи за газ, хладилници и мощна АСПИРАЦИЯ изведена над сградата.
БАРЪТ има ефектно осветление и дизайн, двойна мивка, нов хладилник LG и ледогенератор BREMA.
ОЗВУЧИТЕЛНАТА система е вградена в тавана на залата с наличен ресиивър YAMAHA.
ОСВЕТЛЕНИЕТО в залата е на четири нива: лед лампи+скрито RGB лед осветление + ефектно осветление на централната колона и бара.
ОТОПЛЕНИЕТО е на газ и ток чрез 3 броя газови климатика ITALKERO в двете зали, газово котле IMMERGAS с радиатори в тоалет и кухня и климатик на ток TRANE за топло и студено с вградена в тавана КЛИМАТИЗАЦИЯ и ВЕНТИЛАЦИЯ.
ТОПЛАТА ВОДА за кухня, бар и тоалет се осигурява от бойлер в кухнята и от газовото котле.
ВСИЧКИ ИЗБРОЕНИ ТЕХНИЧЕСКИ СЪОРЪЖЕНИЯ И ВЪЗЛИ СА РАБОТЕЩИ.
Имотът има 14 метра лице с големи прозорци към слънчева озеленена част с плочник и изградена масивна тента за лятото. Има общо три входа + един откъм кухнята. Жилището има актуални партиди за ток /ТРИФАЗЕН/и вода в отлично състояние е и е с общо 3 тоалетни и една баня.
СМЯНАТА на предназначението се прави от и за сметка на продавача !
Може и без промяна да се използва като комфортно шумоизолирано ЖИЛИЩЕ с изглед към и на крачка от паркова зона без досадни съседи.
Задължителен предварителен договор с капаро преди изготвяне на документите за сделката. Нотариално прехвърляне на реалната продажна цена . Моля хора без реална финансова възможност да не ме безпокоят. Възможност за изпращане на допълнителна информация, снимки, видеа и всякакви документи през личен мейл за сверки и всякакви проверки.
От собственик. БЕЗ посредник, агенции, комисионни или тежести.
Снимките отразяват реалното състояние на имота който се продава с наличното обзавеждане . Възможна е замяна за самостоятелна къща , за две по-малки жилища с ПОДОБНА обща квадратура и степен на завършеност като продавания имот или едно с по-малка квадратура + доплащане. Моля без нелепи предложения за замяна.
Огледи се правят само след предварителна лична среща. Прехвърляне при нотариус по избор или чрез брокер на купувача. Налични видеоклипове с подробности за имота за допълнителна предварителна информация.
Продавам напълно реновирано просторно, слънчево, южно тристайно жилище с възможност за разделяне и обособяване на още 3 стаи в паркова зона с обща площ от 138 кв. м изцяло на партер /без сутерен/ с прозорци към градина и изградена тента за летните дни в отлично състояние. Имотът е след основен ремонт в който никога не е пушено или готвено и представлява следното:
Вход през остъклено преддверие 3 кв.м с двойни врати откъм градина към стилна дневна/хол от около 60 кв.м, който може да бъде разделен и изградени при нужда още поне 2 стаи с изграден бар плот с двойна мивка. От дневната има подход към малък склад с две тоалетни от около 10 кв.м както и друг вход към просторна кухня от 17 кв.м със самостоятелен вход/изход навън към паркинг. Трети подход от залата води до голяма напълно обзаведена спалня от 20 кв.м а от нея към втора спалня с още един санитарен възел и баня с душ кабина с обща площ около 20 кв.м.
Всяко от трите помещения дневна, спалня 1 и спалня 2 имат самостоятелни входове откъм градината, а кухнята независим вход откъм паркинга на кооперацията. Всички помещения са шумоизолирани с 5 снтиметрова изолация и осигуряват тишина и спокойствие.
В имота има изградена ГАЗОВА инсталация, ВЕНТИЛАЦИЯ и КЛИМАТИЗАЦИЯ, чиито системи са вградени в окачения таван както и окабеляването за интернет и охранителната система.
КУХНЯТА има 8 мивки, климатик, бойлер, изводи за газ, хладилници и мощна АСПИРАЦИЯ изведена над сградата.
БАРЪТ има ефектно осветление и дизайн, двойна мивка, нов хладилник LG и ледогенератор BREMA.
ОЗВУЧИТЕЛНАТА система е вградена в тавана на залата с наличен ресиивър YAMAHA.
ОСВЕТЛЕНИЕТО в залата е на четири нива: лед лампи+скрито RGB лед осветление + ефектно осветление на централната колона и бара.
ОТОПЛЕНИЕТО е на газ и ток чрез 3 броя газови климатика ITALKERO в двете зали, газово котле IMMERGAS с радиатори в тоалет и кухня и климатик на ток TRANE за топло и студено с вградена в тавана КЛИМАТИЗАЦИЯ и ВЕНТИЛАЦИЯ.
ТОПЛАТА ВОДА за кухня, бар и тоалет се осигурява от бойлер в кухнята и от газовото котле.
ВСИЧКИ ИЗБРОЕНИ ТЕХНИЧЕСКИ СЪОРЪЖЕНИЯ И ВЪЗЛИ СА РАБОТЕЩИ.
Имотът има 14 метра лице с големи прозорци към слънчева озеленена част с плочник и изградена масивна тента за лятото. Има общо три входа + един откъм кухнята. Жилището има актуални партиди за ток /ТРИФАЗЕН/и вода в отлично състояние е и е с общо 3 тоалетни и една баня.
СМЯНАТА на предназначението се прави от и за сметка на продавача !
Може и без промяна да се използва като комфортно шумоизолирано ЖИЛИЩЕ с изглед към и на крачка от паркова зона без досадни съседи.
Задължителен предварителен договор с капаро преди изготвяне на документите за сделката. Нотариално прехвърляне на реалната продажна цена . Моля хора без реална финансова възможност да не ме безпокоят. Възможност за изпращане на допълнителна информация, снимки, видеа и всякакви документи през личен мейл за сверки и всякакви проверки.
ID: 120238265
Контакт с продавача
xxx xxx xxx
Добавена 16 декември 2025 г.
Голям 3 стаен в Русе 138м2+20м2 магазин на морето подарък БЕЗ АГЕНЦИИ
342270.25 лв. / 175000 €
Локация
гр. Русе, Мидия Енос
Област Русе