Бизнес
Цена на кв.м: 1089.09
Квадратура: 55 кв.м
Вода: Без вода
Ток: С ток
Описание
ДИРЕКТНО ОТ СОБСТВЕНИК!
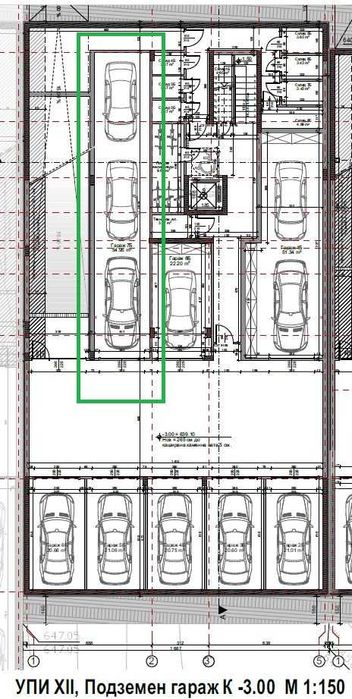
Предлагам за продажба просторен троен гараж- за три автомобила, разположен в новопостроената жилищна сграда „Грийн Парк“ в кв. Младост 4, която ще бъде въведена в експлоатация 2026 г. Гаражът е на сутерена на сградата, кота -3,00 /минус три /, със застроена площ от 54,95 кв.м.
Разполагаме допълнително с тристайни апартаменти в същия вход, които може да се комбинират с гаража, но обявената цена е само за гаража.
Локацията на сградата е срещу Бизнес парк София, в непосредствена близост до Околовръстен път и бул. „Александър Малинов“.
„Грийн парк“ е съвременна жилищна сграда, създадена с внимание към детайла, комфорта и качеството на живот. Състои се от партерно ниво с ателиета и гаражи, както и девет жилищни етажа. Проектът е на утвърдена строително-инвестиционна компания с дългогодишен опит и безупречна репутация. Всеки етап от строителството се изпълнява с прецизност, професионализъм и спазване на всички европейски стандарти за безопасност и качество.
ПРОДАВА СЕ БЕЗ ПОСРЕДНИК, ОТ СОБСТВЕНИК- УЧРЕДИТЕЛ/ВЪЗЛОЖИТЕЛ/ НА ОБЕКТА.
Предпочитано време за контакт: 17:00 – 21:00 ч.
Предлагам за продажба просторен троен гараж- за три автомобила, разположен в новопостроената жилищна сграда „Грийн Парк“ в кв. Младост 4, която ще бъде въведена в експлоатация 2026 г. Гаражът е на сутерена на сградата, кота -3,00 /минус три /, със застроена площ от 54,95 кв.м.
Разполагаме допълнително с тристайни апартаменти в същия вход, които може да се комбинират с гаража, но обявената цена е само за гаража.
Локацията на сградата е срещу Бизнес парк София, в непосредствена близост до Околовръстен път и бул. „Александър Малинов“.
„Грийн парк“ е съвременна жилищна сграда, създадена с внимание към детайла, комфорта и качеството на живот. Състои се от партерно ниво с ателиета и гаражи, както и девет жилищни етажа. Проектът е на утвърдена строително-инвестиционна компания с дългогодишен опит и безупречна репутация. Всеки етап от строителството се изпълнява с прецизност, професионализъм и спазване на всички европейски стандарти за безопасност и качество.
ПРОДАВА СЕ БЕЗ ПОСРЕДНИК, ОТ СОБСТВЕНИК- УЧРЕДИТЕЛ/ВЪЗЛОЖИТЕЛ/ НА ОБЕКТА.
Предпочитано време за контакт: 17:00 – 21:00 ч.
ID: 145657300
Контакт с продавача
xxx xxx xxx
Добавена 07 октомври 2025 г.
ГАРАЖ в "Грийн парк" Мл4 от СОБСТВЕНИК
59900 €
Потребител
Локация
гр. София, Младост 4
Област София-град