Бизнес
Цена на кв.м: 2509.15
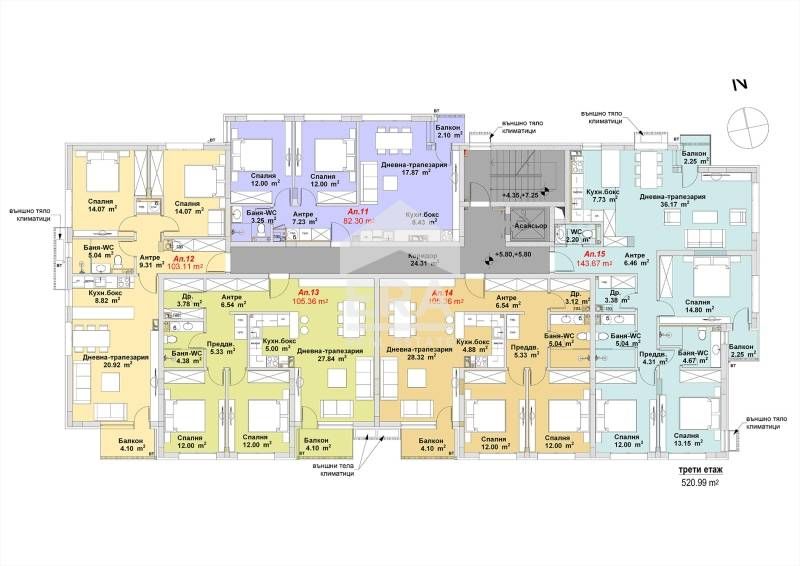
Тип апартамент: 3 - стаен
Квадратура: 82 кв.м
Година на строителство: 2025 г.
Строителство: Тухла
Етаж: 3-ти
Брой етажи на сградата: 4
Отопление: Газ
Обзавеждане: Необзаведен
Състояние на сградата: В строеж
Преход: Без преход
Особености: асансьор
Описание
Ера Тера продава апартамент 82.30 кв.м на трети етаж в новострояща се жилищна сграда, която се намира в престижния квартал „Бояна” местност „Гърдова Глава”. Имотът се състои от дневна с трапезария и кухненски бокс, две спални, баня с тоалетна. Районът е богато озеленен с естествена среда, разположен в полите на Витоша, до главни пътни артерии. Комуникацията с града се извършва лесно и удобно.
Апартамента е идеален както за живеене, така и за отдаване под наем.
Общите части на сградата, ще бъдат луксозно изпълнени и оборудвани с гранит, дървена ламперия и луксозен хидравличен асансьор. Апартаментите са проектирани по европейски стандарти, което определя един по-добър жилищен обем и предоставя усещането за много простор и слънчева светлина.
Сградата ще бъде построена и завършена, съгласно най-високите стандарти:
* фасадно лед осветление и декоративно градинско осветление, което да очертае парцела и зелените площи;
* система за контрол на достъпа към сградата и подземния гараж;
* система за видеонаблюдение което обхваща периметъра около сградата;
* видеодомофонна система с контрол на достъп с карта или чипове;
* СОТ система за всеки апартамент;
* електронни водомери при които цялата информация ще се сканира от входа на сградата;
* изводи за климатици и изводи за поставяне на лири;
* блиндирани врати.
ЕРА предлага консултация с архитект-интериорен дизайнер за изготвяне на цялостен проект за довършване и обзавеждане на имота.
ЕРА е независим кредитен посредник с лиценз от БНБ с номер BCI000024 и предоставя безплатна консултация и съдействие при финансиране на избран от Вас имот.
Оферта №1104288
Апартамента е идеален както за живеене, така и за отдаване под наем.
Общите части на сградата, ще бъдат луксозно изпълнени и оборудвани с гранит, дървена ламперия и луксозен хидравличен асансьор. Апартаментите са проектирани по европейски стандарти, което определя един по-добър жилищен обем и предоставя усещането за много простор и слънчева светлина.
Сградата ще бъде построена и завършена, съгласно най-високите стандарти:
* фасадно лед осветление и декоративно градинско осветление, което да очертае парцела и зелените площи;
* система за контрол на достъпа към сградата и подземния гараж;
* система за видеонаблюдение което обхваща периметъра около сградата;
* видеодомофонна система с контрол на достъп с карта или чипове;
* СОТ система за всеки апартамент;
* електронни водомери при които цялата информация ще се сканира от входа на сградата;
* изводи за климатици и изводи за поставяне на лири;
* блиндирани врати.
ЕРА предлага консултация с архитект-интериорен дизайнер за изготвяне на цялостен проект за довършване и обзавеждане на имота.
ЕРА е независим кредитен посредник с лиценз от БНБ с номер BCI000024 и предоставя безплатна консултация и съдействие при финансиране на избран от Вас имот.
Оферта №1104288
ID: 146402581
Контакт с продавача
xxx xxx xxx
Добавена 11 декември 2025 г.
Ера Тера продава тристаен апартамент № 11 в м. Гърдова глава.
402412.02 лв. / 205750 €
Потребител
Локация
гр. София, м-т Гърдова глава
Област София-град