Бизнес
Цена на кв.м: 2203.34
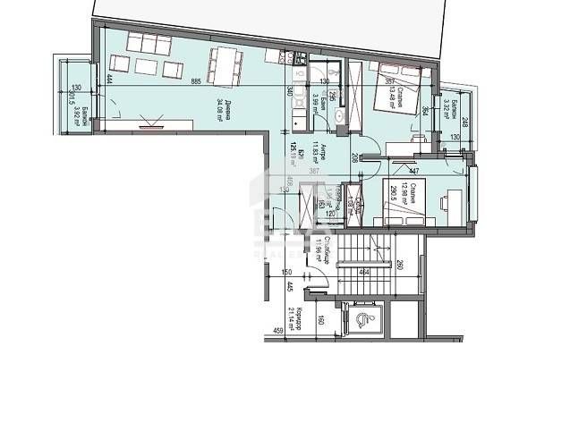
Тип апартамент: 3 - стаен
Квадратура: 125 кв.м
Година на строителство: 2024 г.
Строителство: Тухла
Етаж: 5-ти
Брой етажи на сградата: 9
Последен етаж
Отопление: ТЕЦ
Обзавеждане: Необзаведен
Състояние на сградата: В строеж
Преход: С преход
Описание
Ера Тера продава тристаен апартамент - Б20 с площ 125,19 кв.м., намиращ се на пети жилищен етаж, състоящ се от: дневна, две спални, баня с тоалетна, отделна тоалетна, коридор, склад и два балкона. Имотът се намира в новострояща се сграда в кв. "Сухата река" в близост до ул. "Черковна". Централното, но същевременно тихо и спокойно местоположение, е основен приоритет за живущите в този район на столицата. Сградата е в близост до: метростанция „Хаджи Димитър” (3мин.), църквата на ул. "Черковна", метростанция „Театрална” (10мин.), училище „143 ОУ” (5мин), детски градини „Дъга” и „Слънце” (5мин.), парк-градина (1 мин.), парк „Заимов” , магазини BILLA на "Черковна" и на "Владимир Вазов" (3 мин.). Районът е с добре изградена инфраструктура. Апартаментите в сградата са идеални както за живеене, така и за отдаване под наем.
Заложени са най-модерните технологии и съвременни материали, за да се създаде висок стандарт, уют и спокойствие на живущите. Апартаментите са проектирани по европейски стандарти, с добър жилищен обем и усещане за простор и светлина.
Ограждащите и преградни стени са тухлени, заложени са висококачествените тухли Wienerberger, фасадните стени са от полимерна мазилка и естествен камък.
Сградата е топлоизолирана с 10 см EPS изолация. Покривите са топлоизолирани с XPS изолация 10 см. и двойно хидроизолирани. Всички тераси също ще са хидроизолирани.
Общите части на сградата ще бъдат луксозно изпълнени и оборудвани с гранит, дървена ламперия и луксозен хидравличен асансьор. Прозорците ще бъдат оборудвани с шесткамерна дограма с трислоен стъклопакет и К стъкло,шумо- и топлоизолация
Предвидени са фасадно Лед осветление и декоративно градинско осветление, система за контрол на достъпа към сградата и към подземния гараж; система за видеонаблюдение, видеодомофонна система с контрол на достъп с карта или чипове; СОТ система за всеки апартамент; електронни водомери, при които цялата информация ще се сканира от входа на сградата; изводи за електрически щори за всеки прозорец в жилищната част; изводи за климатици във всяка стая; изводи за радиатори за ТЕЦ; подово отопление в баните и изводи за поставяне на лири; блиндирани врати.
Предлагат се и други имоти в жилищната сграда, която включва 15 апартамента във вх.”А” и 34 апартамента във вх. „Б”, магазин и общ подземен паркинг.
Цената е без промяна до влизане в експлоатация!
ЕРА предлага консултация с архитект-интериорен дизайнер за изготвяне на цялостен проект за довършване и обзавеждане на имота.
ЕРА е независим кредитен посредник с лиценз от БНБ с номер BCI000024 и предоставя безплатна консултация и съдействие при финансиране на избран от Вас имот.
Оферта №1101634
Заложени са най-модерните технологии и съвременни материали, за да се създаде висок стандарт, уют и спокойствие на живущите. Апартаментите са проектирани по европейски стандарти, с добър жилищен обем и усещане за простор и светлина.
Ограждащите и преградни стени са тухлени, заложени са висококачествените тухли Wienerberger, фасадните стени са от полимерна мазилка и естествен камък.
Сградата е топлоизолирана с 10 см EPS изолация. Покривите са топлоизолирани с XPS изолация 10 см. и двойно хидроизолирани. Всички тераси също ще са хидроизолирани.
Общите части на сградата ще бъдат луксозно изпълнени и оборудвани с гранит, дървена ламперия и луксозен хидравличен асансьор. Прозорците ще бъдат оборудвани с шесткамерна дограма с трислоен стъклопакет и К стъкло,шумо- и топлоизолация
Предвидени са фасадно Лед осветление и декоративно градинско осветление, система за контрол на достъпа към сградата и към подземния гараж; система за видеонаблюдение, видеодомофонна система с контрол на достъп с карта или чипове; СОТ система за всеки апартамент; електронни водомери, при които цялата информация ще се сканира от входа на сградата; изводи за електрически щори за всеки прозорец в жилищната част; изводи за климатици във всяка стая; изводи за радиатори за ТЕЦ; подово отопление в баните и изводи за поставяне на лири; блиндирани врати.
Предлагат се и други имоти в жилищната сграда, която включва 15 апартамента във вх.”А” и 34 апартамента във вх. „Б”, магазин и общ подземен паркинг.
Цената е без промяна до влизане в експлоатация!
ЕРА предлага консултация с архитект-интериорен дизайнер за изготвяне на цялостен проект за довършване и обзавеждане на имота.
ЕРА е независим кредитен посредник с лиценз от БНБ с номер BCI000024 и предоставя безплатна консултация и съдействие при финансиране на избран от Вас имот.
Оферта №1101634
ID: 141312259
Контакт с продавача
xxx xxx xxx
Добавена 02 октомври 2025 г.
ЕРА ТЕРА продава нов тристаен апартамент в кв. "Сухата река", София
275418 €
Потребител
Локация
гр. София, Сухата река
Област София-град