Бизнес
Цена на кв.м: 2511.71
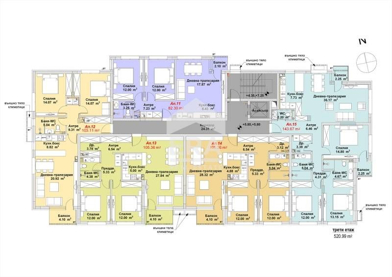
Тип апартамент: 4 - стаен
Квадратура: 143 кв.м
Година на строителство: 2025 г.
Строителство: Тухла
Етаж: 3-ти
Брой етажи на сградата: 4
Отопление: Газ
Обзавеждане: Необзаведен
Състояние на сградата: В строеж
Преход: Без преход
Особености: асансьор
Описание
Ера Тера продава четиристаен апартамент с площ 143.67 кв.м., намиращ се на трети жилищен етаж, състоящ се от: дневна- кухненски бокс и трапезария, три спални, две бани с тоалетна, антре и два балкона. Апартамент в новострояща се жилищна сграда, която се намира в престижния квартал Бояна, местност Гърдова Глава.
Районът е богато озеленен с естествена среда, разположен в полите на Витоша, до главни пътни артерии. Комуникацията с града се извършва лесно и удобно.
Апартамента е идеален както за живеене, така и за отдаване под наем.
Общите части на сградата, ще бъдат луксозно изпълнени и оборудвани с гранит, дървена ламперия и луксозен хидравличен асансьор. Апартаментите са проектирани по европейски стандарти, което определя един по-добър жилищен обем и предоставя усещането за много простор и слънчева светлина.
Сградата ще бъде построена и завършена, съгласно най-високите стандарти:
* фасадно лед осветление и декоративно градинско осветление, което да очертае парцела и зелените площи;
* система за контрол на достъпа към сградата и подземния гараж;
* система за видеонаблюдение което обхваща периметъра около сградата;
* видеодомофонна система с контрол на достъп с карта или чипове;
* СОТ система за всеки апартамент;
* електронни водомери при които цялата информация ще се сканира от входа на сградата;
* изводи за климатици и изводи за поставяне на лири;
* блиндирани врати.
ЕРА предлага консултация с архитект-интериорен дизайнер за изготвяне на цялостен проект за довършване и обзавеждане на имота.
ЕРА е независим кредитен посредник с лиценз от БНБ с номер BCI000024 и предоставя безплатна консултация и съдействие при финансиране на избран от Вас имот.
Оферта №1104587
Районът е богато озеленен с естествена среда, разположен в полите на Витоша, до главни пътни артерии. Комуникацията с града се извършва лесно и удобно.
Апартамента е идеален както за живеене, така и за отдаване под наем.
Общите части на сградата, ще бъдат луксозно изпълнени и оборудвани с гранит, дървена ламперия и луксозен хидравличен асансьор. Апартаментите са проектирани по европейски стандарти, което определя един по-добър жилищен обем и предоставя усещането за много простор и слънчева светлина.
Сградата ще бъде построена и завършена, съгласно най-високите стандарти:
* фасадно лед осветление и декоративно градинско осветление, което да очертае парцела и зелените площи;
* система за контрол на достъпа към сградата и подземния гараж;
* система за видеонаблюдение което обхваща периметъра около сградата;
* видеодомофонна система с контрол на достъп с карта или чипове;
* СОТ система за всеки апартамент;
* електронни водомери при които цялата информация ще се сканира от входа на сградата;
* изводи за климатици и изводи за поставяне на лири;
* блиндирани врати.
ЕРА предлага консултация с архитект-интериорен дизайнер за изготвяне на цялостен проект за довършване и обзавеждане на имота.
ЕРА е независим кредитен посредник с лиценз от БНБ с номер BCI000024 и предоставя безплатна консултация и съдействие при финансиране на избран от Вас имот.
Оферта №1104587
ID: 146391727
Контакт с продавача
xxx xxx xxx
Добавена 10 декември 2025 г.
Ера Тера продава нов четиристаен апартамент № 15 в м. Гърдова глава.
702485.24 лв. / 359175 €
Потребител
Локация
гр. София, м-т Гърдова глава
Област София-град