Бизнес
Цена на кв.м: 2611.46
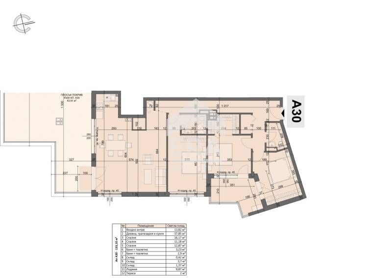
Тип апартамент: 4 - стаен
Квадратура: 157 кв.м
Година на строителство: 2025 г.
Строителство: Тухла
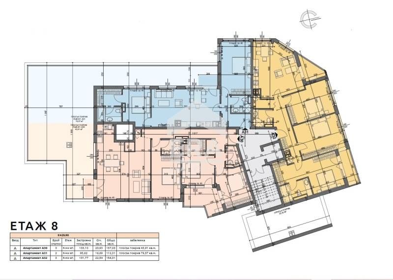
Етаж: 8-ми
Брой етажи на сградата: 9
Отопление: Без отопление
Обзавеждане: Необзаведен
Състояние на сградата: В строеж
Преход: Без преход
Особености: асансьор
Описание
ЕРА Фаворит предлага за продажба луксозен многостаен апартамент с покривна тераса. Имотът има следното функционално разпределение: входно антре и коридор, просторна дневна с кухненски бокс и трапезария, с излаз на южен балкон и окривна тераса с площ от 44 кв.м., родителска спалня с отделен санитарен възел, втора спалня с гардеробна, трета спалня с излаз на общ южен балкон с втората спалня. До спалните се намира втори санитарен възел - баня с тоалетна за гости. Изложението на помещенията е Изток/Юг.
Сградата представлява модерен архитектурен проект, който се състои от два входа на девет етажа. Фасадата ще бъде изградена по съвременна качествена технология, изпълнена по прецизен начин. Топлоизолацията е с дебелина 12 см., ще бъдат монтирани безшумни асансьори, а отоплението е предвидено да бъде на климатици със сплит система, като ще има монтирано тяло във всяка стая. Сградата е на акт 14, което дава възможност в покупката да се включат потенциални купувачи с банков кредит. Цените няма да бъдат актуализирани от подписването на предварителен договор до получаването на разрешение за ползване - акт 16.
Допълнително могат да бъдат закупени подземни паркоместа на цена 25000 Евро и гаражи на 45000 Евро.
Удостоверение за завършен груб строеж предстои да бъде издадено до края на 02.2026 г.
Акт 15 - до края на м. Ноември 2026 г.
Акт 16 - в първите месеци на 2027 г.
Местоположението на сградата е изключително привлекателно! На пет минути от метростанция, на пешеходно разстояние от идеален център, елитни училища, театри и магазини! Редовен наземен градски транспорт в района!
С просторните си помещения и модерна визия имотът е подходящ за млади двойки, семейство с детенце, както и да бъде закупен с инвестиционна цел - за отдаване под наем. Инвестиция с бъдеще!
Агенция ЕРА Фаворит е член на НСНИ и администратор на лични данни.
Преди огледа се провежда среща в нашия офис, за да се запознаем с изискванията Ви и за да оформим документи съгласно ЗЗД и ЗМИП.
По време на огледа се подписва Протокол за оглед. За този имот се дължи комисиона към агенцията.
Предлагаме Ви юридическо съдействие през целия процес на покупката.
Предлагаме безплатна индивидуална консултация с кредитен консултант от CREDITERA - регистриран финансов брокер към БНБ. Конкурентни условия!
Всеки ЕРА офис е с независимо управление и собственост!
Оферта №7200318
Сградата представлява модерен архитектурен проект, който се състои от два входа на девет етажа. Фасадата ще бъде изградена по съвременна качествена технология, изпълнена по прецизен начин. Топлоизолацията е с дебелина 12 см., ще бъдат монтирани безшумни асансьори, а отоплението е предвидено да бъде на климатици със сплит система, като ще има монтирано тяло във всяка стая. Сградата е на акт 14, което дава възможност в покупката да се включат потенциални купувачи с банков кредит. Цените няма да бъдат актуализирани от подписването на предварителен договор до получаването на разрешение за ползване - акт 16.
Допълнително могат да бъдат закупени подземни паркоместа на цена 25000 Евро и гаражи на 45000 Евро.
Удостоверение за завършен груб строеж предстои да бъде издадено до края на 02.2026 г.
Акт 15 - до края на м. Ноември 2026 г.
Акт 16 - в първите месеци на 2027 г.
Местоположението на сградата е изключително привлекателно! На пет минути от метростанция, на пешеходно разстояние от идеален център, елитни училища, театри и магазини! Редовен наземен градски транспорт в района!
С просторните си помещения и модерна визия имотът е подходящ за млади двойки, семейство с детенце, както и да бъде закупен с инвестиционна цел - за отдаване под наем. Инвестиция с бъдеще!
Агенция ЕРА Фаворит е член на НСНИ и администратор на лични данни.
Преди огледа се провежда среща в нашия офис, за да се запознаем с изискванията Ви и за да оформим документи съгласно ЗЗД и ЗМИП.
По време на огледа се подписва Протокол за оглед. За този имот се дължи комисиона към агенцията.
Предлагаме Ви юридическо съдействие през целия процес на покупката.
Предлагаме безплатна индивидуална консултация с кредитен консултант от CREDITERA - регистриран финансов брокер към БНБ. Конкурентни условия!
Всеки ЕРА офис е с независимо управление и собственост!
Оферта №7200318
ID: 147341583
Контакт с продавача
xxx xxx xxx
