Бизнес
Цена на кв.м: 1927.71
Тип апартамент: 2 - стаен
Квадратура: 83 кв.м
Година на строителство: 2025 г.
Строителство: Тухла
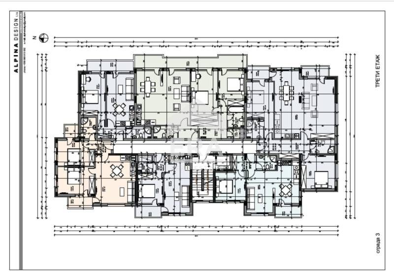
Етаж: 3-ти
Брой етажи на сградата: 4
Отопление: Газ
Обзавеждане: Необзаведен
Състояние на сградата: В строеж
Преход: Без преход
Особености: асансьор, гараж, затворен комплекс
Описание
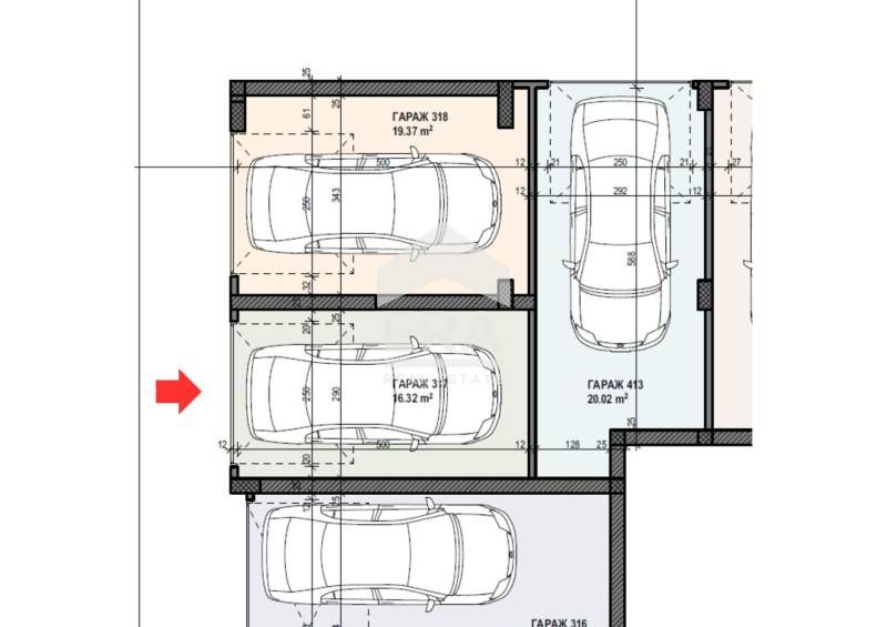
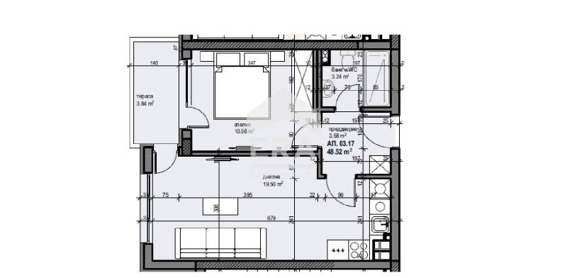
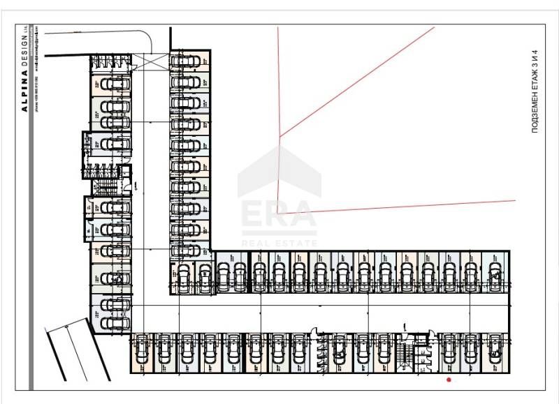
ЕРА Фаворит предлага за продажба просторно двустайно жилище в новострояща се сграда в луксозен затворен комплекс, недалеч от центъра на гр. Банкя. Разпределението включва входно антре, дневна с кухненски бокс и трапезария, спалня, баня с тоалетна, балкон които са разположени на трети жилищен етаж. Към имота има и подземен гараж 317, който е включен в крайната цена. Площ на апартамента - 49/ 54 кв.м., площ на гаража 20/37.20 кв.м., обща площ на апартамента с гаража - 83 кв.м. площ. Изложение Запад.
Имотът е част от нов затворен комплекс с най-високо качество на строителство и използвани материали. Отоплението ще бъде на газ. Сградата е с висока енергийна ефективност и последно поколение изолация срещу акустичен и ударен шум. На прозорците ще бъде монтирана немска шест-камерна PVC дограма REHAU/Thyssen. В сградата ще бъдат монтирани и безшумни асансьори KONE. Акцент е и подобрената топлоизолация на покрива.
Етап на строителство - начален, излята фундаментна плоча. Акт 16 се очаква в края на 2027 г. Такса поддръжка за комплекса - 1 Евро без ДДС/ кв.м.
Местоположението на комплекса е на изключително тиха локация с прекрасна гледка към Витоша и Люлин планина, в близост до множество частни имоти, две училища, частна и държавна детска градина, магазини и търговски обекти. Редовен градски транспорт в района и връзка с метростанция Сливница.
Ако искате да живеете сред природата, в спокойна и комфортна среда, заповядайте на презентация при нас! Комплексът е свободен от автомобили и предлага всички удобства на курортния град Банкя.
Агенция ЕРА Фаворит е член на НСНИ и администратор на лични данни.
Преди огледа се провежда среща в нашия офис, за да се запознаем с изискванията Ви и за да оформим документи съгласно ЗЗД и ЗМИП.
По време на огледа се подписва Протокол за оглед. За този имот се дължи комисион към агенцията.
Предлагаме Ви юридическо съдействие през целия процес на покупката.
Агенцията съдейства за безплатна кредитна консултация от CREDITERA - лицензиран финансов брокер към БНБ!
Всеки ERA офис е с независимо управление и собственост!
НАШАТА МРЕЖА ИМА ВЕЧЕ ПОВЕЧЕ ОТ 45 ОФИСА! НИЕ СМЕ НАД 400 ОПИТНИ КОНСУЛТАНТА В ЦЯЛА БЪЛГАРИЯ! СТАНИ ЕДИН ОТ НАС!
Оферта №7200131
Имотът е част от нов затворен комплекс с най-високо качество на строителство и използвани материали. Отоплението ще бъде на газ. Сградата е с висока енергийна ефективност и последно поколение изолация срещу акустичен и ударен шум. На прозорците ще бъде монтирана немска шест-камерна PVC дограма REHAU/Thyssen. В сградата ще бъдат монтирани и безшумни асансьори KONE. Акцент е и подобрената топлоизолация на покрива.
Етап на строителство - начален, излята фундаментна плоча. Акт 16 се очаква в края на 2027 г. Такса поддръжка за комплекса - 1 Евро без ДДС/ кв.м.
Местоположението на комплекса е на изключително тиха локация с прекрасна гледка към Витоша и Люлин планина, в близост до множество частни имоти, две училища, частна и държавна детска градина, магазини и търговски обекти. Редовен градски транспорт в района и връзка с метростанция Сливница.
Ако искате да живеете сред природата, в спокойна и комфортна среда, заповядайте на презентация при нас! Комплексът е свободен от автомобили и предлага всички удобства на курортния град Банкя.
Агенция ЕРА Фаворит е член на НСНИ и администратор на лични данни.
Преди огледа се провежда среща в нашия офис, за да се запознаем с изискванията Ви и за да оформим документи съгласно ЗЗД и ЗМИП.
По време на огледа се подписва Протокол за оглед. За този имот се дължи комисион към агенцията.
Предлагаме Ви юридическо съдействие през целия процес на покупката.
Агенцията съдейства за безплатна кредитна консултация от CREDITERA - лицензиран финансов брокер към БНБ!
Всеки ERA офис е с независимо управление и собственост!
НАШАТА МРЕЖА ИМА ВЕЧЕ ПОВЕЧЕ ОТ 45 ОФИСА! НИЕ СМЕ НАД 400 ОПИТНИ КОНСУЛТАНТА В ЦЯЛА БЪЛГАРИЯ! СТАНИ ЕДИН ОТ НАС!
Оферта №7200131
ID: 144210585
Контакт с продавача
xxx xxx xxx
Добавена 14 октомври 2025 г.
ЕРА Фаворит продава чудесен двустаен апартамент в Банкя
160000 €
Потребител
Локация
гр. Банкя
Област София-град