Бизнес
Цена на кв.м: 2532.47
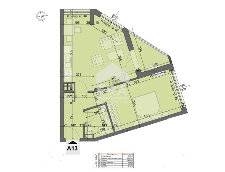
Тип апартамент: 2 - стаен
Квадратура: 77 кв.м
Година на строителство: 2025 г.
Строителство: Тухла
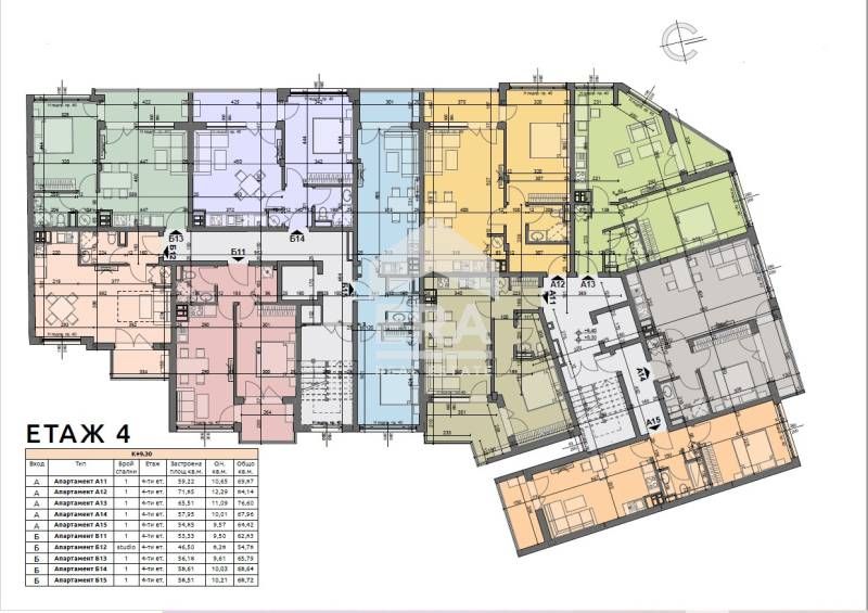
Етаж: 4-ти
Брой етажи на сградата: 9
Последен етаж
Отопление: Електричество
Обзавеждане: Необзаведен
Състояние на сградата: В строеж
Преход: Без преход
Особености: асансьор
Описание
ЕРА Фаворит предлага за продажба двустаен апартамент с оригинално разпределение, който се намира в новострояща се сграда в ж.к. Хаджи Димитър и се състои от: входно антре с коридор, дневна с кухненски бокс и трапезария - с излаз на балкон, спалня, баня с тоалетна. Апартаментът има интересна амфитеатрална форма, като изложението на спалнята е северно, а на дневната - на север и запад.
Сградата представлява модерен архитектурен проект, който се състои от два входа на девет етажа. Фасадата ще бъде изградена по съвременна качествена технология, изпълнена по прецизен начин. Топлоизолацията е с дебелина 12 см., ще бъдат монтирани безшумни асансьори, а отоплението е предвидено да бъде на климатици със сплит система, като ще има монтирано тяло във всяка стая. Сградата е на акт 14, което дава възможност в покупката да се включат потенциални купувачи с банков кредит. Цените няма да бъдат актуализирани от подписването на предварителен договор до получаването на разрешение за ползване - акт 16.
Допълнително могат да бъдат закупени подземни паркоместа на цена 25000 Евро и гаражи на 45000 Евро.
Удостоверение за завършен груб строеж предстои да бъде издадено до края на 02.2026 г.
Акт 15 - до края на м. Ноември 2026 г.
Акт 16 - в първите месеци на 2027 г.
Агенция ЕРА Фаворит е член на НСНИ и администратор на лични данни.
Преди огледа се провежда среща в нашия офис, за да се запознаем с изискванията Ви и за да оформим документи съгласно ЗЗД и ЗМИП.
По време на огледа се подписва Протокол за оглед. За този имот се дължи комисиона към агенцията.
Предлагаме Ви юридическо съдействие през целия процес на покупката.
Предлагаме безплатна индивидуална консултация с кредитен консултант от CREDITERA - регистриран финансов брокер към БНБ. Конкурентни условия!
Всеки ЕРА офис е с независимо управление и собственост!
Оферта №7200309
Сградата представлява модерен архитектурен проект, който се състои от два входа на девет етажа. Фасадата ще бъде изградена по съвременна качествена технология, изпълнена по прецизен начин. Топлоизолацията е с дебелина 12 см., ще бъдат монтирани безшумни асансьори, а отоплението е предвидено да бъде на климатици със сплит система, като ще има монтирано тяло във всяка стая. Сградата е на акт 14, което дава възможност в покупката да се включат потенциални купувачи с банков кредит. Цените няма да бъдат актуализирани от подписването на предварителен договор до получаването на разрешение за ползване - акт 16.
Допълнително могат да бъдат закупени подземни паркоместа на цена 25000 Евро и гаражи на 45000 Евро.
Удостоверение за завършен груб строеж предстои да бъде издадено до края на 02.2026 г.
Акт 15 - до края на м. Ноември 2026 г.
Акт 16 - в първите месеци на 2027 г.
Агенция ЕРА Фаворит е член на НСНИ и администратор на лични данни.
Преди огледа се провежда среща в нашия офис, за да се запознаем с изискванията Ви и за да оформим документи съгласно ЗЗД и ЗМИП.
По време на огледа се подписва Протокол за оглед. За този имот се дължи комисиона към агенцията.
Предлагаме Ви юридическо съдействие през целия процес на покупката.
Предлагаме безплатна индивидуална консултация с кредитен консултант от CREDITERA - регистриран финансов брокер към БНБ. Конкурентни условия!
Всеки ЕРА офис е с независимо управление и собственост!
Оферта №7200309
ID: 145565229
Контакт с продавача
xxx xxx xxx
Добавена 14 октомври 2025 г.
ЕРА Фаворит предлага за продажба интересен двустаен апартамент с в Хад
195000 €
Потребител
Локация
гр. София, Хаджи Димитър
Област София-град