Бизнес
Цена на кв.м: 1097.76
Тип апартамент: 2 - стаен
Квадратура: 59 кв.м
Година на строителство: 2027 г.
Строителство: Тухла
Етаж: 5-ти
Брой етажи на сградата: 5
Последен етаж
Отопление: Електричество
Обзавеждане: Необзаведен
Състояние на сградата: В строеж
Преход: Без преход
OLX Доставка
Описание
Компания X представя на Вашето внимание ЕКСКЛУЗИВНО двустаен апартамент в Асеновград.
МЕСТОПОЛОЖЕНИЕ: Районът около Асеновград е обграден от красива природа, включително планините Родопи.Това прави града атрактивно място за туризъм и почивка на открито.В Асеновград се намира крепостта Асенова крепост, която е един от най-големите и най-значимите средновековни крепости в България.
СТРОИТЕЛСТВО: Апартаментът се намира на 5-ти, последен, етаж, в сграда ново строителство.
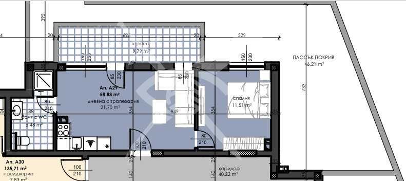
РАЗПРЕДЕЛЕНИЕ: Жилището разполага с площ от 59 кв.м., разпределена по следния начин: входно антре, дневна с кухненски бокс, спалня, баня с тоалетна и тераса.
СЪСТОЯНИЕ: В строеж.
Заповядайте да Ви го покажем. Използвайки нашите услуги Вие ще превърнете закупуването на новия си дом в едно приятно изживяване, ще получите персонален консултант, съдействие при кандидатстване за кредит от всички банки в България, интериорни дизайнери и екип, който да се погрижи за нужните документи по Вашата сделка. На Ваше разположение сме всеки ден, от понеделник до неделя от 09:00 до 20:00ч. Възползвайте се от безплатна консултация в наш офис, където ще ви спестим време и ще ви запознаем с всички актуални имоти в България, отговарящи на Вашето търсене. Свържете се с нас на 08******90 или на 08******90 и цитирайте кода към имота: 1057- 30657
МЕСТОПОЛОЖЕНИЕ: Районът около Асеновград е обграден от красива природа, включително планините Родопи.Това прави града атрактивно място за туризъм и почивка на открито.В Асеновград се намира крепостта Асенова крепост, която е един от най-големите и най-значимите средновековни крепости в България.
СТРОИТЕЛСТВО: Апартаментът се намира на 5-ти, последен, етаж, в сграда ново строителство.
РАЗПРЕДЕЛЕНИЕ: Жилището разполага с площ от 59 кв.м., разпределена по следния начин: входно антре, дневна с кухненски бокс, спалня, баня с тоалетна и тераса.
СЪСТОЯНИЕ: В строеж.
Заповядайте да Ви го покажем. Използвайки нашите услуги Вие ще превърнете закупуването на новия си дом в едно приятно изживяване, ще получите персонален консултант, съдействие при кандидатстване за кредит от всички банки в България, интериорни дизайнери и екип, който да се погрижи за нужните документи по Вашата сделка. На Ваше разположение сме всеки ден, от понеделник до неделя от 09:00 до 20:00ч. Възползвайте се от безплатна консултация в наш офис, където ще ви спестим време и ще ви запознаем с всички актуални имоти в България, отговарящи на Вашето търсене. Свържете се с нас на 08******90 или на 08******90 и цитирайте кода към имота: 1057- 30657
ID: 143396038
Контакт с продавача
xxx xxx xxx
