Бизнес
Цена на кв.м: 711.61
Брой етажи на сградата: 3
Квадратура: 267 кв.м
Квадратура на двора: 50 кв.м
Година на строителство: 2025 г.
Строителство: Тухла
Отопление: Електричество
Състояние на сградата: В строеж
Особености: СОТ, гараж, охрана, паркинг, санирана, видеонаблюдение, затворен комплекс
Описание
ЕКСКЛУЗИВНО ПРЕДЛОЖЕНИЕ ОТ ”DELUXE HOMES”
Представяме Ви стилен нов комплекс от къщи 16 на брой, разположен между селата Марково и Първенец - едно от най-предпочитаните места за спокоен и качествен живот в близост до Пловдив.
Има няколко варианта къщи с различни квадратури.
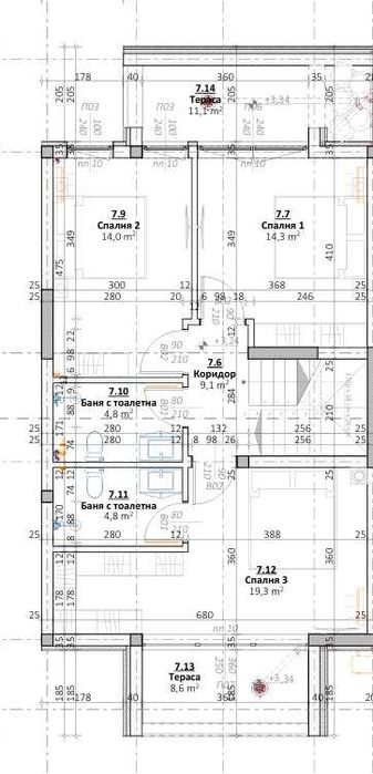
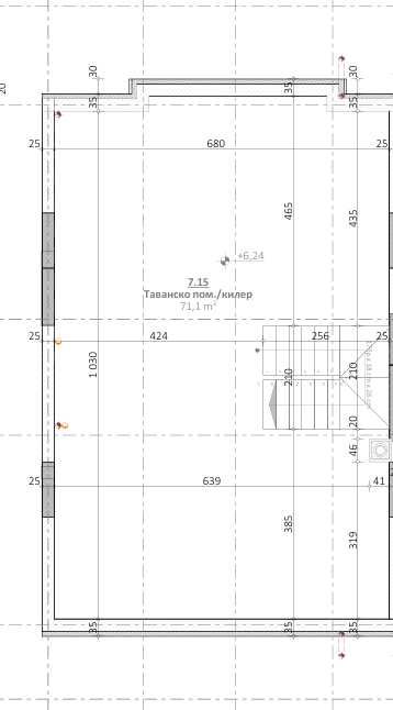
Една от тях е с РЗП 267 кв.м., разпределени функционално и удобно:
• Просторна дневна зона с място за семейни събирания
• 3 спални за уединение и комфорт
• Гараж
• Фитнес и стая за игра
Като всяка една от тях има собствен двор 50кв.м.
Строителство и технологии:
• Тухли Wienerberger Porotherm
• Топлоизолация с каменна вата
• 6-камерна дограма
• Соларна система
• Филтрираща система за водата
• Окабеляване за Smart Home
• Видеонаблюдение в целия комплекс
• Капково напояване в дворовете
Комплексът съчетава тишина и природа с модерни удобства и сигурност - идеалното място за вашия нов дом.
Доставяме резултатите, които сме обещали. Създаваме очаквания на клиентите си, които можем да посрещнем.
Инвестираме доверие, както в екипа си, така и в клиентите си.
”Deluxe Homes” предлага:
• Посредничество при покупка и продажба на недвижим имот.
• Сътрудничество за всякакъв вид кредитиране.
• Управление на имоти.
• Юридическо съдействие.
• Следпродажбени услуги.
• Безплатна консултация в наш офис.
• Работно време всеки ден от 08:00 до 21:00.
Не пропускайте възможността да разгледате този имот! Свържете се с нас за допълнителна информация и уговаряне на огледи!
КОД НА ОБЯВАТА: 142648
Представяме Ви стилен нов комплекс от къщи 16 на брой, разположен между селата Марково и Първенец - едно от най-предпочитаните места за спокоен и качествен живот в близост до Пловдив.
Има няколко варианта къщи с различни квадратури.
Една от тях е с РЗП 267 кв.м., разпределени функционално и удобно:
• Просторна дневна зона с място за семейни събирания
• 3 спални за уединение и комфорт
• Гараж
• Фитнес и стая за игра
Като всяка една от тях има собствен двор 50кв.м.
Строителство и технологии:
• Тухли Wienerberger Porotherm
• Топлоизолация с каменна вата
• 6-камерна дограма
• Соларна система
• Филтрираща система за водата
• Окабеляване за Smart Home
• Видеонаблюдение в целия комплекс
• Капково напояване в дворовете
Комплексът съчетава тишина и природа с модерни удобства и сигурност - идеалното място за вашия нов дом.
Доставяме резултатите, които сме обещали. Създаваме очаквания на клиентите си, които можем да посрещнем.
Инвестираме доверие, както в екипа си, така и в клиентите си.
”Deluxe Homes” предлага:
• Посредничество при покупка и продажба на недвижим имот.
• Сътрудничество за всякакъв вид кредитиране.
• Управление на имоти.
• Юридическо съдействие.
• Следпродажбени услуги.
• Безплатна консултация в наш офис.
• Работно време всеки ден от 08:00 до 21:00.
Не пропускайте възможността да разгледате този имот! Свържете се с нас за допълнителна информация и уговаряне на огледи!
КОД НА ОБЯВАТА: 142648
ID: 145887847
Контакт с продавача
xxx xxx xxx
