Бизнес
Цена на кв.м: 714.29
Брой етажи на сградата: 1
Квадратура: 105 кв.м
Квадратура на двора: 1140 кв.м
Година на строителство: 1980 г.
Строителство: Тухла
Отопление: Електричество
Състояние на сградата: Завършена
Особености: паркинг
Описание
Къщата се намира в село Стамболово, което е добре развито, разположено на 35 км северозападно от старопрестолният град Велико Търново и на около 12 км от главния път Варна - София. Селото се намира на 1 км е река Росица, а на 15 км - язовир "Александър Стамболийски.
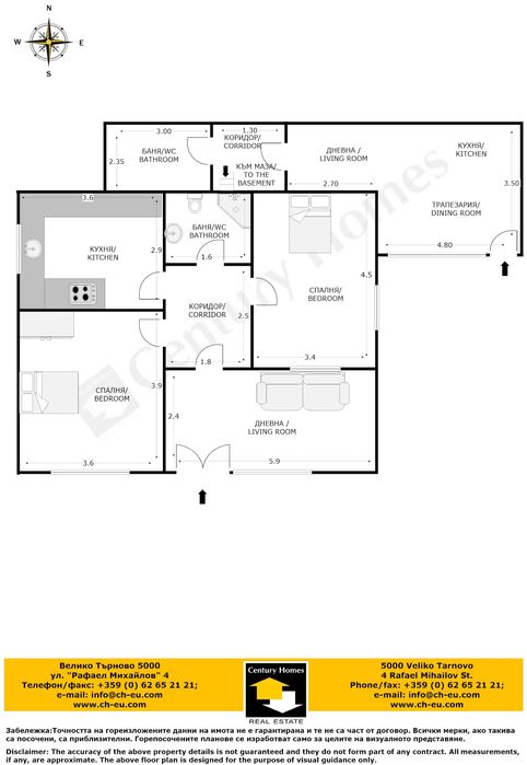
Жилищната площ на къщата е 72 кв.м. и състои от кухня, дневна, две спални, баня/ WC и коридор.
Имотът е реновиран, в много добро състояние, обзаведен, с ПВЦ дограма, подови настилки ламинат и гранитогрес, стени с латекс.
Пристройка до къщата (33 кв. м.) е също обновена и обособена като лятна кухня с трапезария и кът за почивка, преминаваща към коридор, даващ достъп до втора баня с тоалетна, както и стъпала към просторна маза под къщата.
Дворът е 1 140 кв.м. със селскостопанска постройка в него, както и кладенец.
Снабден с вода, електричество и достъпен през цялата година, имотът е подходящ както за постоянно пребиваване, така и за вила за почивка, осигуряваща тих и здравословен начин на живот в добре развито селище. Стамболово се намира близо до град Павликени и предлага разнообразни местни удобства. В района има магазини, училища и редовен автобусен транспорт.
Реф. номер:140243
Жилищната площ на къщата е 72 кв.м. и състои от кухня, дневна, две спални, баня/ WC и коридор.
Имотът е реновиран, в много добро състояние, обзаведен, с ПВЦ дограма, подови настилки ламинат и гранитогрес, стени с латекс.
Пристройка до къщата (33 кв. м.) е също обновена и обособена като лятна кухня с трапезария и кът за почивка, преминаваща към коридор, даващ достъп до втора баня с тоалетна, както и стъпала към просторна маза под къщата.
Дворът е 1 140 кв.м. със селскостопанска постройка в него, както и кладенец.
Снабден с вода, електричество и достъпен през цялата година, имотът е подходящ както за постоянно пребиваване, така и за вила за почивка, осигуряваща тих и здравословен начин на живот в добре развито селище. Стамболово се намира близо до град Павликени и предлага разнообразни местни удобства. В района има магазини, училища и редовен автобусен транспорт.
Реф. номер:140243
ID: 146504872
Контакт с продавача
xxx xxx xxx

