Бизнес
Цена на кв.м: 1950.41
Тип апартамент: 3 - стаен
Квадратура: 123 кв.м
Година на строителство: 2026 г.
Строителство: Тухла
Етаж: 3-ти
Брой етажи на сградата: 6
Последен етаж
Отопление: Електричество
Обзавеждане: Необзаведен
Състояние на сградата: В строеж
Преход: Без преход
Особености: асансьор, гараж, лизинг, саниран
Описание
ЕКСКЛУЗИВЕН, ЮЖЕН АПАРТАМЕНТ НА СРЕДЕН ЕТАЖ В СГРАДА с Акт 14 по чл.181! ДНЕВНА 30М2! СПАЛНЯ 18м2 И ВТОРА СПАЛНЯ 16М2!
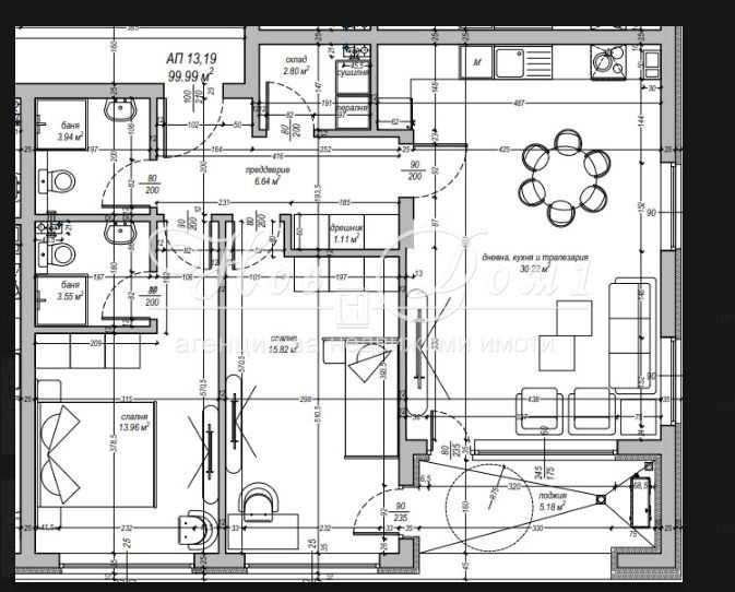
Имотът представлява: Южен 3-стаен апартамент с правилни форми на стаите, на напълно среден жилищен етаж, без отстъпени или скосени тавани! Имотът се намира в луксозен новостроящ се комплекс и се състои от :
-входно антре с място за гардеробна,
-всекидневна с кухненска част и обща полезна площ над 30м2;
-просторна родителска спалня със самостоятелна баня с тоалетна и обща площ почти 18м2;
-втора непреходна спалня 16м2 ;
-баня с тоалетна,
-мокро помещение.
От всекидневната се излиза на балкон тип лоджия близо 6м2, който гледа към богато озеленения вътрешен двор на комплекса, площадки за игра, фитнес на открито и др. Параметри: РЗП - 123м2, ЗП - 100м2.
Състояние: Имотът се издава съгласно БДС с екстериорна блиндирана врата. Подът е нивелирана замазка подготвена за полагане на гранитогрес, паркет или настилка. Стените са машинно обработена гипсова мазилка с турбозол подготвена за боя или тапет. Мокри Помещения: ръчно обработена циментова мазилка подготвена за полагане на фаянс и теракота.
Локация: Имота се намира в един от най- динамично развиващите се и с огромен потенциал райони на София - Малинова Долина. В непосредствена близост до НСА "Васил Левски". Лесен и бърз достъп до главни пътни артерии.
Сградата: Впечатляваща съвременна визия на сграда. Луксозно завършени общи части. Тухли с голяма здравина и издръжливост, които само производителите на Wienerberger могат да предоставят. Дограма Salamander с високоефективни показатели, осигурява отлична топлоизолация и звукоизолация. Просторни асансьори Orona. Фасади в красива комбинация от камък, HPL и висококачествени мазилики. Сградите ще се отличават с елегантен външен вид, благодарение на фасадите от качествени и отлично комбинирани материали. Акт 16 - края на 2026г.
Нов Дом 1 - винаги най-доброто на пазара!
Обадете се и запазете час за консултация и оглед
Имотът представлява: Южен 3-стаен апартамент с правилни форми на стаите, на напълно среден жилищен етаж, без отстъпени или скосени тавани! Имотът се намира в луксозен новостроящ се комплекс и се състои от :
-входно антре с място за гардеробна,
-всекидневна с кухненска част и обща полезна площ над 30м2;
-просторна родителска спалня със самостоятелна баня с тоалетна и обща площ почти 18м2;
-втора непреходна спалня 16м2 ;
-баня с тоалетна,
-мокро помещение.
От всекидневната се излиза на балкон тип лоджия близо 6м2, който гледа към богато озеленения вътрешен двор на комплекса, площадки за игра, фитнес на открито и др. Параметри: РЗП - 123м2, ЗП - 100м2.
Състояние: Имотът се издава съгласно БДС с екстериорна блиндирана врата. Подът е нивелирана замазка подготвена за полагане на гранитогрес, паркет или настилка. Стените са машинно обработена гипсова мазилка с турбозол подготвена за боя или тапет. Мокри Помещения: ръчно обработена циментова мазилка подготвена за полагане на фаянс и теракота.
Локация: Имота се намира в един от най- динамично развиващите се и с огромен потенциал райони на София - Малинова Долина. В непосредствена близост до НСА "Васил Левски". Лесен и бърз достъп до главни пътни артерии.
Сградата: Впечатляваща съвременна визия на сграда. Луксозно завършени общи части. Тухли с голяма здравина и издръжливост, които само производителите на Wienerberger могат да предоставят. Дограма Salamander с високоефективни показатели, осигурява отлична топлоизолация и звукоизолация. Просторни асансьори Orona. Фасади в красива комбинация от камък, HPL и висококачествени мазилики. Сградите ще се отличават с елегантен външен вид, благодарение на фасадите от качествени и отлично комбинирани материали. Акт 16 - края на 2026г.
Нов Дом 1 - винаги най-доброто на пазара!
Обадете се и запазете час за консултация и оглед
ID: 145975961
Контакт с продавача
xxx xxx xxx
Добавена 04 ноември 2025 г.
Ексклузивен имот в нова сграда на среден етаж с изцяло южно изложение
239900 €
Потребител
Локация
гр. София, Малинова долина
Област София-град
За този потребител