Бизнес
Цена на кв.м: 1843.75
Тип апартамент: 2 - стаен
Квадратура: 64 кв.м
Година на строителство: 2025 г.
Строителство: Тухла
Етаж: 2-ри
Брой етажи на сградата: 5
Последен етаж
Отопление: Електричество
Обзавеждане: Необзаведен
Състояние на сградата: В строеж
Преход: Без преход
Описание
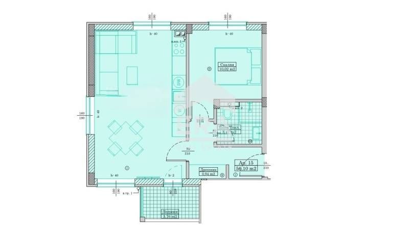
Само в ЕРА Лайф! Обявеният за продажба двустаен апартамент с площ 64,24м2 /застроена площ 56,10 м2/ е разположен на втори жилищен етаж в сграда в напреднал етап на строителство. Имотът се състои от: дневна с кухненски бокс (24,70) м2 с излаз на балкон (3,76) м2 , спалня (10,02) м2, дрешник (0,94) м2, комбиниран санитарен възел (3.47) м2 и антре 5м2. Статут на имота: апартамент. Към апартамента може да се закупи допълнително външно паркомясто /на цена от 12 000Е/.
Изложение запад. Жилището ще бъде завършено по БДС стандарт - стени и тавани гипсова мазилка, под тераса с гранитогрес, ПВЦ дограма, монтирани ел. ключове и контакти, ВиК на тапа.
Ексклузивният имот е част от нова сграда, с контролиран достъп. Въвеждане в експлоатация септември 2026 г. Общи части напълно завършени. Високо качество на строителство от доказан строител. Модерна визия и дизайн.
Местност Пчелина - район съчетаващ тишината на природата с удобен достъп до градската инфраструктура, с лесен достъп от ул. Прилеп и ул. Поп Димитър. В близост има два супермаркета, детска градина, училище, клиника Нова и удобни спирки на градския транспорт. Код: 0708820
Към офертата са приложени илюстративни снимки с идеи за обзавеждане!
ЕРА е лицензиран КРЕДИТЕН ПОСРЕДНИК и предлага БЕЗПЛАТНА консултация на своите клиенти!
Всеки имот предлаган от ЕРА е проверен, посетен на място и заснет от наш консултант.
Оферта №0708820
Изложение запад. Жилището ще бъде завършено по БДС стандарт - стени и тавани гипсова мазилка, под тераса с гранитогрес, ПВЦ дограма, монтирани ел. ключове и контакти, ВиК на тапа.
Ексклузивният имот е част от нова сграда, с контролиран достъп. Въвеждане в експлоатация септември 2026 г. Общи части напълно завършени. Високо качество на строителство от доказан строител. Модерна визия и дизайн.
Местност Пчелина - район съчетаващ тишината на природата с удобен достъп до градската инфраструктура, с лесен достъп от ул. Прилеп и ул. Поп Димитър. В близост има два супермаркета, детска градина, училище, клиника Нова и удобни спирки на градския транспорт. Код: 0708820
Към офертата са приложени илюстративни снимки с идеи за обзавеждане!
ЕРА е лицензиран КРЕДИТЕН ПОСРЕДНИК и предлага БЕЗПЛАТНА консултация на своите клиенти!
Всеки имот предлаган от ЕРА е проверен, посетен на място и заснет от наш консултант.
Оферта №0708820
ID: 145838664
Контакт с продавача
xxx xxx xxx

