Бизнес
Цена на кв.м: 1960.78
Тип апартамент: 1 - стаен
Квадратура: 51 кв.м
Година на строителство: 2027 г.
Строителство: Тухла
Етаж: 4-ти
Брой етажи на сградата: 4
Последен етаж
Отопление: ТЕЦ
Обзавеждане: Полуобзаведен
Състояние на сградата: В строеж
Преход: Без преход
Особености: асансьор
Описание
Открийте мястото, където ще се чувствате у дома от първия момент.
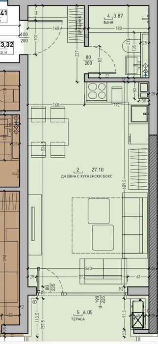
Титан Пропъртис с радост предлага на Вашето внимание едностаен апартамент за продажба в кв. Малинова долина. Жилището с площ 51 кв.м се намира на 4-ти етаж в нова четириетажна сграда на Акт 14, която ще бъде въведена в експлоатация (Акт 16) 2027 г. Изток/Юг осигурява приятна дневна светлина. Възможностите за оформление включват входно антре, стая, баня и голяма тераса. Имота се предлага необзаведен, с централно отопление на ТЕЦ за оптимален комфорт.
"С нас, вашето търсене на имот завършва с усмивка."
За оглед на това и други атрактивни предложения, не се колебайте да ни потърсите на посочения телефон или да ни изпратите данните си чрез формата за запитване на сайта.
Реф. номер: 2102048.
Титан Пропъртис с радост предлага на Вашето внимание едностаен апартамент за продажба в кв. Малинова долина. Жилището с площ 51 кв.м се намира на 4-ти етаж в нова четириетажна сграда на Акт 14, която ще бъде въведена в експлоатация (Акт 16) 2027 г. Изток/Юг осигурява приятна дневна светлина. Възможностите за оформление включват входно антре, стая, баня и голяма тераса. Имота се предлага необзаведен, с централно отопление на ТЕЦ за оптимален комфорт.
"С нас, вашето търсене на имот завършва с усмивка."
За оглед на това и други атрактивни предложения, не се колебайте да ни потърсите на посочения телефон или да ни изпратите данните си чрез формата за запитване на сайта.
Реф. номер: 2102048.
ID: 146287395
Контакт с продавача
xxx xxx xxx
Обновено на 19 март 2026 г.
Едностаен за продажба в ж.к. Малинова долина
195583 лв. / 100000 €
Потребител
Локация
гр. София, Малинова долина
Област София-град