Бизнес
Цена на кв.м: 1196.72
Тип апартамент: 1 - стаен
Квадратура: 61 кв.м
Година на строителство: 2025 г.
Строителство: Тухла
Етаж: 1-ви
Брой етажи на сградата: 5
Последен етаж
Отопление: Електричество
Обзавеждане: Необзаведен
Състояние на сградата: В строеж
Преход: Без преход
Особености: асансьор, паркинг
Описание
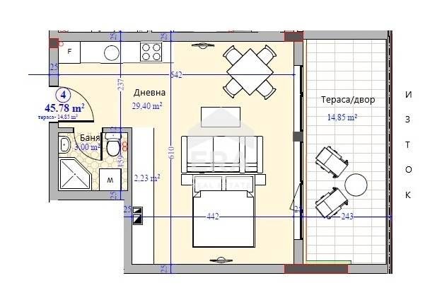
ЕРА Варна Тренд предлага за продажба едностаен апартамент със собствен двор, в новострояща се сграда, кв. Галата. Имотът е със застроена площ 39,5 кв.м (45,78 кв.м с общите части), както и прилежащ двор/тераса (14,85 кв.м), разположен на първи партерен етаж от общо 5 етажа. Състои се от просторна дневна с кухненски бокс (31,63 кв.м) с излаз на широка тераса/двор (14,85 кв.м), входно антре и баня с тоалетна (3 кв.м). Изложението е изток. Статутът е на апартамент.
Жилището се продава необзаведено. Ще бъде завършено до степен БДС. Приложен е примерен интериорен проект. Отоплението ще бъде с електричество.
Едностайният апартамент се намира в пететажна тухлена сграда с асансьор, на начален етап на строителство. Очаква се да бъде въведена в експлоатация през 2028 г. Визията и общите части на сградата са много красиви. Има възможност за допълнително закупуване на открито паркомясто на цена 12 000 евро или закрито паркомясто на цена 19 000 евро. В близост има православен храм, читалище, детска градина, ОУ Кап. Петко Войвода, супермаркет Бурлекс, спирки на градския транспорт, живописни плажове.
Галата е квартал в гр. Варна. Намира се в район Аспарухово. До него се достига чрез Аспаруховия мост и панорамния път край Варненския залив. Кварталът има изключителна гледка и мек климат. Край Галата има чисти, каменисти плажове - Фичоза и Паша дере, подходящи за палатков туризъм, както и малки хотели и бунгала. В близост е южната курортна зона на Варна, Боровец. В съседство са м-т Зеленика и со Прибой, а на юг - со Ракитника.
Оферта №0222142
Жилището се продава необзаведено. Ще бъде завършено до степен БДС. Приложен е примерен интериорен проект. Отоплението ще бъде с електричество.
Едностайният апартамент се намира в пететажна тухлена сграда с асансьор, на начален етап на строителство. Очаква се да бъде въведена в експлоатация през 2028 г. Визията и общите части на сградата са много красиви. Има възможност за допълнително закупуване на открито паркомясто на цена 12 000 евро или закрито паркомясто на цена 19 000 евро. В близост има православен храм, читалище, детска градина, ОУ Кап. Петко Войвода, супермаркет Бурлекс, спирки на градския транспорт, живописни плажове.
Галата е квартал в гр. Варна. Намира се в район Аспарухово. До него се достига чрез Аспаруховия мост и панорамния път край Варненския залив. Кварталът има изключителна гледка и мек климат. Край Галата има чисти, каменисти плажове - Фичоза и Паша дере, подходящи за палатков туризъм, както и малки хотели и бунгала. В близост е южната курортна зона на Варна, Боровец. В съседство са м-т Зеленика и со Прибой, а на юг - со Ракитника.
Оферта №0222142
ID: 146404097
Контакт с продавача
xxx xxx xxx

