Бизнес
Цена на кв.м: 995
Тип апартамент: 1 - стаен
Квадратура: 36 кв.м
Година на строителство: 2027 г.
Строителство: Тухла
Етаж: 2-ри
Брой етажи на сградата: 5
Последен етаж
Отопление: Електричество
Обзавеждане: Необзаведен
Състояние на сградата: В строеж
Преход: Без преход
Особености: асансьор, саниран
Описание
Агенция за недвижими имоти „МИРА“, предлага за продажба ЕДНОСТАЕН АПАРТАМЕНТ разположен в кв. Изгрев. Град Свиленград.
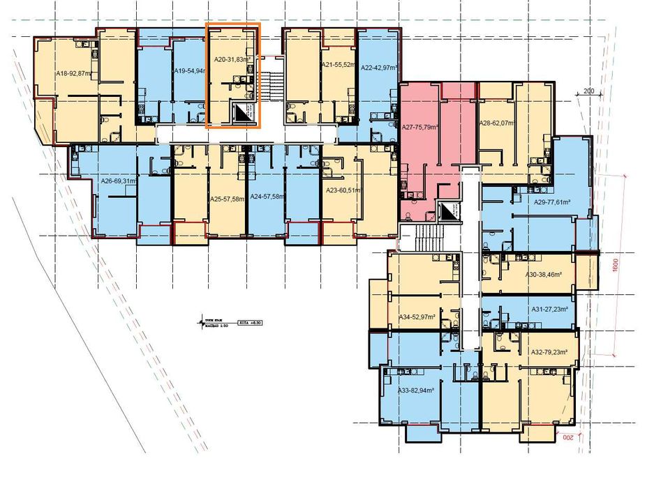
Апартамент №20 – 35,82кв.м.
Етаж – 2-ри жилищен над търговски обекти
Вътрешно разпределение:
- Антре/коридор;
- Хол/Всекидневна с кухненски бокс с кът за спане;
- Баня и тоалетна;
- Складово помещение.
Комплексът разполага със студия, двустайни и тристайни апартаменти .Квадратурите на апартаментите са от 30.65 м2 до 104.52 м2, разпределени на пет жилищни етажа. Гъвкава схема на плащане. В допълнение може да закупите външни паркомясто, гаражи/паркоместа на подземно ниво . Сградата е проектирана с два входа с луксозни общи части. За сигурността на живущите са предвидени видеонаблюдение и контролиран достъп за външни лица на входа на сградата. Имотът ще бъде изграден от доказани инвеститори, които залагат само и изцяло на Модерно и качествено строителство, при спазване на съвременните европейски стандарти в бранша. Висок клас на използваните материали. Монолитна стоманобетонна конструкция, оразмерена на земетръс. Външни и вътрешни стени от червени керамични тухли на водещ европейски производител. Осигурени топло-, хидро- и шумо- изолации. Вътрешни мазилки и замазки. Инсталации, изпълнени със сертифицирани материали на реномирани производители. Стилна фасада с класическа градска архитектура. Качествена дограма с високо-енергийни и ниско-емисионни стъкла. Красиви, здрави и сигурни външни врати. Представителни общи части с модерни вътрешни мазилки в топли цветове и настилки по стълбища и коридори от естествен камък и най-висок клас асансьор. Материали, осигуряващи лесна поддръжка, дълговечност и чувство за уют в дома.
ЗАЩА ДА ИЗБЕРЕТЕ „ЛАС ВЕГАС“
- Висока доходност от наеми – Свиленград е атрактивен център за бизнес и туризъм, което гарантира постоянен интерес от наематели.
- Търсене на работна ръка – в района има засилен приток на специалисти и служители, което увеличава потенциала за бърза възвращаемост на инвестицията.
- Разсрочено плащане до 2 години – изберете удобна и гъвкава схема на плащане , съобразена с вашите нужди.
ЛОКАЦИЯ: Сграда „Лас Вегас “ е разположена на стратегическо място в града в кв. Изгрев, зад клуб по борба „Христо Ставрев“ , близо до ключови обекти, магазини и транспортни връзки. „Изгрев“ е най-големият жилищен район в Свиленград с площ 46 400 кв. м, където живеят над 2 000 души. Дейностите и решенията, предвидени в проекта, ще допринесат за повишаване качеството им на живот.Строително-ремонтните дейности включват благоустрояване на улици в междублоковите пространства и изграждане на паркинги с общо 473 паркоместа, за разлика от досегашните – 205 паркоместа. Предвидено е обособяване на зони за разделно сметосъбиране с контрол на достъпа, изграждане на велоалеи и места за паркиране на велосипеди със система за контрол и охрана. Планирано е облагородяване на съществуващата растителност и създаване на нови зелени площи, изграждане на нова алейна мрежа с декоративни акценти, нови детски площадки и места за отдих и спорт, подновяване на уличното и парково осветление. Предвидена е достъпност на средата за хората с увреждания.
НЕ ОТЛАГАЙТЕ ПОКУПКАТА НА НОВИЯТ СИ ДОМ!
НАПРАВЕТЕ ГО ОЩЕ СЕГА!! ЗАПАЗЕТЕ ИМОТА СРЕЩУ 1000лв!!!
РАЗСРОЧЕНО ПЛАЩАНЕ БЕЗ ОСКЪПЯВАНЕ!!!
За повече информация и оглед се обадете на посочените телефони!
Оказваме пълно съдействие за банково кредитиране при най-добри условия, висока пазарна оценка и цялостна юридическа проверка на имотите, които предлагаме!
Обслужваме български и чуждестранни клиенти, в офиса ни предлагаме консултация на – български, недерландски, руски, турски и английски език. English, Русский, Nederlandse, Türkçe./EMLAK/
Апартамент №20 – 35,82кв.м.
Етаж – 2-ри жилищен над търговски обекти
Вътрешно разпределение:
- Антре/коридор;
- Хол/Всекидневна с кухненски бокс с кът за спане;
- Баня и тоалетна;
- Складово помещение.
Комплексът разполага със студия, двустайни и тристайни апартаменти .Квадратурите на апартаментите са от 30.65 м2 до 104.52 м2, разпределени на пет жилищни етажа. Гъвкава схема на плащане. В допълнение може да закупите външни паркомясто, гаражи/паркоместа на подземно ниво . Сградата е проектирана с два входа с луксозни общи части. За сигурността на живущите са предвидени видеонаблюдение и контролиран достъп за външни лица на входа на сградата. Имотът ще бъде изграден от доказани инвеститори, които залагат само и изцяло на Модерно и качествено строителство, при спазване на съвременните европейски стандарти в бранша. Висок клас на използваните материали. Монолитна стоманобетонна конструкция, оразмерена на земетръс. Външни и вътрешни стени от червени керамични тухли на водещ европейски производител. Осигурени топло-, хидро- и шумо- изолации. Вътрешни мазилки и замазки. Инсталации, изпълнени със сертифицирани материали на реномирани производители. Стилна фасада с класическа градска архитектура. Качествена дограма с високо-енергийни и ниско-емисионни стъкла. Красиви, здрави и сигурни външни врати. Представителни общи части с модерни вътрешни мазилки в топли цветове и настилки по стълбища и коридори от естествен камък и най-висок клас асансьор. Материали, осигуряващи лесна поддръжка, дълговечност и чувство за уют в дома.
ЗАЩА ДА ИЗБЕРЕТЕ „ЛАС ВЕГАС“
- Висока доходност от наеми – Свиленград е атрактивен център за бизнес и туризъм, което гарантира постоянен интерес от наематели.
- Търсене на работна ръка – в района има засилен приток на специалисти и служители, което увеличава потенциала за бърза възвращаемост на инвестицията.
- Разсрочено плащане до 2 години – изберете удобна и гъвкава схема на плащане , съобразена с вашите нужди.
ЛОКАЦИЯ: Сграда „Лас Вегас “ е разположена на стратегическо място в града в кв. Изгрев, зад клуб по борба „Христо Ставрев“ , близо до ключови обекти, магазини и транспортни връзки. „Изгрев“ е най-големият жилищен район в Свиленград с площ 46 400 кв. м, където живеят над 2 000 души. Дейностите и решенията, предвидени в проекта, ще допринесат за повишаване качеството им на живот.Строително-ремонтните дейности включват благоустрояване на улици в междублоковите пространства и изграждане на паркинги с общо 473 паркоместа, за разлика от досегашните – 205 паркоместа. Предвидено е обособяване на зони за разделно сметосъбиране с контрол на достъпа, изграждане на велоалеи и места за паркиране на велосипеди със система за контрол и охрана. Планирано е облагородяване на съществуващата растителност и създаване на нови зелени площи, изграждане на нова алейна мрежа с декоративни акценти, нови детски площадки и места за отдих и спорт, подновяване на уличното и парково осветление. Предвидена е достъпност на средата за хората с увреждания.
НЕ ОТЛАГАЙТЕ ПОКУПКАТА НА НОВИЯТ СИ ДОМ!
НАПРАВЕТЕ ГО ОЩЕ СЕГА!! ЗАПАЗЕТЕ ИМОТА СРЕЩУ 1000лв!!!
РАЗСРОЧЕНО ПЛАЩАНЕ БЕЗ ОСКЪПЯВАНЕ!!!
За повече информация и оглед се обадете на посочените телефони!
Оказваме пълно съдействие за банково кредитиране при най-добри условия, висока пазарна оценка и цялостна юридическа проверка на имотите, които предлагаме!
Обслужваме български и чуждестранни клиенти, в офиса ни предлагаме консултация на – български, недерландски, руски, турски и английски език. English, Русский, Nederlandse, Türkçe./EMLAK/
ID: 142155687
Контакт с продавача
xxx xxx xxx
Добавена 11 декември 2025 г.
ЕДНОСТАЕН АПАРТАМЕНТ в кв. Изгрев. Град Свиленград.
70057.83 лв. / 35820 €
Потребител
Локация
гр. Свиленград
Област Хасково
За този потребител
