Бизнес
Цена на кв.м: 1162.70
Тип апартамент: 1 - стаен
Квадратура: 63 кв.м
Година на строителство: 2027 г.
Строителство: Тухла
Етаж: 1-ви
Брой етажи на сградата: 4
Последен етаж
Отопление: Електричество
Обзавеждане: Необзаведен
Състояние на сградата: В строеж
Преход: Без преход
Описание
Ем Джи Естейт предлага:
Директно от строител.
Без комисиона от купувача.
Без такса поддръжка.
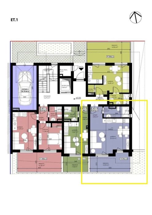
Едностаен апартамент студио. Състои се от антре, просторна всекидневна с обособени кътове за кухня и трапезария, баня с тоалетна, широка тераса.
Изложения: Юг , Изток
Етаж: 1
Площ: 62,66 м2
Жилищната сграда ще бъде изградена в гр.Созопол, в близост до плаж Хармани.
Сградата се състои от един полуподземен етаж с парко места и четири жилищни етажа с асансьор. Има общо 16 апартамента, от които 10 двустайни и 6 едностайни, 9 паркоместа , 1 затворен гараж в подземен етаж, 1 затворен гараж на 1-ви етаж.
Възможност за покупка на паркомясто - 12000 Евро.
СТЕПЕН НА ЗАВЪРШЕНОСТ:
Фасада: EPS топлоизолационен пакет 10см, силиконова мазилка Baumit.
Дограма: PVC 5 камерна.
Тераси: гранитогрес за външни условия. Покривни тераси с XPS и хидроизолация. Алуминиев ажурен парапет.
Покриви: плоски.
Общи части: стълбище от гранитогрес, алуминиев парапет.
Апартаменти:
Входни блиндирани врати.
ЕЛ: контакти , без осветителни тела
ВиК: до тапа.
Стени: Вътрешна мазилка.
Под: циментова замазка
Тавани: шпакловка
Начин на плащане:
5000 евро СТОП капаро
Първа вноска 30 при подписване на предварителен договор
Втора вноска 30 при Акт 14
Трета вноска 30 при Акт 15
Четвърта вноска 10 при Акт 16
Начало на строителството: октомври 2024г.
Акт 14 - наличен.
Краен срок: февруари 2027г.
Супер инвестиция в имот както за ползване през летния сезон, така и за постоянно живеене.
Бързоразвиващ се район, където ще бъдат построени нова поликлиника, голям супермаркет и други сгради с обществено предназначение.
Не пропускайте възможността да инвестирате в ново строителство резервирайте своя апартамент още днес! Идеален избор както за дом, така и за бъдеща доходност.
**Можем да организираме оглед на имота в удобно за вас време, като за целта се свържете с нас на посочените телефони и цитирате този код: ДП- 1486375.
**Агенция Ем Джи Естейт е член на НСНИ и администратор на лични данни.
**Преди огледа се провежда среща в нашия офис, за да се запознаем с изискванията Ви и за да оформим документи съгласно ЗЗД и ЗМИП.
**По време на огледа се подписва Протокол за оглед.
**За този имот не се дължи комисион към агенцията.
**Предлагаме Ви юридическо съдействие през целия процес на покупката.
**Лицензиран кредитен консултант ще Ви съдейства при банково кредитиране.
Директно от строител.
Без комисиона от купувача.
Без такса поддръжка.
Едностаен апартамент студио. Състои се от антре, просторна всекидневна с обособени кътове за кухня и трапезария, баня с тоалетна, широка тераса.
Изложения: Юг , Изток
Етаж: 1
Площ: 62,66 м2
Жилищната сграда ще бъде изградена в гр.Созопол, в близост до плаж Хармани.
Сградата се състои от един полуподземен етаж с парко места и четири жилищни етажа с асансьор. Има общо 16 апартамента, от които 10 двустайни и 6 едностайни, 9 паркоместа , 1 затворен гараж в подземен етаж, 1 затворен гараж на 1-ви етаж.
Възможност за покупка на паркомясто - 12000 Евро.
СТЕПЕН НА ЗАВЪРШЕНОСТ:
Фасада: EPS топлоизолационен пакет 10см, силиконова мазилка Baumit.
Дограма: PVC 5 камерна.
Тераси: гранитогрес за външни условия. Покривни тераси с XPS и хидроизолация. Алуминиев ажурен парапет.
Покриви: плоски.
Общи части: стълбище от гранитогрес, алуминиев парапет.
Апартаменти:
Входни блиндирани врати.
ЕЛ: контакти , без осветителни тела
ВиК: до тапа.
Стени: Вътрешна мазилка.
Под: циментова замазка
Тавани: шпакловка
Начин на плащане:
5000 евро СТОП капаро
Първа вноска 30 при подписване на предварителен договор
Втора вноска 30 при Акт 14
Трета вноска 30 при Акт 15
Четвърта вноска 10 при Акт 16
Начало на строителството: октомври 2024г.
Акт 14 - наличен.
Краен срок: февруари 2027г.
Супер инвестиция в имот както за ползване през летния сезон, така и за постоянно живеене.
Бързоразвиващ се район, където ще бъдат построени нова поликлиника, голям супермаркет и други сгради с обществено предназначение.
Не пропускайте възможността да инвестирате в ново строителство резервирайте своя апартамент още днес! Идеален избор както за дом, така и за бъдеща доходност.
**Можем да организираме оглед на имота в удобно за вас време, като за целта се свържете с нас на посочените телефони и цитирате този код: ДП- 1486375.
**Агенция Ем Джи Естейт е член на НСНИ и администратор на лични данни.
**Преди огледа се провежда среща в нашия офис, за да се запознаем с изискванията Ви и за да оформим документи съгласно ЗЗД и ЗМИП.
**По време на огледа се подписва Протокол за оглед.
**За този имот не се дължи комисион към агенцията.
**Предлагаме Ви юридическо съдействие през целия процес на покупката.
**Лицензиран кредитен консултант ще Ви съдейства при банково кредитиране.
ID: 145143883
Контакт с продавача
xxx xxx xxx
Добавена 23 януари 2026 г.
Едностаен апартамент в близост до плаж Хармани в гр. Созопол.
143264.55 лв. / 73250 €
Потребител
Локация
гр. Созопол
Област Бургас