Бизнес
Цена на кв.м: 1200
Тип апартамент: 1 - стаен
Квадратура: 45 кв.м
Година на строителство: 2024 г.
Строителство: Тухла
Етаж: 8-ми
Брой етажи на сградата: 8
Последен етаж
Отопление: Електричество
Обзавеждане: Необзаведен
Състояние на сградата: В строеж
Преход: Без преход
Описание
Компания Х представя на Вашето внимание едностаен апартамент в квартал Меден рудник, зона А
МЕСТОПОЛОЖЕНИЕ: Меден рудник е най-големият жилищен комплекс в Бургас и един от най-бързо развиващите се райони на града. Разположен е на няколко хълма, което осигурява красиви гледки към Бургаския залив и града. В комплекса има много училища, детски градини, магазини, спортни съоръжения и добра транспортна връзка с центъра. Атмосферата е оживена, с модерни нови сгради и удобства, което го прави предпочитано място за семейства и млади хора.
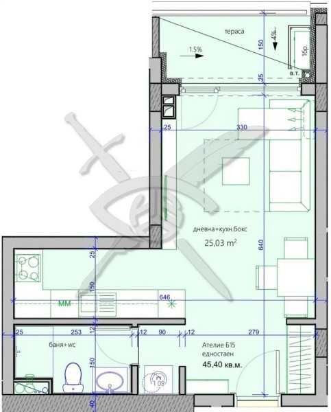
РАЗПРЕДЕЛЕНИЕ: Апартаментът разполага с площ от 32 кв.м, функционално разпределени в кухненски бокс, кът за спане, баня с тоалетна, тераса и паркомясто.
СЪСТОЯНИЕ: Жилището се предлага в строеж, което предлага на новите собственици да създадат своя нов дом придавайки му индивидуалност и стил, чрез собствен почерк.
Заповядайте да Ви го покажем. Използвайки нашите услуги Вие ще превърнете закупуването в едно приятно изживяване, ще получите персонален консултант, съдействие при кандидатстване за кредит от всички банки в България, интериорни дизайнери и екип, който да се погрижи за нужните документи по Вашата сделка. На Ваше разположение сме всеки ден, от понеделник до неделя от 09:00 до 20:00ч. Възползвайте се от безплатна консултация в наш офис, където ще ви спестим време и ще ви запознаем с всички актуални имоти в България, отговарящи на Вашето търсене. Свържете се с нас на 08******90 или на 08******83 и цитирайте кода към имота: 95968
МЕСТОПОЛОЖЕНИЕ: Меден рудник е най-големият жилищен комплекс в Бургас и един от най-бързо развиващите се райони на града. Разположен е на няколко хълма, което осигурява красиви гледки към Бургаския залив и града. В комплекса има много училища, детски градини, магазини, спортни съоръжения и добра транспортна връзка с центъра. Атмосферата е оживена, с модерни нови сгради и удобства, което го прави предпочитано място за семейства и млади хора.
РАЗПРЕДЕЛЕНИЕ: Апартаментът разполага с площ от 32 кв.м, функционално разпределени в кухненски бокс, кът за спане, баня с тоалетна, тераса и паркомясто.
СЪСТОЯНИЕ: Жилището се предлага в строеж, което предлага на новите собственици да създадат своя нов дом придавайки му индивидуалност и стил, чрез собствен почерк.
Заповядайте да Ви го покажем. Използвайки нашите услуги Вие ще превърнете закупуването в едно приятно изживяване, ще получите персонален консултант, съдействие при кандидатстване за кредит от всички банки в България, интериорни дизайнери и екип, който да се погрижи за нужните документи по Вашата сделка. На Ваше разположение сме всеки ден, от понеделник до неделя от 09:00 до 20:00ч. Възползвайте се от безплатна консултация в наш офис, където ще ви спестим време и ще ви запознаем с всички актуални имоти в България, отговарящи на Вашето търсене. Свържете се с нас на 08******90 или на 08******83 и цитирайте кода към имота: 95968
ID: 146324443
Контакт с продавача
xxx xxx xxx
