Бизнес
Цена на кв.м: 1748.91
Тип апартамент: 2 - стаен
Квадратура: 80 кв.м
Година на строителство: 2027 г.
Строителство: Тухла
Етаж: 2-ри
Брой етажи на сградата: 6
Последен етаж
Отопление: Електричество
Обзавеждане: Необзаведен
Състояние на сградата: В строеж
Преход: Без преход
Особености: асансьор
Описание
Титан Пропъртис - офис бул. България има удоволствието да Ви представи двустаен апартамент в ж.к. Левски - комуникативно място, в близост, спирки на градски транспорт, детски градини, училища.
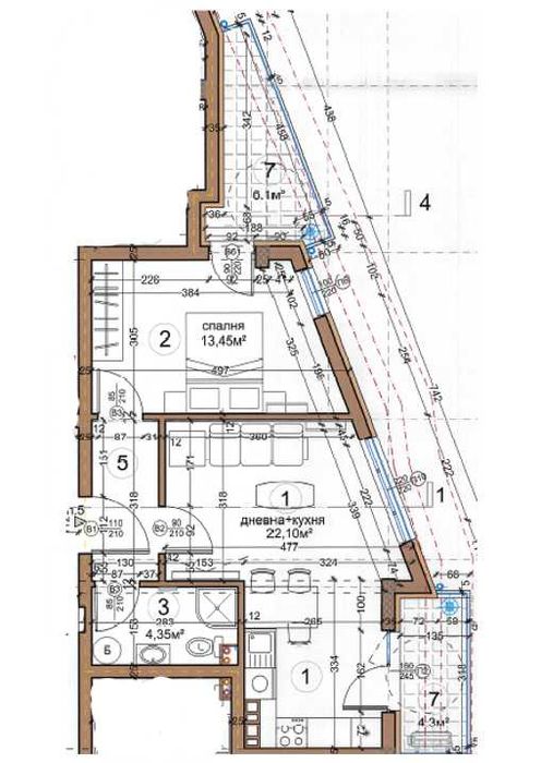
Апартаментът е разположен на втори етаж от шест етажа. Сградата е в начален етап на строителство и се очаква да бъде въведена в експлоатация (акт 16) през март 2027г. Имотът разполага с площ от 80 кв.м. Разпределението както следва е: входно антре, хол с кухненски бокс, спалня, баня с тоалетна,складово помещение и две тераси. Изложението е изток. Отоплението е предвидено да бъде на ток. Жилището се предлага на шпакловка и замазка, предоставяйки възможност за персонализация на интериора.Към имота има възможност за покупка на гараж на допълнителна цена.
За повече информация или оглед на това и други предложения, моля, свържете се с нас на посочения телефон. Реф. Номер: 1186
Апартаментът е разположен на втори етаж от шест етажа. Сградата е в начален етап на строителство и се очаква да бъде въведена в експлоатация (акт 16) през март 2027г. Имотът разполага с площ от 80 кв.м. Разпределението както следва е: входно антре, хол с кухненски бокс, спалня, баня с тоалетна,складово помещение и две тераси. Изложението е изток. Отоплението е предвидено да бъде на ток. Жилището се предлага на шпакловка и замазка, предоставяйки възможност за персонализация на интериора.Към имота има възможност за покупка на гараж на допълнителна цена.
За повече информация или оглед на това и други предложения, моля, свържете се с нас на посочения телефон. Реф. Номер: 1186
ID: 146986356
Контакт с продавача
xxx xxx xxx
