Бизнес
Цена на кв.м: 1900
Тип апартамент: 2 - стаен
Квадратура: 80 кв.м
Година на строителство: 2026 г.
Строителство: Тухла
Етаж: 2-ри
Брой етажи на сградата: 6
Последен етаж
Отопление: ТЕЦ
Обзавеждане: Обзаведен
Състояние на сградата: В строеж
Преход: Без преход
Особености: асансьор
Описание
Титан Пропъртис - офис Черни връх предлага на Вашето внимание двустаен апартамент за продажба в ж.к. Дружба 1 - комуникативно място, в близост до спирки на градски транспорт, детски градини, училища, медицински център, супермаркети и магазини , както и метростанция Дружба.
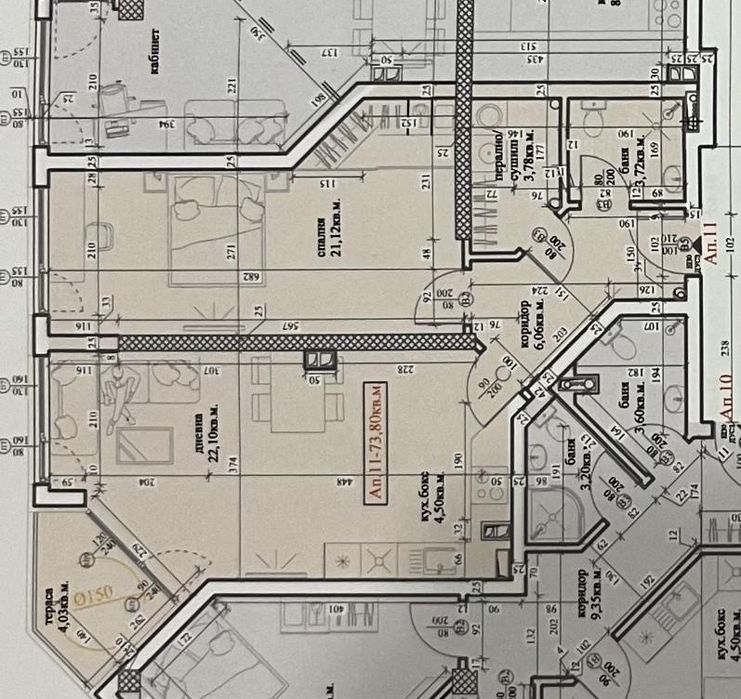
Жилището се намира на втори жилищен етаж от шест етажа.Разпределението на апартамента включва входно антре , просторна дневна с кухненски бокс, спалня, баня с тоалетна, складово помещение и тераса. Отоплението е на ТЕЦ. Изложението е запад.
Жилището се предлага на шпакловка и замазка, предоставяйки възможност за персонализация на интериора. Предоставя идеалната възможност за новите собственици да създадат своя уютен и стилен дом в един от най-желаните райони на градa. Сградата е в начален етап на строителство и се очаква Акт 14 началото на 2026г. Към имота има възможност за покупка на паркомясто на допълнителна цена.
С нас, вашето търсене на имот завършва с усмивка.
За оглед на това и други атрактивни предложения, не се колебайте да ни потърсите на посочения телефон или да ни изпратите данните си чрез формата за запитване на сайта.
Реф. номер: 2088716
Жилището се намира на втори жилищен етаж от шест етажа.Разпределението на апартамента включва входно антре , просторна дневна с кухненски бокс, спалня, баня с тоалетна, складово помещение и тераса. Отоплението е на ТЕЦ. Изложението е запад.
Жилището се предлага на шпакловка и замазка, предоставяйки възможност за персонализация на интериора. Предоставя идеалната възможност за новите собственици да създадат своя уютен и стилен дом в един от най-желаните райони на градa. Сградата е в начален етап на строителство и се очаква Акт 14 началото на 2026г. Към имота има възможност за покупка на паркомясто на допълнителна цена.
С нас, вашето търсене на имот завършва с усмивка.
За оглед на това и други атрактивни предложения, не се колебайте да ни потърсите на посочения телефон или да ни изпратите данните си чрез формата за запитване на сайта.
Реф. номер: 2088716
ID: 143547556
Контакт с продавача
xxx xxx xxx
