Бизнес
Цена на кв.м: 2534.77
Тип апартамент: 2 - стаен
Квадратура: 64 кв.м
Година на строителство: 2025 г.
Строителство: Тухла
Етаж: 8-ми
Брой етажи на сградата: 10
Последен етаж
Отопление: Газ
Обзавеждане: Обзаведен
Състояние на сградата: В строеж
Преход: Без преход
Особености: затворен комплекс, асансьор
Описание
Открийте мястото, където ще се чувствате у дома от първия момент.
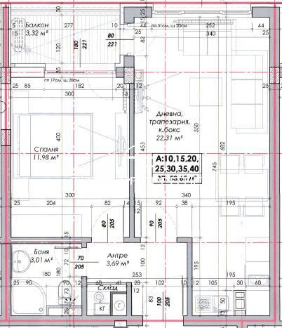
Титан Пропъртис офис - Бул.България с радост предлага на Вашето внимание двустаен апартамент за продажба в кв. Овча купел. Жилището е със застроена площ 53,65 кв.м. и се намира на 8-ми етаж от общо 10 в нова сграда на етап Акт 14, която ще бъде въведена в експлоатация (Акт 16) края на 2026 г. Източно-южното изложение осигурява обилна дневна светлина. Разпределението включва входно антре, хол с кухненски бокс, спалня, баня с тоалетна, складово помещение и балкон. Отоплява се на газ, което гарантира икономичност и удобство. Имотът е на шпакловка и замазка, което позволява довършване и обзавеждане изцяло по ваш вкус. Жилището се издава с прекарани изводи и предвидени стойки за климатична система.
Апартаментът е част от модерен жилищен проект от затворен тип. Локацията съчетава спокойна градска среда с удобен достъп до ключови пътни артерии и бърза връзка с центъра на града. Комплексът се състои от няколко самостоятелни сгради с модерна архитектура, газификация, изградена система за климатизация, по два асансьора във всеки вход, собствен трафопост и канализация. Предвидени са и допълнителни удобства като зона за спорт и релакс със СПА, фитнес и ресторант, както и пешеходна и велосипедна алея в близост до реката – подходяща за разходки, спорт и отдих.
В близост до имота ще намерите:
- Училище: ЧОУ "Томас Едисън" на 448 метра
- Училище: Професионална гимназия по електротехника и автоматика на 320 метра
- Банка: Банка ДСК на 415 метра
- Банкомат: ATM - Банка ДСК на 415 метра
- Медицински център: Медицински Център Престиж - София на 477 метра
- Медицински център: Ортогин на 399 метра
- Трамвайна спирка: Кв. Павлово на 425 метра
- Трамвайна спирка: Кв. Овча купел на 453 метра
"С нас, вашето търсене на имот завършва с усмивка."
За оглед на това и други атрактивни предложения, не се колебайте да ни потърсите на посочения телефон или да ни изпратите данните си чрез формата за запитване на сайта.
Реф. номер: 2104813.
Титан Пропъртис офис - Бул.България с радост предлага на Вашето внимание двустаен апартамент за продажба в кв. Овча купел. Жилището е със застроена площ 53,65 кв.м. и се намира на 8-ми етаж от общо 10 в нова сграда на етап Акт 14, която ще бъде въведена в експлоатация (Акт 16) края на 2026 г. Източно-южното изложение осигурява обилна дневна светлина. Разпределението включва входно антре, хол с кухненски бокс, спалня, баня с тоалетна, складово помещение и балкон. Отоплява се на газ, което гарантира икономичност и удобство. Имотът е на шпакловка и замазка, което позволява довършване и обзавеждане изцяло по ваш вкус. Жилището се издава с прекарани изводи и предвидени стойки за климатична система.
Апартаментът е част от модерен жилищен проект от затворен тип. Локацията съчетава спокойна градска среда с удобен достъп до ключови пътни артерии и бърза връзка с центъра на града. Комплексът се състои от няколко самостоятелни сгради с модерна архитектура, газификация, изградена система за климатизация, по два асансьора във всеки вход, собствен трафопост и канализация. Предвидени са и допълнителни удобства като зона за спорт и релакс със СПА, фитнес и ресторант, както и пешеходна и велосипедна алея в близост до реката – подходяща за разходки, спорт и отдих.
В близост до имота ще намерите:
- Училище: ЧОУ "Томас Едисън" на 448 метра
- Училище: Професионална гимназия по електротехника и автоматика на 320 метра
- Банка: Банка ДСК на 415 метра
- Банкомат: ATM - Банка ДСК на 415 метра
- Медицински център: Медицински Център Престиж - София на 477 метра
- Медицински център: Ортогин на 399 метра
- Трамвайна спирка: Кв. Павлово на 425 метра
- Трамвайна спирка: Кв. Овча купел на 453 метра
"С нас, вашето търсене на имот завършва с усмивка."
За оглед на това и други атрактивни предложения, не се колебайте да ни потърсите на посочения телефон или да ни изпратите данните си чрез формата за запитване на сайта.
Реф. номер: 2104813.
ID: 147292701
Контакт с продавача
xxx xxx xxx
