Бизнес
Цена на кв.м: 2941.18
Тип апартамент: 2 - стаен
Квадратура: 68 кв.м
Година на строителство: 2027 г.
Строителство: Тухла
Етаж: 6-ти
Брой етажи на сградата: 7
Отопление: ТЕЦ
Обзавеждане: Обзаведен
Състояние на сградата: В строеж
Преход: Без преход
Особености: асансьор, гараж, саниран
Описание
Открийте мястото, където ще се чувствате у дома от първия момент.
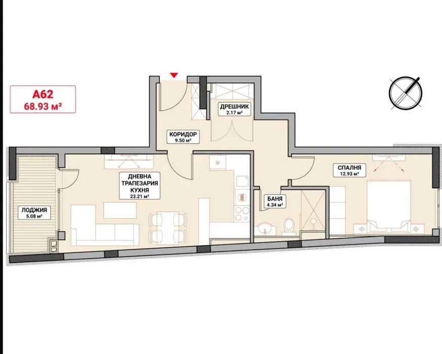
Титан Пропъртис офис - Бул.България с радост предлага на Вашето внимание двустаен апартамент за продажба в кв. Младост 4. Жилището е със застроена площ 57,23 кв.м., ситуирано на 6-ти от общо 7 етажа в нова сграда, която ще бъде въведена в експлоатация средата на 2027 г. Изложението изток/север осигурява приятна светлина. Разпределението включва входно антре, дневна с кухненски бокс, спалня, дрешник и баня с тоалетна и тераса. Апартаментът се предлага на ш.з., което дава възможност за завършване по собствен дизайн. Отоплението е централно (тец). Практичният план и новото строителство правят имота подходящ за семейство или за отдаване под наем.
В обявената цена е включен подземен гараж с мазе с обща площ от 43 кв.м.
В близост до имота ще намерите:
- Училище: ДГ 76 Сърничка - София на 499 метра
- Банка: Пощенска банка - централно управление на 387 метра
- Банкомат: Unicredit ATM на 396 метра
- Аптека: Нота Бене на 206 метра
- Медицински център: Аджибадем Сити Клиник Склад на 332 метра
- Автобусна спирка: БЛ. 465 Ж.К. МЛАДОСТ-4 на 373 метра
- Автобусна спирка: БЛ. 472 Ж.К. МЛАДОСТ-4 на 406 метра
- Метростанция: БИЗНЕС ПАРК на 547 метра
"С нас, вашето търсене на имот завършва с усмивка."
За оглед на това и други атрактивни предложения, не се колебайте да ни потърсите на посочения телефон или да ни изпратите данните си чрез формата за запитване на сайта.
Реф. номер: 2108873.
Титан Пропъртис офис - Бул.България с радост предлага на Вашето внимание двустаен апартамент за продажба в кв. Младост 4. Жилището е със застроена площ 57,23 кв.м., ситуирано на 6-ти от общо 7 етажа в нова сграда, която ще бъде въведена в експлоатация средата на 2027 г. Изложението изток/север осигурява приятна светлина. Разпределението включва входно антре, дневна с кухненски бокс, спалня, дрешник и баня с тоалетна и тераса. Апартаментът се предлага на ш.з., което дава възможност за завършване по собствен дизайн. Отоплението е централно (тец). Практичният план и новото строителство правят имота подходящ за семейство или за отдаване под наем.
В обявената цена е включен подземен гараж с мазе с обща площ от 43 кв.м.
В близост до имота ще намерите:
- Училище: ДГ 76 Сърничка - София на 499 метра
- Банка: Пощенска банка - централно управление на 387 метра
- Банкомат: Unicredit ATM на 396 метра
- Аптека: Нота Бене на 206 метра
- Медицински център: Аджибадем Сити Клиник Склад на 332 метра
- Автобусна спирка: БЛ. 465 Ж.К. МЛАДОСТ-4 на 373 метра
- Автобусна спирка: БЛ. 472 Ж.К. МЛАДОСТ-4 на 406 метра
- Метростанция: БИЗНЕС ПАРК на 547 метра
"С нас, вашето търсене на имот завършва с усмивка."
За оглед на това и други атрактивни предложения, не се колебайте да ни потърсите на посочения телефон или да ни изпратите данните си чрез формата за запитване на сайта.
Реф. номер: 2108873.
ID: 147608720
Контакт с продавача
xxx xxx xxx
