Бизнес
Цена на кв.м: 1521.74
Тип апартамент: 2 - стаен
Квадратура: 69 кв.м
Година на строителство: 2025 г.
Строителство: Тухла
Етаж: 9-ти
Брой етажи на сградата: 9
Последен етаж
Отопление: Електричество
Обзавеждане: Необзаведен
Състояние на сградата: В строеж
Преход: Без преход
Особености: асансьор
Описание
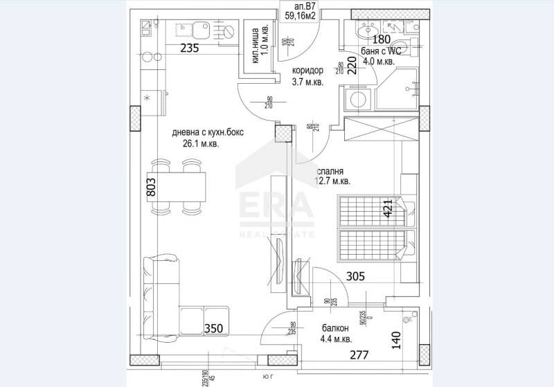
ЕРА Варна Тренд предлага за продажба двустаен южен апартамент в новострояща се сграда в жк Кайсиева градина. Имотът е със застроена площ 59,16 кв.м (69,42 кв.м с общите части), разположен на девети етаж от общо 9 етажа. Състои се от просторна дневна с кухненски бокс (26,1 кв.м), спалня (12,7 кв.м), общ за двете стаи балкон (4,4 кв.м), коридор (3,7 кв.м), баня с тоалетна (4 кв.м) и килер (1 кв.м). Изложението е юг.
Жилището се продава необзаведено. Ще бъде завършено до степен БДС. Отоплението ще бъде с електричество.
Двустайният апартамент се намира в жк Кайсиева градина, в 9-етажна новострояща се сграда с асансьор, на начален етап на строителство, изпълнена с качествени материали, от доказал се на пазара инвеститор с множество построени сгради във Варна. В сградата се предлагат двустайни, тристайни и четиристайни жилища. Етапи на строителство: Откриване на строителна плащадка - 01.10.2025 г. Акт образец 14 - 31.03.2027 г. Акт образец 15 - 01.10.2028 г. Разрешение за ползаване - до 3 /три/ месеца от завършване на строежа и подписване на акт обр.15. Има възможност за допълнително закупуване на открито паркомясто на цена 13 000 евро, подземни паркоместа - от 15 000 евро до 25 000 евро.
СТЕПЕН ЗА ЗАВЪРШЕНОСТ НА ОБЕКТИ
Общи части на сградата:
- подови настилки и стъпала от гранитогрес или гранит;
- стени - декоративна мазилка;
- асансьори - ORONA;
Апартамент
- вътрешни стени - тухла с гипсова мазилка;
- тавани – гипсокартон;
- под на стаи - циментова замазка;
- баня - тоалет: под – циментова замазка, стени – вароциментова мазилка;
- ел. инсталация: завършена напълно до ключове, контакти, оптичен кабел до апартамент;
- В и К инсталации: завършени до тапа;
- Изграждане на тръбни връзки за монтаж на климатици, на определени по архитектура места;
- Външна врата – блиндирана с облечена декоративна каса;
- Прозорци: Висококачествена PVC дограма - 5 или 6 камерна с двойни стъклопакети ширина 26 мм, 6 мм четири сезона /4 мм бяло флоатно стъкло, подпрозоречни первази/.
Оферта №0221880
Жилището се продава необзаведено. Ще бъде завършено до степен БДС. Отоплението ще бъде с електричество.
Двустайният апартамент се намира в жк Кайсиева градина, в 9-етажна новострояща се сграда с асансьор, на начален етап на строителство, изпълнена с качествени материали, от доказал се на пазара инвеститор с множество построени сгради във Варна. В сградата се предлагат двустайни, тристайни и четиристайни жилища. Етапи на строителство: Откриване на строителна плащадка - 01.10.2025 г. Акт образец 14 - 31.03.2027 г. Акт образец 15 - 01.10.2028 г. Разрешение за ползаване - до 3 /три/ месеца от завършване на строежа и подписване на акт обр.15. Има възможност за допълнително закупуване на открито паркомясто на цена 13 000 евро, подземни паркоместа - от 15 000 евро до 25 000 евро.
СТЕПЕН ЗА ЗАВЪРШЕНОСТ НА ОБЕКТИ
Общи части на сградата:
- подови настилки и стъпала от гранитогрес или гранит;
- стени - декоративна мазилка;
- асансьори - ORONA;
Апартамент
- вътрешни стени - тухла с гипсова мазилка;
- тавани – гипсокартон;
- под на стаи - циментова замазка;
- баня - тоалет: под – циментова замазка, стени – вароциментова мазилка;
- ел. инсталация: завършена напълно до ключове, контакти, оптичен кабел до апартамент;
- В и К инсталации: завършени до тапа;
- Изграждане на тръбни връзки за монтаж на климатици, на определени по архитектура места;
- Външна врата – блиндирана с облечена декоративна каса;
- Прозорци: Висококачествена PVC дограма - 5 или 6 камерна с двойни стъклопакети ширина 26 мм, 6 мм четири сезона /4 мм бяло флоатно стъкло, подпрозоречни первази/.
Оферта №0221880
ID: 145435936
Контакт с продавача
xxx xxx xxx

