Бизнес
Цена на кв.м: 1786.89
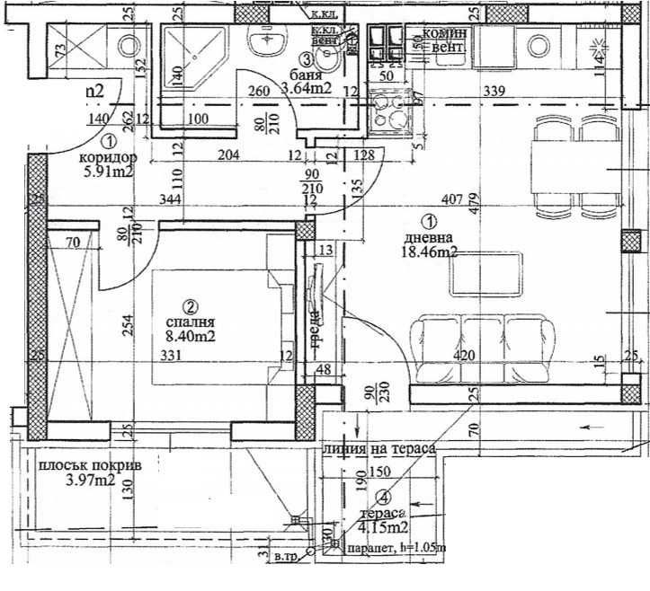
Тип апартамент: 2 - стаен
Квадратура: 61 кв.м
Година на строителство: 2025 г.
Строителство: Тухла
Етаж: 4-ти
Брой етажи на сградата: 5
Отопление: Електричество
Обзавеждане: Необзаведен
Състояние на сградата: В строеж
Преход: Без преход
Особености: асансьор, видеонаблюдение
Описание
Агенция Про Вижън ви предлага отличен двустаен апартамент в луксозна новострояща се сграда, разположена на централната част на кв. Вница. Жилището е с функционално разпределение и просторна гледка, като освен добро място за живеене може да се превърне в отлична инвестиция с висока доходност! Възможност за покупка на паркомясто! Проектът се отличава с модерна архитектура, функционални разпределения и комуникативна локация с отлична инфраструктура и бърз достъп до основни транспортни връзки. Инвеститорът залага на строителство с висококачествени материали и изпълнение по най-съвременни стандарти. Срок на завършване до 24 месеца. За повече информация не се колебайте да се свържете с нас на телефон 08******07
ID: 145758882
Контакт с продавача
xxx xxx xxx

