Бизнес
Цена на кв.м: 1533.33
Тип апартамент: 2 - стаен
Квадратура: 75 кв.м
Година на строителство: 2025 г.
Строителство: Тухла
Етаж: 8-ми
Брой етажи на сградата: 11
Последен етаж
Отопление: Електричество
Обзавеждане: Необзаведен
Състояние на сградата: В строеж
Преход: Без преход
Особености: асансьор
Описание
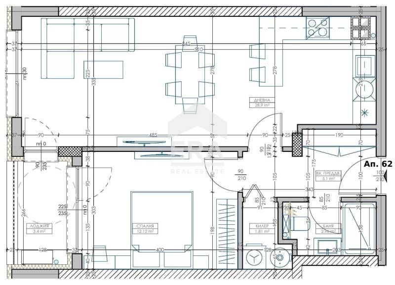
ЕРА Лайф обявява за продажба тристаен апартамент с площ 64,01 м2 (застроена площ 75,21) м2, разположен на 8 етаж от 11 в новострояща се жилищна сграда.
Вид на завършеност на жилището: БДС стандарт, стени - мазилки, шпакловка и грунд, тавани - мазилка, шпакловка и грунд, входна врата с метален обков, пет камерна PVC дограма, марка "ВИВАПЛАСТ", ел. инсталации - контакти и фасунги, ВиК на тапи.
Отопленето ще бъде с електричество. Схемата на плащане е: При предварителен договор: 30%,при достигане на кота „15.35“: 20%, при издаване на Акт 14: 20%, при поставяне на дограма: 10%, при издаване на Акт 15: 10%, при издаване на Акт 16: 10%.
Паркирането е свободно в района, като има възможност за закупуване на подземен гараж или открито паркомясто.
Обявеният за продажба апартамент е в сграда, която ще бъде въведена в експлоатация декември 2027г. В строителството на сградата са заложени качествени материали.
Район с отлична инфраструктура - в близост до главни пътни артерии, автобусни спирки на градския транспорт, магазини, голям търговски център, професионални гимназии и училища, детски градини и ясли. Имотът е отличен както за живеене, така и за инвестиция. Код: 0708762
Оферта №0708762
Вид на завършеност на жилището: БДС стандарт, стени - мазилки, шпакловка и грунд, тавани - мазилка, шпакловка и грунд, входна врата с метален обков, пет камерна PVC дограма, марка "ВИВАПЛАСТ", ел. инсталации - контакти и фасунги, ВиК на тапи.
Отопленето ще бъде с електричество. Схемата на плащане е: При предварителен договор: 30%,при достигане на кота „15.35“: 20%, при издаване на Акт 14: 20%, при поставяне на дограма: 10%, при издаване на Акт 15: 10%, при издаване на Акт 16: 10%.
Паркирането е свободно в района, като има възможност за закупуване на подземен гараж или открито паркомясто.
Обявеният за продажба апартамент е в сграда, която ще бъде въведена в експлоатация декември 2027г. В строителството на сградата са заложени качествени материали.
Район с отлична инфраструктура - в близост до главни пътни артерии, автобусни спирки на градския транспорт, магазини, голям търговски център, професионални гимназии и училища, детски градини и ясли. Имотът е отличен както за живеене, така и за инвестиция. Код: 0708762
Оферта №0708762
ID: 145412529
Контакт с продавача
xxx xxx xxx