Бизнес
Цена на кв.м: 1406.25
Тип апартамент: 2 - стаен
Квадратура: 64 кв.м
Година на строителство: 2025 г.
Строителство: Тухла
Етаж: 1-ви
Брой етажи на сградата: 4
Последен етаж
Отопление: Електричество
Обзавеждане: Необзаведен
Състояние на сградата: В строеж
Преход: Без преход
Особености: асансьор, гараж
Описание
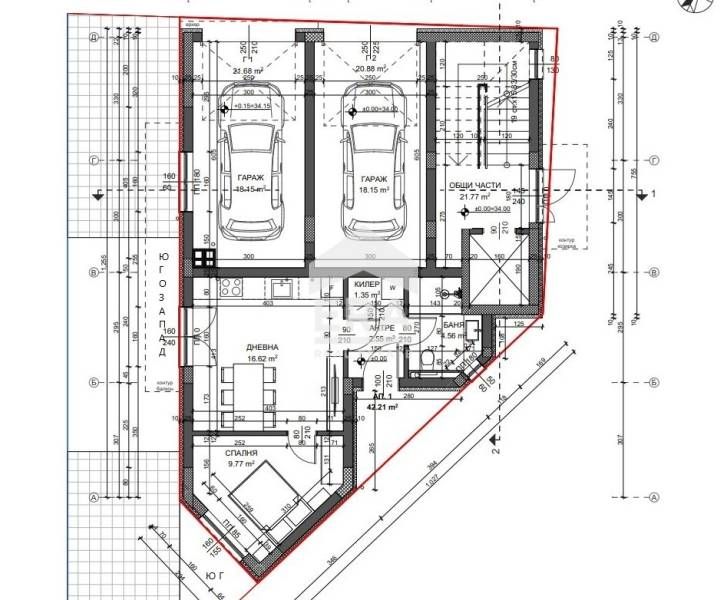
ЕКСКЛУЗИВНО! ДВУСТАЕН ЮГОЗАПАДЕН АПАРТАМЕНТ СЪС СОБСТВЕН ДВОР, В НОВОСТРОЯЩА СЕ СГРАДА НА УЛ. МАРАГИДИК, ДО РИБКАТА. ЕРА Варна Тренд предлага за продажба единствен двустаен апартамент със застроена площ 42,21 кв.м (63,98 кв.м с общите части), разположен на първи партерен етаж от общо 4 етажа. Имотът се състои от входно антре (2,55 кв.м), дневна с кухненски бокс (16,62 кв.м) и излаз на собствен двор, спалня (9,77 кв.м), баня с тоалетна (4,56 кв.м) и килер (1,35 кв.м)/или самостоятелна тоалетна. Изложението е юг (спалня) - югозапад (дневна). Статутът е на апартамент.
Жилището се продава необзаведено. Ще бъде завършено до степен БДС, с поставена ПВЦ дограма. Отоплението ще бъде с електричество. Има възможност за завършване до ключ, при желание на клиента.
Двустайният апартамент се намира в тухлена, новострояща се сграда на четири етажа, само с 4 жилища - по един тристаен апартамент на етаж и предлаганият двустаен апартамент на първи етаж. За всеки тристаен апартамент са предвидени второ ел. табло и допълнителни изводи за вода (за лесно обособяване на втора кухня) в случай, че собствениците желаят да го разделят на два самостоятелни имота. Сградата е с асансьор, на етап строеж на междинни етажи. Акт 14 се очаква до края на 2025 г., Акт 15 - до месец май 2026 г., а Разрешение за ползване (Акт 16) до края на месец юли 2026 г. Има възможност за допълнително закупуване на открито паркомясто на цена 17 000 евро или партерен гараж на цена 31 000 евро.
Оферта №0221914
Жилището се продава необзаведено. Ще бъде завършено до степен БДС, с поставена ПВЦ дограма. Отоплението ще бъде с електричество. Има възможност за завършване до ключ, при желание на клиента.
Двустайният апартамент се намира в тухлена, новострояща се сграда на четири етажа, само с 4 жилища - по един тристаен апартамент на етаж и предлаганият двустаен апартамент на първи етаж. За всеки тристаен апартамент са предвидени второ ел. табло и допълнителни изводи за вода (за лесно обособяване на втора кухня) в случай, че собствениците желаят да го разделят на два самостоятелни имота. Сградата е с асансьор, на етап строеж на междинни етажи. Акт 14 се очаква до края на 2025 г., Акт 15 - до месец май 2026 г., а Разрешение за ползване (Акт 16) до края на месец юли 2026 г. Има възможност за допълнително закупуване на открито паркомясто на цена 17 000 евро или партерен гараж на цена 31 000 евро.
Оферта №0221914
ID: 145547634
Контакт с продавача
xxx xxx xxx

