Бизнес
Цена на кв.м: 3127.99
Тип апартамент: 2 - стаен
Квадратура: 72 кв.м
Година на строителство: 2025 г.
Строителство: Тухла
Етаж: 1-ви
Брой етажи на сградата: 6
Последен етаж
Отопление: Електричество
Обзавеждане: Необзаведен
Състояние на сградата: В строеж
Преход: Без преход
Особености: асансьор
Описание
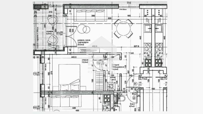
ЕРА Лайф обявява за продажба двустаен апартамент с площ 72,65 кв.м. /застроена площ 62,70 кв.м./ находящ се на втори етаж от шест надземни етажа в новострояща се жилищна сграда. Имотът е със следното разпределение: входно антре 4,2 кв.м., дневен тракт с открита кухненска част 23 кв.м., спалня - 12,2 кв.м., излаз на лоджия от дневната 6,00 кв.м., комбинирана баня с тоалетна 4,9 кв.м. Към имота може да бъде закупено допълнително подземно/открито паркомясто /има възможност за паркомясто за хора с увреждания/ и места за велосипеди. Статут: апартамент.
Изложение: север/запад. Жилището ще бъде завършено по БДС стандарт-стени: машинно положена гипсова мазилка, под: нивелирана циментова замазка, готова за полагане на подови настилки, таван: машинно положена гипсова мазилка, санитарни помещения: под - циментова замазка, стени –машинно положена варо-циментова мазилка, подготвени за полагане на фаянс и теракота,тераса/балкон: циментова замазка с наклон за отводняване, хидроизолация, положен гранитогрес по одобрените технически проекти част. Дограма: шест или седем- камерна ПВЦ или Алуминиева дограма, немски обков, цвят-антрацит и бял, стъклопакет - енерджи/ четири сезонен, 32мм, външни подпрозоречни первази, входна врата: блиндирана, вътрешни интериорни врати: МДФ, климатизация: положена инсталация за климатици - тръбен път и отводняване - конденз, осветителни тела по тераса/балкон. Жилището се продава без обзавеждане.
Недвижимият имот е част от жилищна сграда, с контролиран достъп и домофонна уредба, с луксозни общи части. Функциониращ асансьор. Монолитна сграда: Дограма общи части: шест или седем камерна ПВЦ или алуминиева дограма, немски обков, цвят антрацит и бял, стъклопакет – енерджи/четири сезонен, 32мм., пощенски кутии монтирани на входа на сградата, машинно положена гипсова мазилка-стени, машинно положена гипсова мазилка и/или гипсокартон - тавани, ел. ниско енергийно LED осветление по дизайнерски проект плюс стълбищни ключове за управление и ел. табло общи части, видеонаблюдение на общи части и периферия сграда, аварийно осветление по ел. проект, вътрешен парапет-алуминий и триплексово стъкло. Старт на строителството: януари 2026г. Очакван срок на въвеждане в експлоатация: декември 2027г.
Схеми на плащане: 40% на предварителен договор, 30% на Акт 14, 20% на Акт 15 и 10% при въвеждане в експлоатация.
КК Св.Св. Константин и Елена- един от най-търсените, бързо-развиващи се и красиви морски райони за покупка на инвестиционни имоти – с цел отдаване под наем или за лично ползване. В близост до хранителен хипермаркет Лидъл. На 100 м. от спирка на градския транспорт. Код: 0708928
Оферта №0708928
Изложение: север/запад. Жилището ще бъде завършено по БДС стандарт-стени: машинно положена гипсова мазилка, под: нивелирана циментова замазка, готова за полагане на подови настилки, таван: машинно положена гипсова мазилка, санитарни помещения: под - циментова замазка, стени –машинно положена варо-циментова мазилка, подготвени за полагане на фаянс и теракота,тераса/балкон: циментова замазка с наклон за отводняване, хидроизолация, положен гранитогрес по одобрените технически проекти част. Дограма: шест или седем- камерна ПВЦ или Алуминиева дограма, немски обков, цвят-антрацит и бял, стъклопакет - енерджи/ четири сезонен, 32мм, външни подпрозоречни первази, входна врата: блиндирана, вътрешни интериорни врати: МДФ, климатизация: положена инсталация за климатици - тръбен път и отводняване - конденз, осветителни тела по тераса/балкон. Жилището се продава без обзавеждане.
Недвижимият имот е част от жилищна сграда, с контролиран достъп и домофонна уредба, с луксозни общи части. Функциониращ асансьор. Монолитна сграда: Дограма общи части: шест или седем камерна ПВЦ или алуминиева дограма, немски обков, цвят антрацит и бял, стъклопакет – енерджи/четири сезонен, 32мм., пощенски кутии монтирани на входа на сградата, машинно положена гипсова мазилка-стени, машинно положена гипсова мазилка и/или гипсокартон - тавани, ел. ниско енергийно LED осветление по дизайнерски проект плюс стълбищни ключове за управление и ел. табло общи части, видеонаблюдение на общи части и периферия сграда, аварийно осветление по ел. проект, вътрешен парапет-алуминий и триплексово стъкло. Старт на строителството: януари 2026г. Очакван срок на въвеждане в експлоатация: декември 2027г.
Схеми на плащане: 40% на предварителен договор, 30% на Акт 14, 20% на Акт 15 и 10% при въвеждане в експлоатация.
КК Св.Св. Константин и Елена- един от най-търсените, бързо-развиващи се и красиви морски райони за покупка на инвестиционни имоти – с цел отдаване под наем или за лично ползване. В близост до хранителен хипермаркет Лидъл. На 100 м. от спирка на градския транспорт. Код: 0708928
Оферта №0708928
ID: 146723345
Контакт с продавача
xxx xxx xxx

