Бизнес
Цена на кв.м: 2382.35
Тип апартамент: 2 - стаен
Квадратура: 68 кв.м
Година на строителство: 2025 г.
Строителство: Тухла
Етаж: 5-ти
Брой етажи на сградата: 7
Последен етаж
Отопление: Електричество
Обзавеждане: Необзаведен
Състояние на сградата: В строеж
Преход: Без преход
Особености: асансьор
Описание
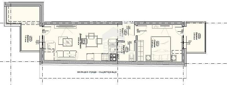
ERA Парадайс предлага за продажба двустаен апартамент в новострояща се сграда в централната част на града, в района на ЗК Тракия. Жилището е със застроена площ 51.37 кв. м и обща площ - 68.62 кв. м., в която е включено и прилежащо мазе с площ от 1.81 кв.м. Към апартамента се прехвърля и идеална част от земята (11.63 кв.м.). Изложението е югоизток (дневния тракт)/северозапад (спалнята). Разположено на пети етаж от общо 7, жилището ще предлага на обитателите си изобилие от светлина. Сградата предстои да бъде въведена в експлоатация в началото на 2027 г.
Апартаментът е разпределен, както следва: дневна с кухненски бокс и трапезария с площ от 16.98 кв. м, самостоятелна спалня (10.96 кв. м), баня с тоалетна (2.37 кв.м.), два балкона към всяка от стаите.
Ще бъде завършено по БДС.
Плащането е гъвкаво - разсрочено във времето и според личните възможности. Възможност за кредитиране.
В сградата се предлагат и други двустайни и тристайни апартаменти, с различни квадратури и изложения.
Има възможност да закупуване на подземно паркомясто на цени от 26 000 евро.
Имотът е подходящ за лично ползване и отдаване под наем - дългосрочно и за нощувки, поради комуникативното си местоположение в централната част на града. В близост са главни пътни артерии, автобусни спирки, големи вериги магазини, учебни заведения, детски градини, аптеки, административни сгради, банки и др.
Оферта №7100025
Апартаментът е разпределен, както следва: дневна с кухненски бокс и трапезария с площ от 16.98 кв. м, самостоятелна спалня (10.96 кв. м), баня с тоалетна (2.37 кв.м.), два балкона към всяка от стаите.
Ще бъде завършено по БДС.
Плащането е гъвкаво - разсрочено във времето и според личните възможности. Възможност за кредитиране.
В сградата се предлагат и други двустайни и тристайни апартаменти, с различни квадратури и изложения.
Има възможност да закупуване на подземно паркомясто на цени от 26 000 евро.
Имотът е подходящ за лично ползване и отдаване под наем - дългосрочно и за нощувки, поради комуникативното си местоположение в централната част на града. В близост са главни пътни артерии, автобусни спирки, големи вериги магазини, учебни заведения, детски градини, аптеки, административни сгради, банки и др.
Оферта №7100025
ID: 144500884
Контакт с продавача
xxx xxx xxx

