Бизнес
Цена на кв.м: 2024.05
Тип апартамент: 2 - стаен
Квадратура: 79 кв.м
Година на строителство: 2025 г.
Строителство: Тухла
Етаж: 2-ри
Брой етажи на сградата: 6
Последен етаж
Отопление: Електричество
Обзавеждане: Необзаведен
Състояние на сградата: В строеж
Преход: Без преход
Особености: асансьор, гараж, паркинг
Описание
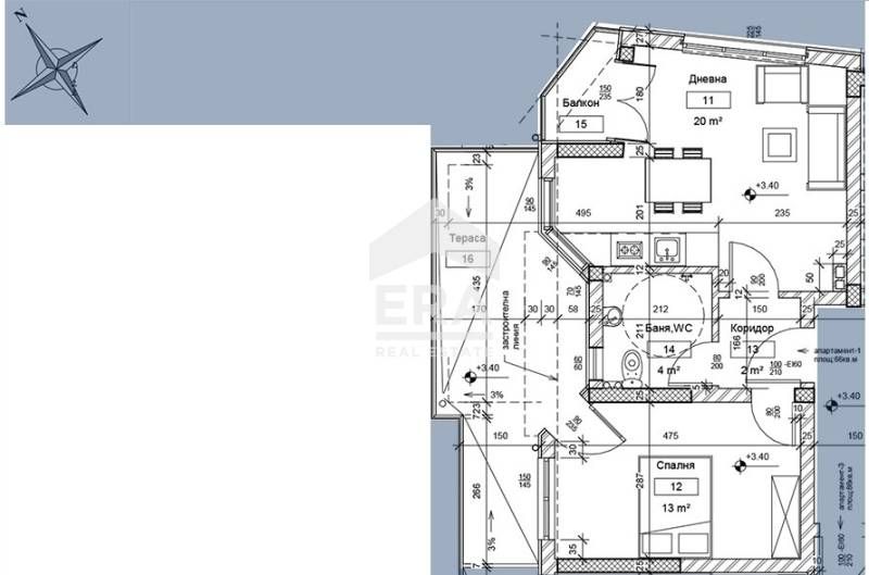
ЕРА Варна Тренд предлага за продажба двустаен апартамент в новострояща се сграда, в района на Гранд Мол. Имотът е със застроена площ 66 кв.м (78,89 кв.м с общите части), разположен на втори етаж от общо 6 етажа. Състои се от дневна с кухненски бокс (20 кв.м) и излаз на балкон, спалня (13 кв.м) с излаз на широка тераса, коридор (2 кв.м) и баня с тоалетна (4 кв.м). Изложението е запад (двете стаи) – север (балкон към дневната).
Жилището се продава необзаведено. Ще бъде завършено до степен БДС, с поставена ПВЦ дограма. Отоплението ще бъде с електричество. Имотът е подходящ и за инвестиция чрез отдаване под наем.
Двустайният апартамент се намира в близост до Гранд Мол, в шестетажна тухлена сграда с асансьор, на начален етап на строителство – открита строителна площадка през месец май 2025 г. Срок за завършване: краят на месец май 2027 г. Предлагат се двустайни и тристайни жилища, на различни етажи, с възможност за избор на площ и изложение. Има опции за паркиране - в сутерена на сградата и на партера, при допълнително закупуване. Районът е много оживен и комуникативен. На пешеходно разстояние са хипермаркети Кауфланд и Лидл, Трети корпус на Икономически университет, основно училище, професионални гимназии, Автогара – Варна, Търговски център, Бизнес сграда, спирки на градския транспорт.
Оферта №0221845
Жилището се продава необзаведено. Ще бъде завършено до степен БДС, с поставена ПВЦ дограма. Отоплението ще бъде с електричество. Имотът е подходящ и за инвестиция чрез отдаване под наем.
Двустайният апартамент се намира в близост до Гранд Мол, в шестетажна тухлена сграда с асансьор, на начален етап на строителство – открита строителна площадка през месец май 2025 г. Срок за завършване: краят на месец май 2027 г. Предлагат се двустайни и тристайни жилища, на различни етажи, с възможност за избор на площ и изложение. Има опции за паркиране - в сутерена на сградата и на партера, при допълнително закупуване. Районът е много оживен и комуникативен. На пешеходно разстояние са хипермаркети Кауфланд и Лидл, Трети корпус на Икономически университет, основно училище, професионални гимназии, Автогара – Варна, Търговски център, Бизнес сграда, спирки на градския транспорт.
Оферта №0221845
ID: 145343694
Контакт с продавача
xxx xxx xxx

